GM Service Manual Online
For 1990-2009 cars only
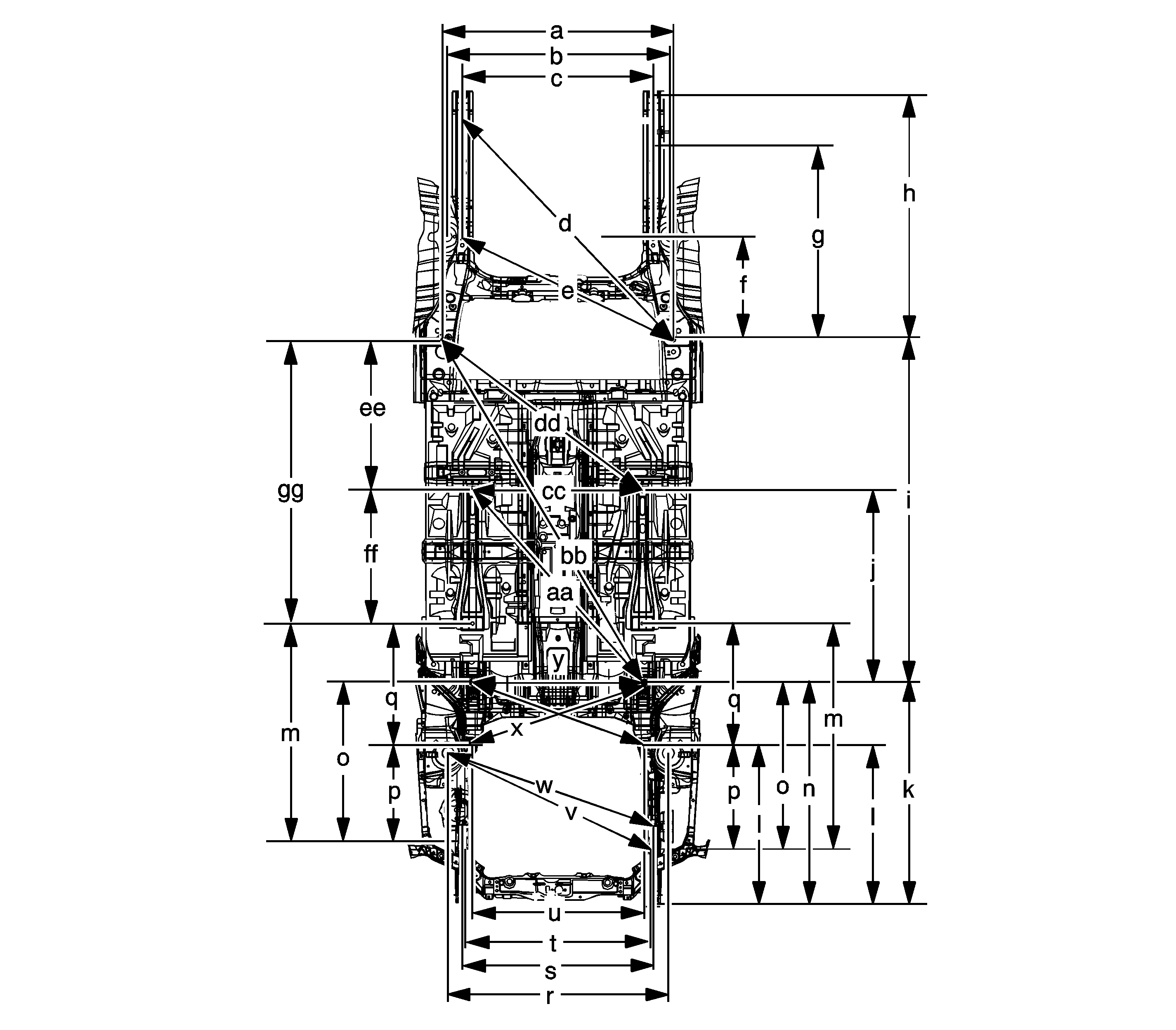
Table 1: Underbody (Four Door and Wagon
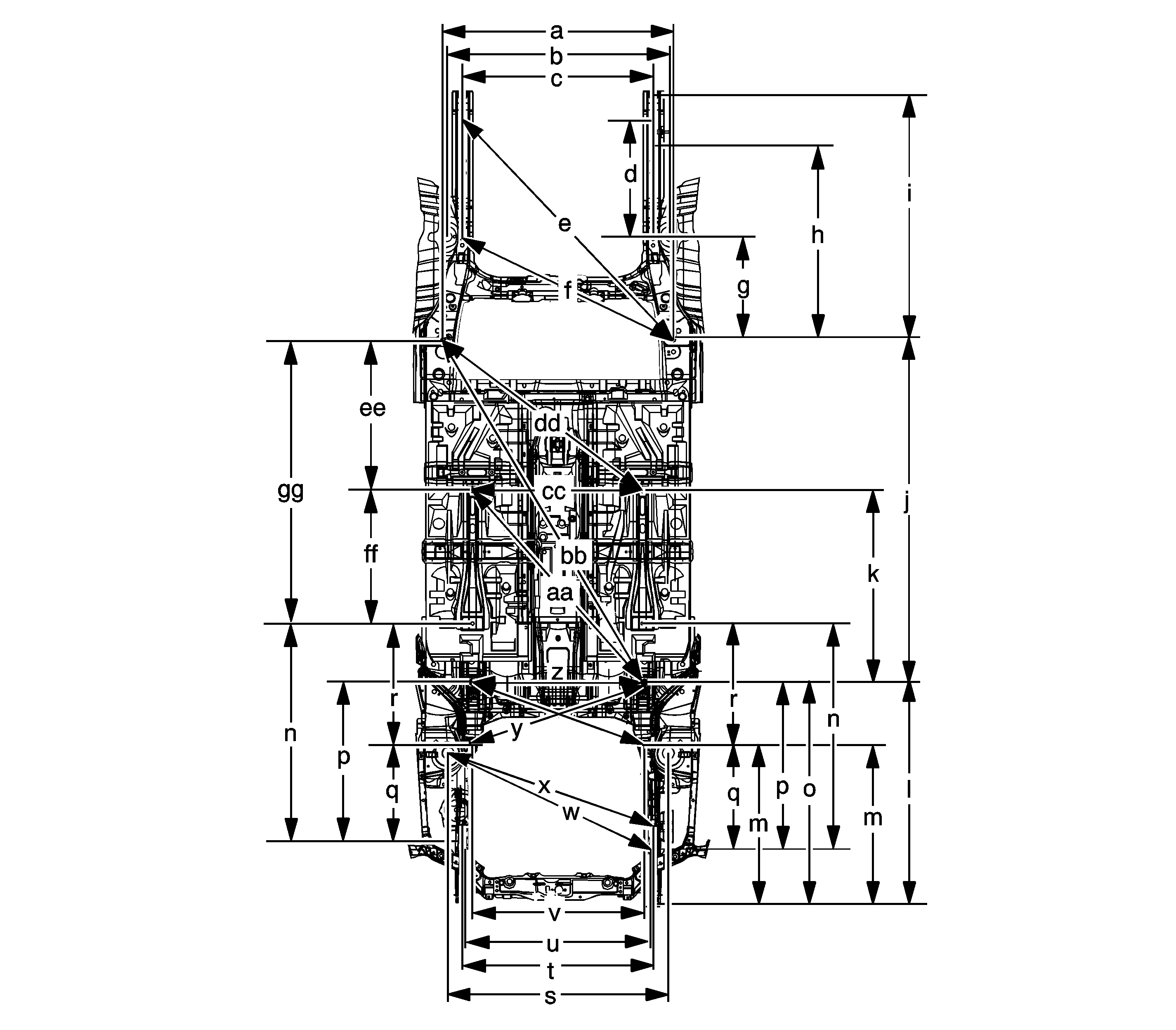
Table 2: Underbody (Five Door)
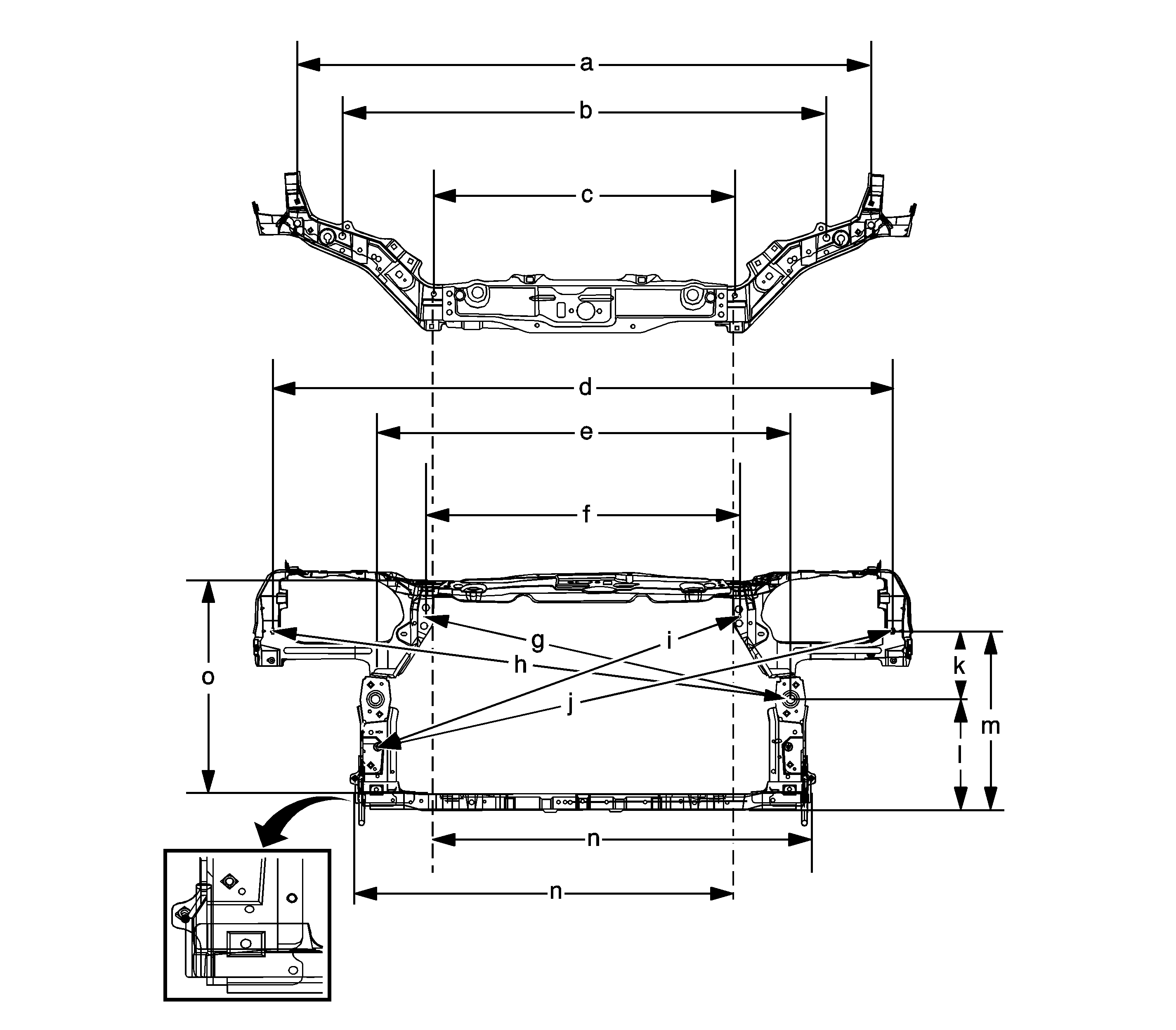
Table 3: Front Panel
Table 4: Engine Room
Table 5: Back Panel Lower
Table 6: Side Outer
Table 7: Frame Door Opening
Table 8: Windshield and Rear Glass
Table 9: Gap Chart (1 of 2)
Table 10: Gap Chart (2 of 2)

Underbody (Four Door and Wagon)


Object Number: 1308768  Size: LF

Underbody (Four Door and Wagon

Points

Dimensions (mm)

Dimensions (in)

Important: Reference dimensions show the distance between the center of positioning holes shown in illustrations.

A

1,160

45.66

B

1,137.4

44.78

C

960

37.79

D

650

25.59

E

1,545

60.82

F

1,178

46.37

G

500

19.68

H

983

38.70

I

1,242

48.89

J

1,733

68.22

K

963

37.91

L

1,092

42.99

M

779

30.66

N

1,123

44.21

O

1,092

42.99

P

827

32.55

Q

514

20.23

R

609

23.97

S

1,103.4

43.44

T

950

37.40

U

930

36.61

V

864

34.01

W

1,202

47.32

X

1,169

46.02

Y

925

36.41

Z

923

36.33

AA

1,287

50.66

BB

2,005.5

78.95

CC

853

33.58

DD

1,270.4

50.01

EE

770

30.31

FF

667

26.26

GG

1,437

56.57

Underbody (Five Door)


Object Number: 1458691  Size: LF

Underbody (Five Door)

Points

Dimensions (mm)

Dimensions (in)

Important: Reference dimensions show the distance between the center of positioning holes shown in illustrations.

A

1,160

45.66

B

1,137.4

44.78

C

960

37.79

D

1,420

55.90

E

1,178

46.37

F

500

19.68

G

945

37.20

H

1,037

40.82

I

1,733

68.22

J

963

37.91

K

1,092

42.99

L

779

30.66

M

1,123

44.21

N

1,092

42.99

O

827

32.55

P

514

20.23

Q

609

23.97

R

1,103.4

43.44

S

950

37.40

T

930

36.61

U

864

34.01

V

1,202

47.32

W

1,169

46.02

X

925

36.41

Y

923

36.33

AA

1,287

50.66

BB

2,005.5

78.95

CC

853

33.58

DD

1,270.4

50.01

EE

770

30.31

FF

667

26.26

GG

1,437

56.57

Front Panel


Object Number: 1308772  Size: LF

Front Panel

Points

Dimensions (mm)

Dimensions (in)

Important: Reference dimensions show the distance between the center of positioning holes shown in illustrations.

A

1,307

51.45

B

1,104

43.46

C

690

27.16

D

1,420

55.90

E

950

37.40

F

720

28.34

G

856.6

33.72

H

1,218.1

47.95

I

889

35.00

J

1,224

48.18

K

156

6.14

L

256

10.07

M

412

16.22

N

823

32.40

O

500

19.68

Engine Room


Object Number: 1308774  Size: LF

Engine Room

Points

Dimensions (mm)

Dimensions (in)

Important: Reference dimensions show the distance between the center of positioning holes shown in illustrations.

A

843.5

33.20

B

861.6

33.92

C

765.7

30.14

D

695.5

27.38

E

1 249.6

49.19

F

1 282.6

50.49

G

1 218.3

47.96

H

1 106.3

43.55

I

755.5

29.74

J

1 363

53.66

K

1 350

53.15

L

690

27.16

M

855.6

33.68

N

942

37.08

O

1 019

40.11

P

1 377

54.21

Q

1 490

58.66

R

1 341.4

52.81

S

640.05

25.21

T

920

36.22

U

1 103.4

43.44

Back Panel Lower


Object Number: 1308776  Size: LF

Back Panel Lower

Points

Dimensions (mm)

Dimensions (in)

Important: Reference dimensions show the distance between the center of positioning holes shown in illustrations.

A

1,389

54.68

B

1,220

48.03

C

955.6

37.62

D

679.5

26.75

E

559.5

22.02

F

1,078

42.44

G

430

16.92

H

373.5

14.70

I

256

10.07

Side Outer


Object Number: 1308777  Size: LF

Side Outer

Points

Dimensions (mm)

Dimensions (in)

Important: Reference dimensions show the distance between the center of positioning holes shown in illustrations.

A

392

154.33

B

1,005.3

39.57

C

938.7

36.95

D

1,043.8

41.09

E

1,100.8

43.33

F

996.5

39.23

G

380

14.96

H

973.8

38.33

I

991.8

39.04

J

116.8

43.96

K

408

16.06

L

327

12.87

Frame Door Opening


Object Number: 1263032  Size: MF

Frame Door Opening

Points

Dimensions (mm)

Dimensions (in)

Important: Reference dimensions show the distance between the center of positioning holes shown in illustrations.

Front Door

1

1,429.1

26

2

1,417

55.78

3

1,361.9

53.61

4

1,291.4

47.81

5

1,214.6

47.81

6

1,128.9

44.44

7

1,102.2

43.39

8

1,280.3

50.40

9

1,425.1

56.10

10

1,442

56.77

11

1,454

57.24

12

1,454

57.24

13

1,454

57.24

Rear Door

1

1,440

56.69

2

1,426

56.14

3

1,277.6

50.29

4

1,080.3

42.53

5

1,087.7

42.82

6

1,121.3

44.14

7

1,253.9

49.36

8

1,369.9

53.93

9

1,425.1

56.10

10

1,421

55.94

11

1,447

56.96

12

1,454

57.24

13

1,454

57.24

Windshield and Rear Glass


Object Number: 1308778  Size: LF

Windshield and Rear Glass

Points

Dimensions (mm)

Dimensions (in)

Important: Reference dimensions show the distance between the center of positioning holes shown in illustrations.

A

1,139

44.84

B

1,445.8

56.92

C

1,412

55.59

D

694.2

27.33

E

1,016.6

40.02

F

1,316.6

51.83

G

1,271.5

50.05

H

663.9

26.13

Gap Chart (1 of 2)

Important: Inspect for the following Items:

   • Proper installation.
   • Clearance and level differences of main body, exterior panels, lamps and bumper.
   • Waterleaks in passenger and luggage compartment.


Object Number: 1308779  Size: MF

Gap Chart (1 of 2)

Description

Location

Gap

Hood - Fender

A

3.0 + 2.0 mm (0.1181 + 0.039 in)

3.0 - 0.5 mm (0.1181 - 0.020 in)

Side Outer - Trunk Lid

B

3.0 + 1.0 mm (0.1181 + 0.039 in)

3.0 - 0.39 mm (0.1181 - 0.020 in)

Tail Lamp - Trunk Lid

C

3.5 + 0.5 mm (0.1378 + 0.020 in)

Gap Chart (2 of 2)

Important: Inspect for the following Items:

   • Proper installation.
   • Clearance and level differences of main body, exterior panels, lamps and bumper.
   • Waterleaks in passenger and luggage compartment.


Object Number: 1308780  Size: MF

Gap Chart (2 of 2)

Description

Location

Gap

Front Door - Fender

A

3.5 + 1.0 mm (0.1378 + 0.039 in)

Rear Door - Front Door

B

4.0 + 1.0 mm (0.1575 + 0.039 in)

Side Outer - Rear Door

C

3.5 + 1.0 mm (0.1378 + 0.039 in)

Center Garnish Rear - Center Garnish Front

D

4.0 + 1.0 mm (0.1575 + 0.039 in)

Weatherstrip - Quarter Glass

E

5.0 +/- 1.0 mm (0.1969 + 0.039 in)

Front/Rear Door - Locker Panel

F

5.0 +/- 1.0 mm (0.1969 + 0.039 in)