GM Service Manual Online
For 1990-2009 cars only
Makes
🢒
Holden
🢒
2008
🢒
Viva
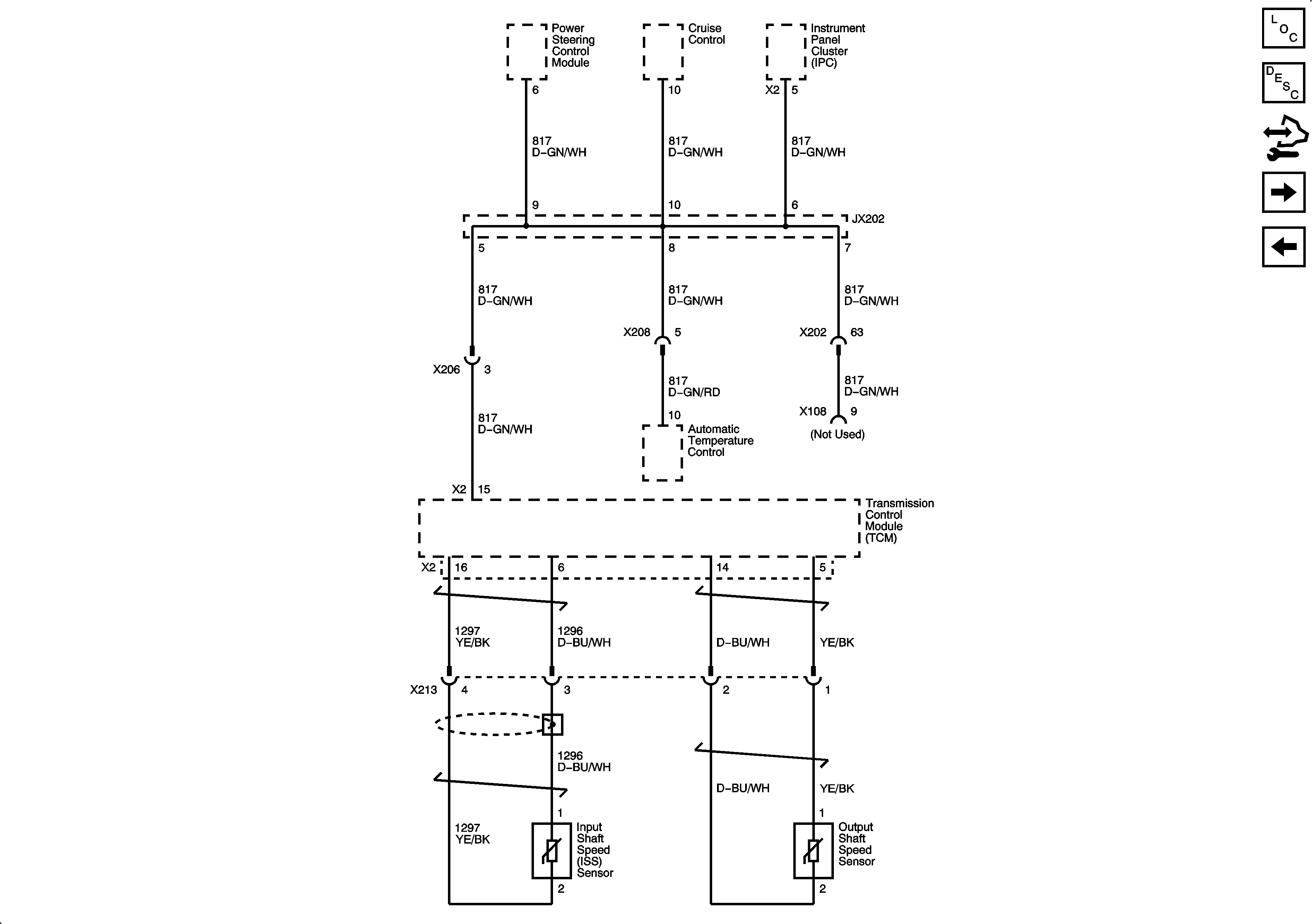
🢒 Input Shaft, Output Shaft, and Vehicle Speed Sensors (VSS)
Input Shaft, Output Shaft, and Vehicle Speed Sensors (VSS)
Input Shaft, Output Shaft, and Vehicle Speed Sensors (VSS)
Master Electrical Component List
Control Module References
Park/Neutral Position (PNP) Switch
Transmission Solenoid and Stop Lamp Switch