GM Service Manual Online
For 1990-2009 cars only
Makes
🢒
Holden
🢒
2008
🢒
WM Sedan
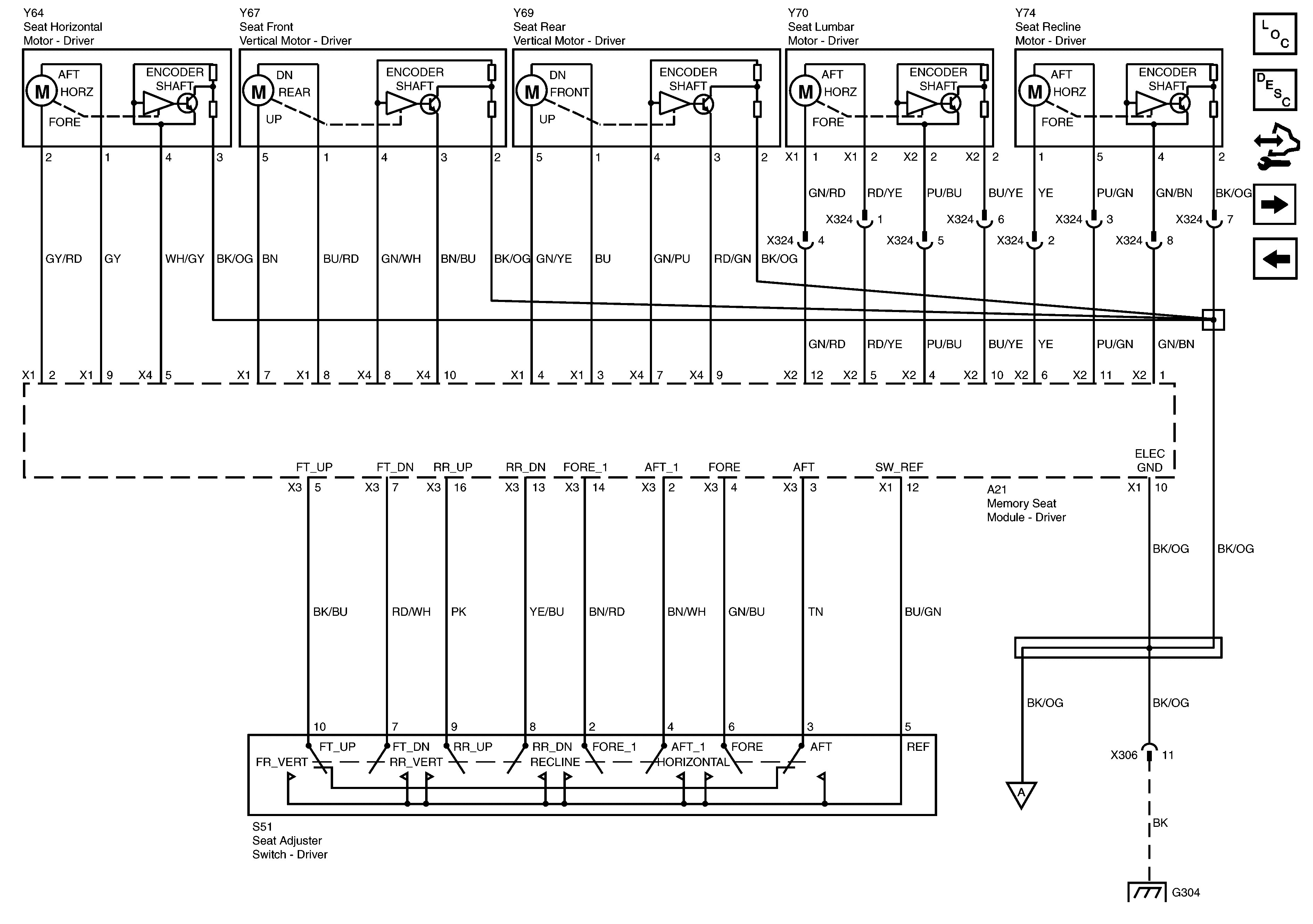
🢒 Memory Seat Module, Seat Adjuster Switch and Seat Motors, Inputs and Outputs
Memory Seat Module, Seat Adjuster Switch and Seat Motors, Inputs and Outputs
Memory Seat Module, Seat Adjuster Switch and Seat Motors, Inputs and Outputs
Master Electrical Component List
Power Seats System Description and Operation
Control Module References
Memory Seat Module, Seat Interface Module, Lumbar Switch and Memory Seat Adjuster Switch, Inputs and Outputs
G303 and G304 - 1 of 2