GM Service Manual Online
For 1990-2009 cars only
Makes
🢒
Holden
🢒
2008
🢒
WM Sedan
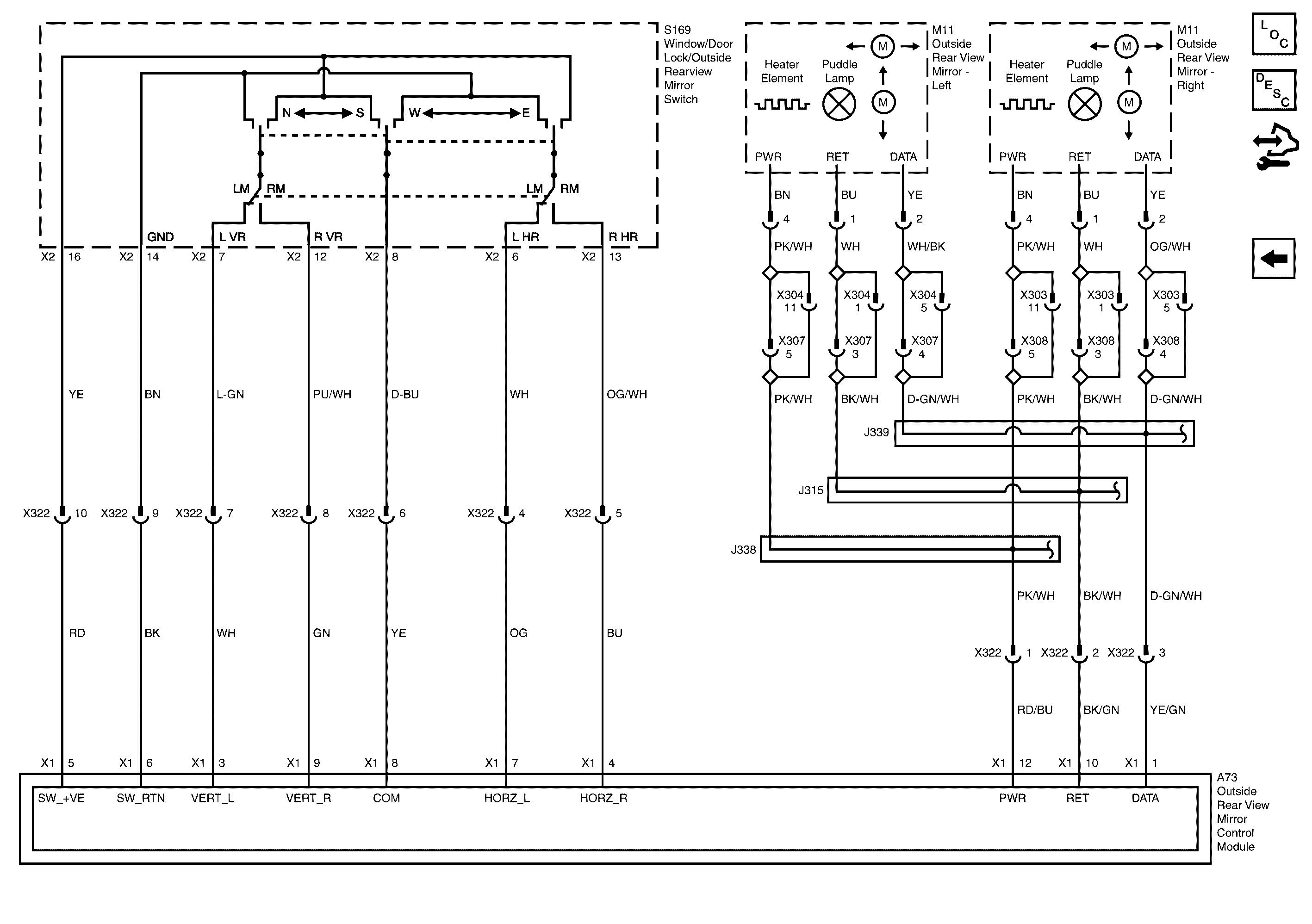
🢒 Mirror Switch and Motors
Mirror Switch and Motors
Memory Mirror Control Module Inputs and Outputs
Master Electrical Component List
Control Module References