GM Service Manual Online
For 1990-2009 cars only
Makes
🢒
Isuzu
🢒
2003
🢒
Ascender - 2WD
🢒
Steering
🢒
Steering Wheel and Column
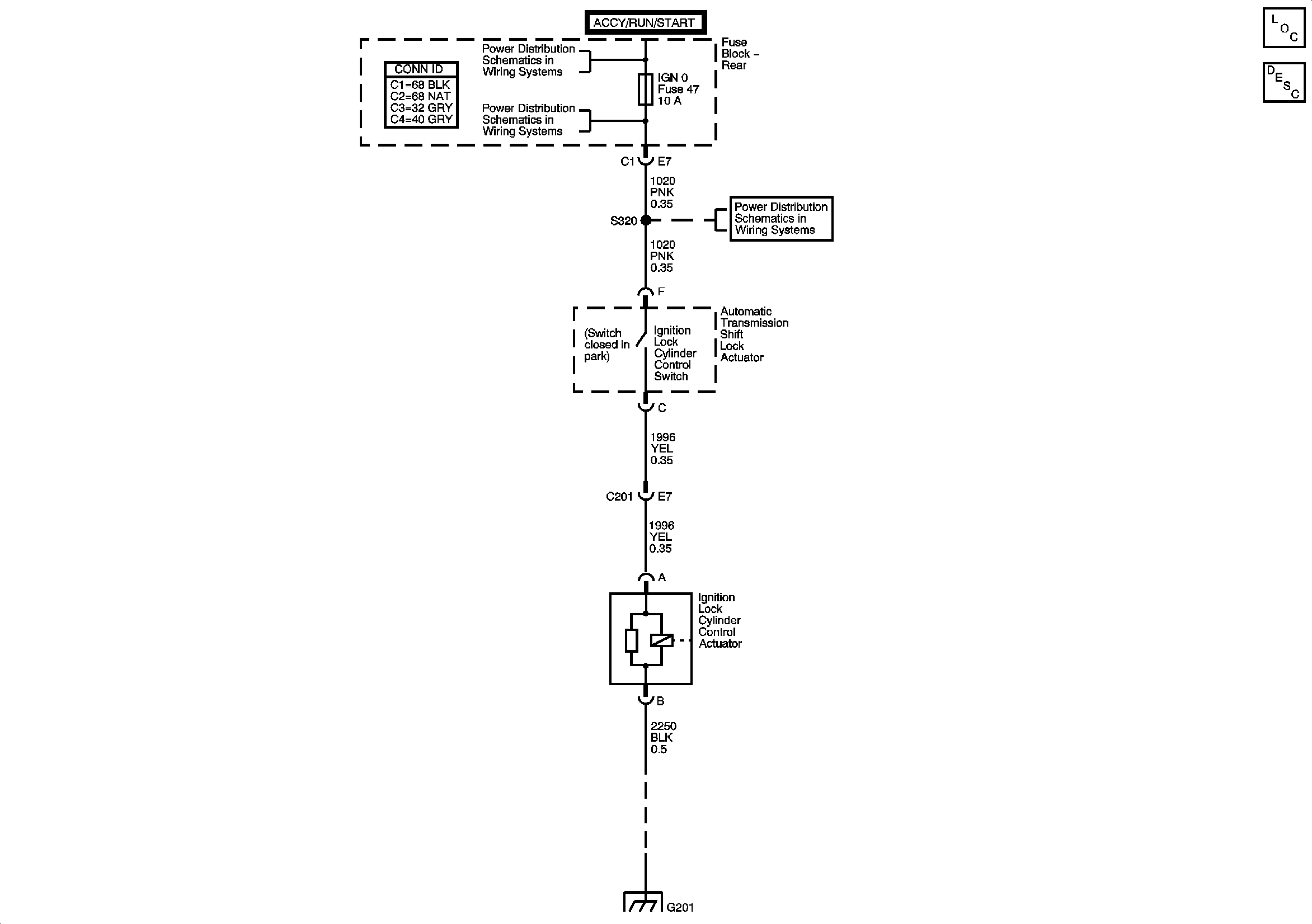
🢒 Column/Ignition Lock Schematics
Master Electrical Component List
Steering Wheel and Column Description and Operation
G201, 1 of 2
TBC 5, LT DOORS, DDM;, PDM, RT DOORS Fuses
TBC 5, LT DOORS, DDM;, PDM, RT DOORS Fuses