GM Service Manual Online
For 1990-2009 cars only
Makes
🢒
Isuzu
🢒
2005
🢒
Isuzu H-Series
🢒
Suspension
🢒
Air Suspension
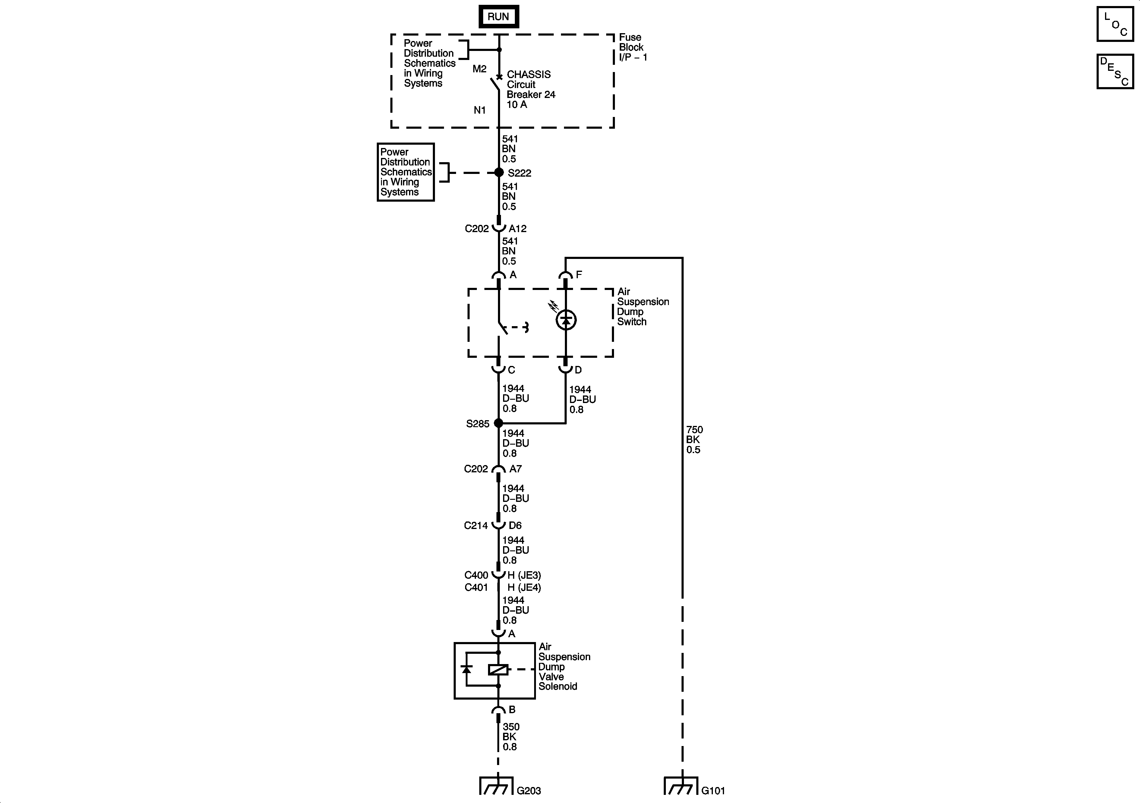
🢒 Suspension Controls Schematics
Master Electrical Component List
Air Suspension Description and Operation
Ignition Switch, RUN and ACC/RUN Bus Bars
BRAKE, CHASSIS, HTR/AC, and AXLE/4WD Fuses/Circuit Breakers
G200, G202, and G203 - 1 of 4
G101 - 2 of 2