GM Service Manual Online
For 1990-2009 cars only
Makes
🢒
Isuzu
🢒
2005
🢒
Isuzu MD F-Series
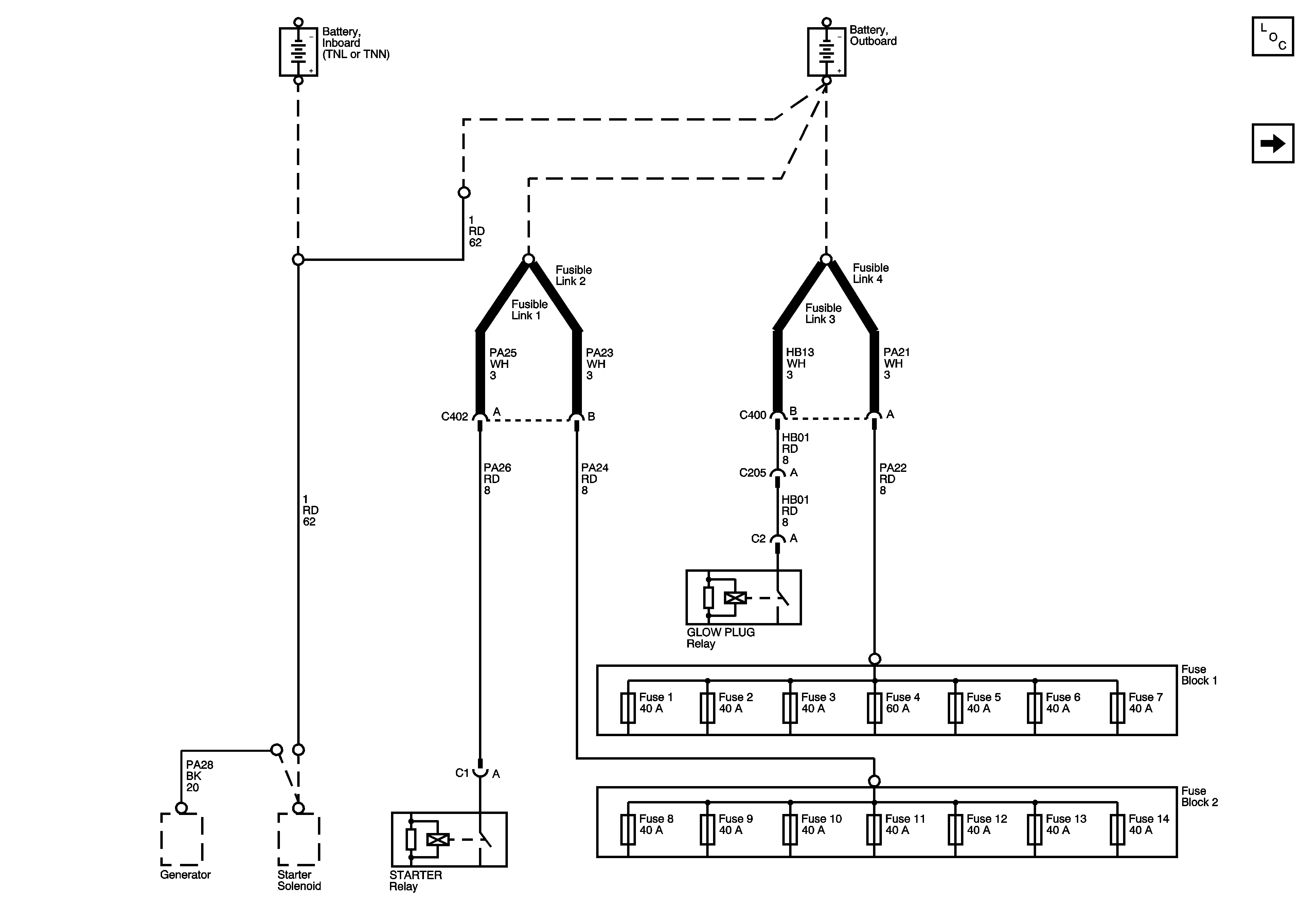
🢒 Battery Supply and B+ Bus
Battery Supply and B+ Bus
Battery Supply and B+ Bus
Master Electrical Component List
Fuse Block 1: Fuse 1 and Fuse Block - I/P - 2: Circuit Breakers 14, 15, 16 and 19