GM Service Manual Online
For 1990-2009 cars only
Makes
🢒
Isuzu
🢒
2007
🢒
Isuzu MD F-Series
🢒 Solenoids
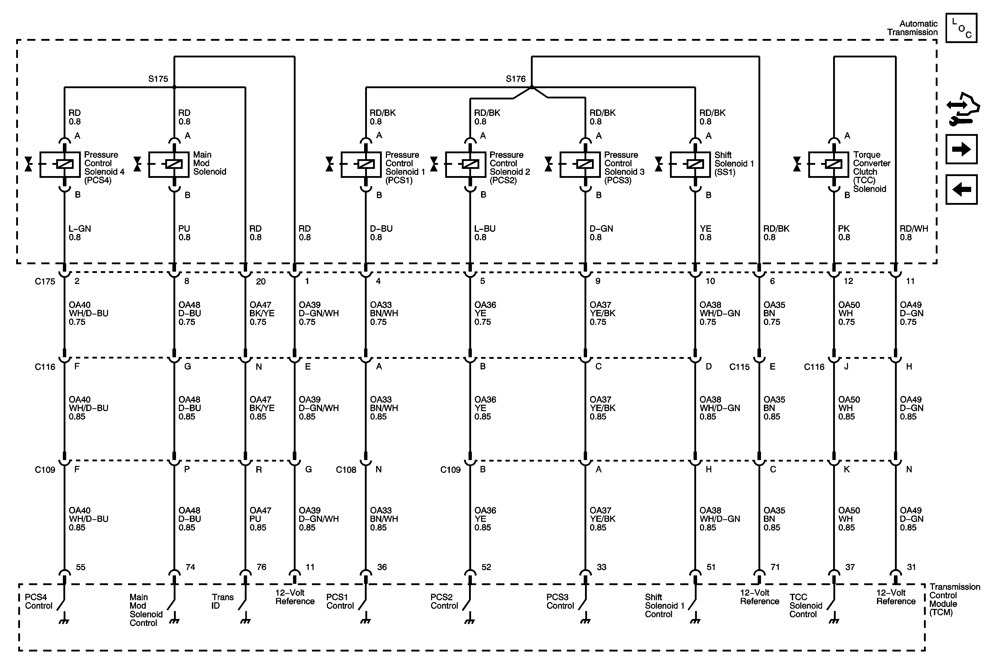
Solenoids
Automatic Transmission (A/T) Shift Selector, C103 - Upfitter TRANS OPT Connector
Master Electrical Component List
Control Module References
Speed Sensors, Shift Selector
Power, Ground, Serial Data, MIL, Solenoids, Transmission Optional Connector