GM Service Manual Online
For 1990-2009 cars only
Makes
🢒
Isuzu
🢒
2008
🢒
Isuzu MD F-Series
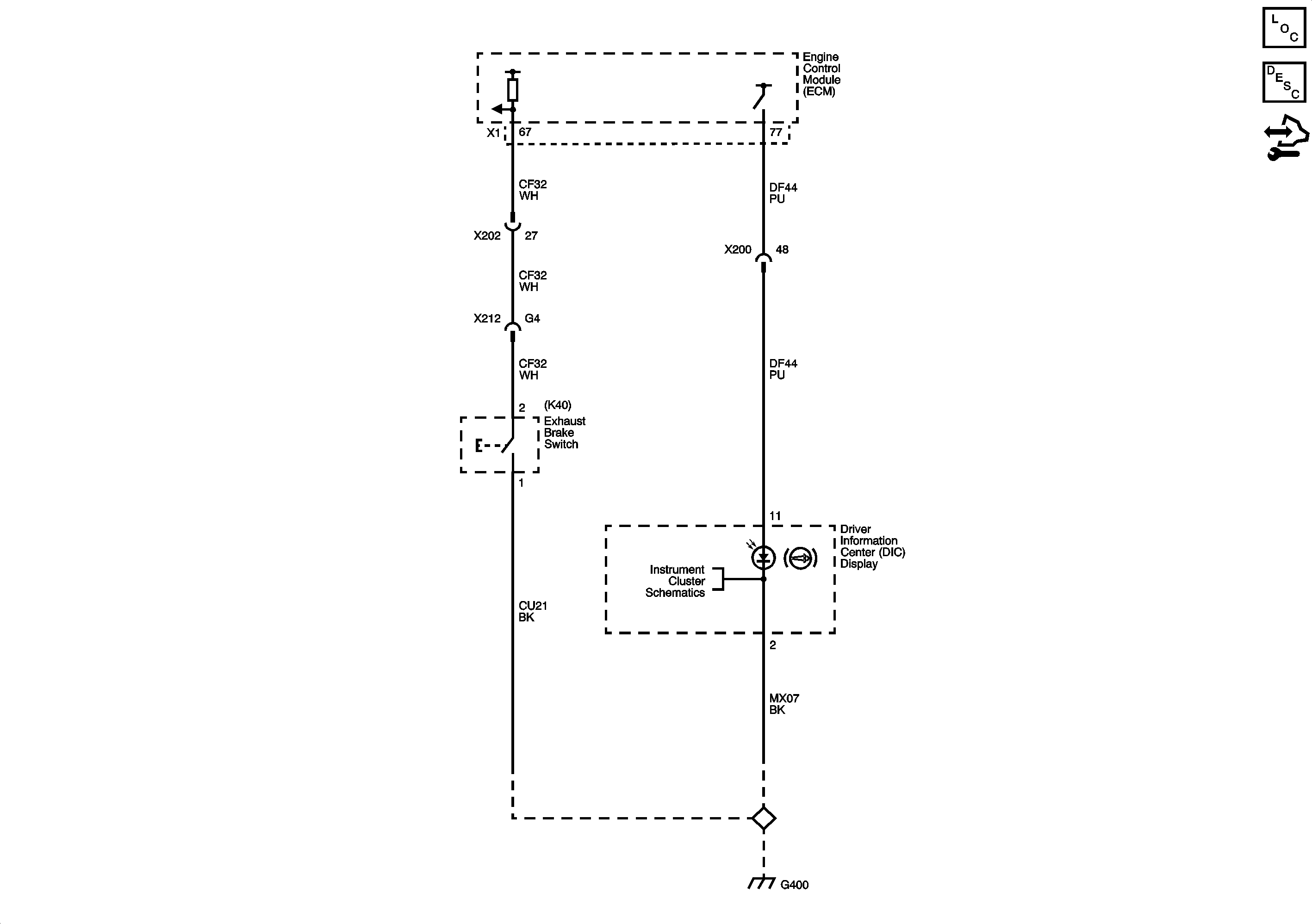
🢒 Exhaust System Schematics
Exhaust System Schematics
Exhaust System Schematics
Master Electrical Component List
Exhaust System Description
Control Module References
Driver Information Center (DIC)
G400 - 7 of 8