GM Service Manual Online
For 1990-2009 cars only
Makes
🢒
Isuzu
🢒
2008
🢒
Isuzu MD F-Series
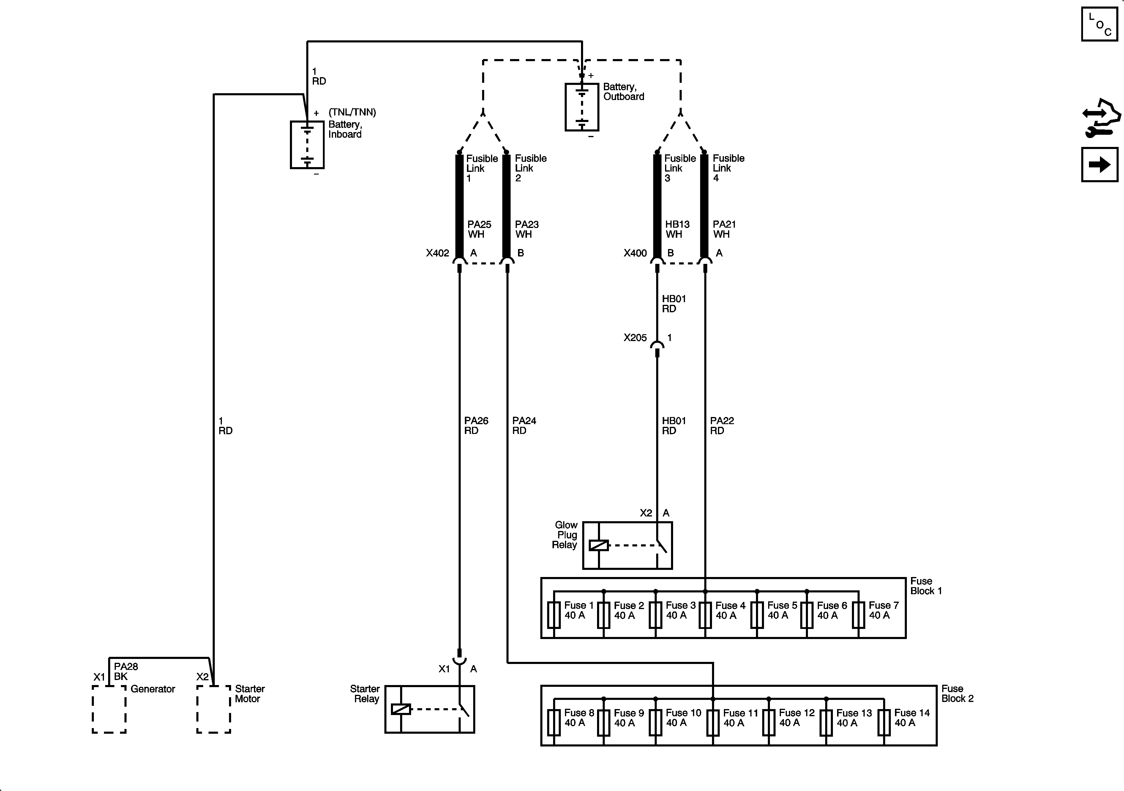
🢒 Battery Supply and B+ Bus
Battery Supply and B+ Bus
Battery Supply and B+ Bus
Master Electrical Component List
Control Module References
Fuse Block 1: Fuse 1 and Fuse Block I/P 2: Circuit Breakers 14, 15, 16, and 19