GM Service Manual Online
For 1990-2009 cars only
Makes
🢒
Isuzu
🢒
2002
🢒
Isuzu T-Series (Truck Line C)
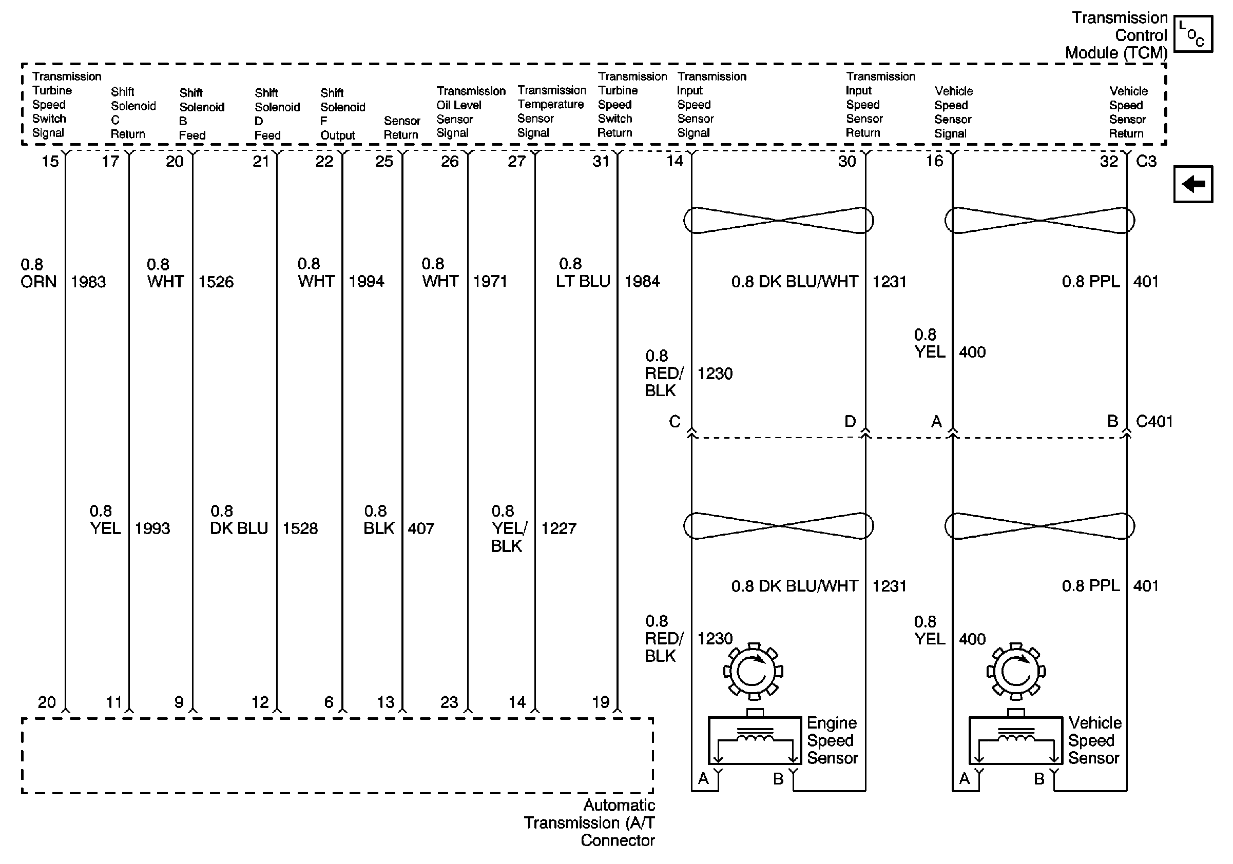
🢒 Transmission Controls, Speed Sensor Inputs
Transmission Controls, Speed Sensor Inputs
Transmission Controls, Speed Sensor Inputs
Master Electrical Component List
Transmission Control Module, Power and Ground
Transmission Controls, MD Automatic Transmission