GM Service Manual Online
For 1990-2009 cars only
Makes
🢒
Isuzu
🢒
2007
🢒
Isuzu - N Series
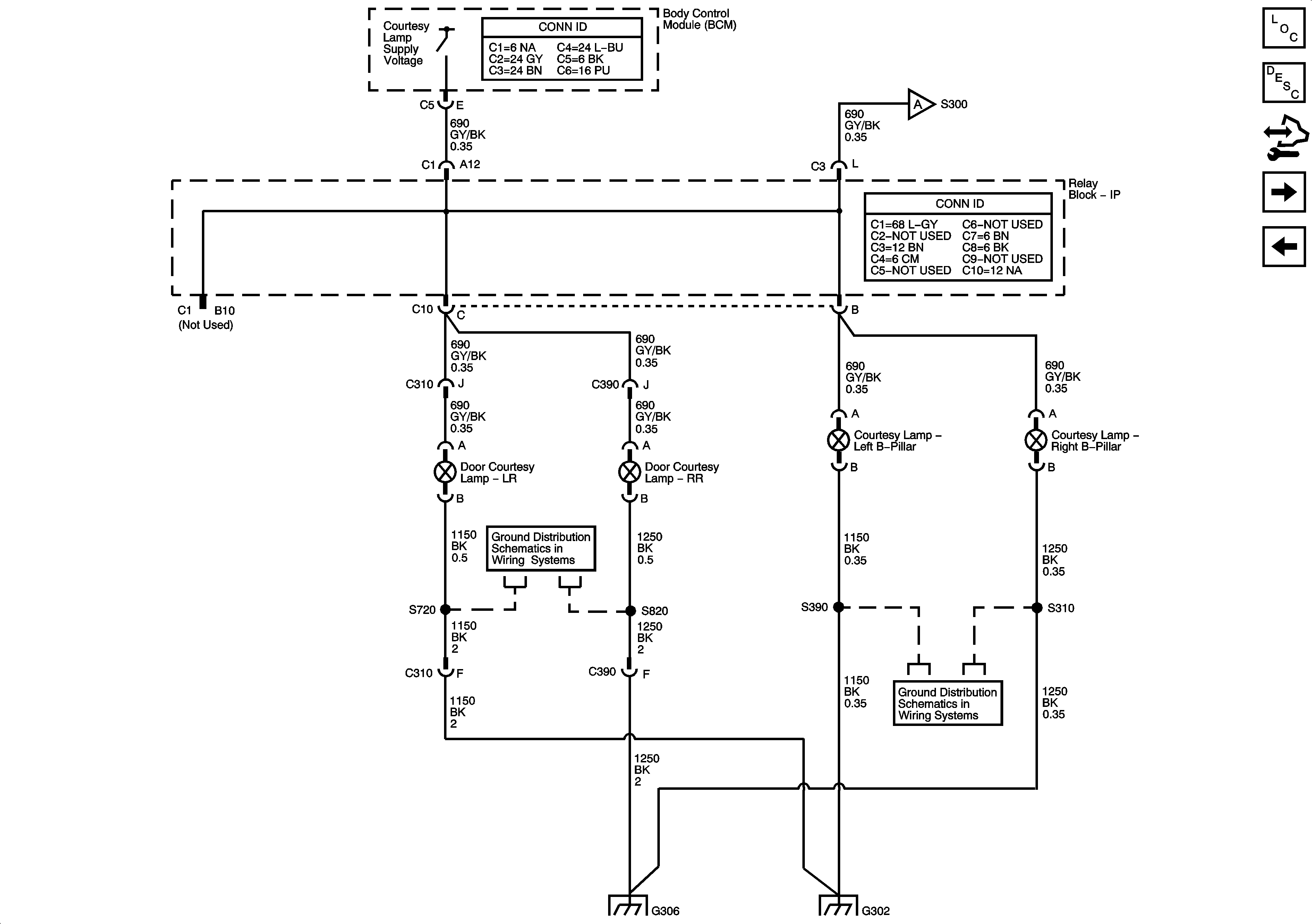
🢒 Courtesy Lamps - Rear Doors and B-Pillars
Courtesy Lamps - Rear Doors and B-Pillars
Courtesy Lamps - Rear Doors and B-Pillars
Master Electrical Component List
Interior Lighting Systems Description and Operation
Control Module References
Courtesy Lamps - Headliner
Interior Light Controls, BCM, and Door Ajar Switches
Courtesy Lamps - Headliner
G302, G304, and G306
G302, G304, and G306
G302, G304, and G306
G302, G304, and G306