GM Service Manual Online
For 1990-2009 cars only
Makes
🢒
Isuzu
🢒
2000
🢒
S/T Isuzu - 2WD
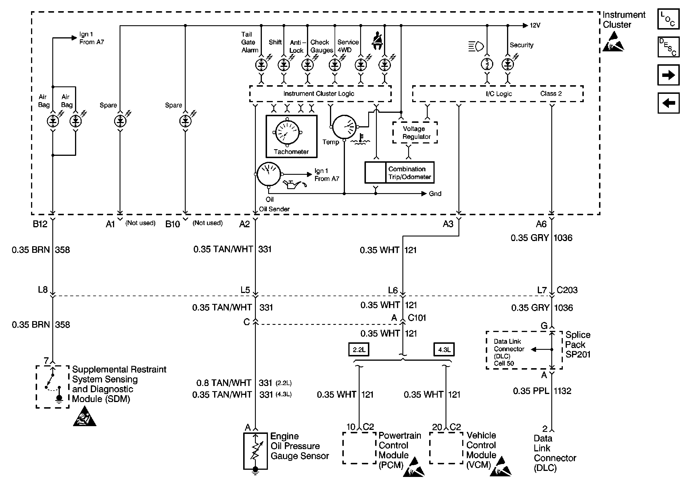
🢒 Cell 81: VCM/PCM, DLC and SRS
Cell 81: VCM/PCM, DLC and SRS
Cell 81: VCM/PCM, DLC and SRS
SRS Service Precautions
Handling ESD Sensitive Parts Notice
Handling ESD Sensitive Parts Notice
Cell 50: SP201 (2.2L)
Handling ESD Sensitive Parts Notice
Instrument Cluster Components
Instrument Cluster Circuit Description
Cell 81: CRANK Fuse and VSS Input
Cell 81: Grounds