GM Service Manual Online
For 1990-2009 cars only
Makes
🢒
Isuzu
🢒
2000
🢒
S/T Isuzu - 2WD
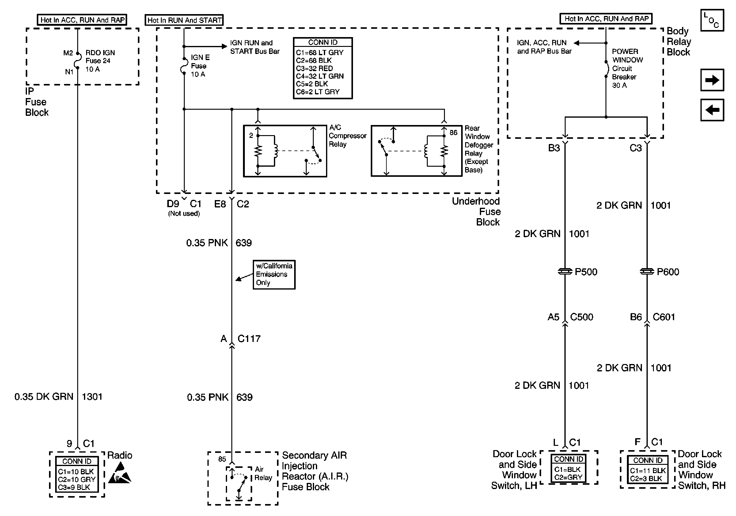
🢒 IGN E, RDO IGN Fuses and Power Window Circuit Breaker
IGN E, RDO IGN Fuses and Power Window Circuit Breaker
IGN E, RDO IGN Fuses and Power Window Circuit Breaker
Power and Grounding Components
B/U LP, VEH B/U and BTSI Fuses
TURN, SIR and GAUGES Fuses
RAP, IGN B Fuses and Ignition Switch
IGN C, IGN A Fuses and Ignition and Start Switch
Power and Grounding Connector End Views
RAP, IGN B Fuses and Ignition Switch
Entertainment Connector End Views
Handling ESD Sensitive Parts Notice
Power Door Systems Connector End Views
Power Door Systems Connector End Views