GM Service Manual Online
For 1990-2009 cars only
Makes
🢒
Oldsmobile
🢒
1998
🢒
Achieva
🢒
Body and Accessories
🢒
Seats
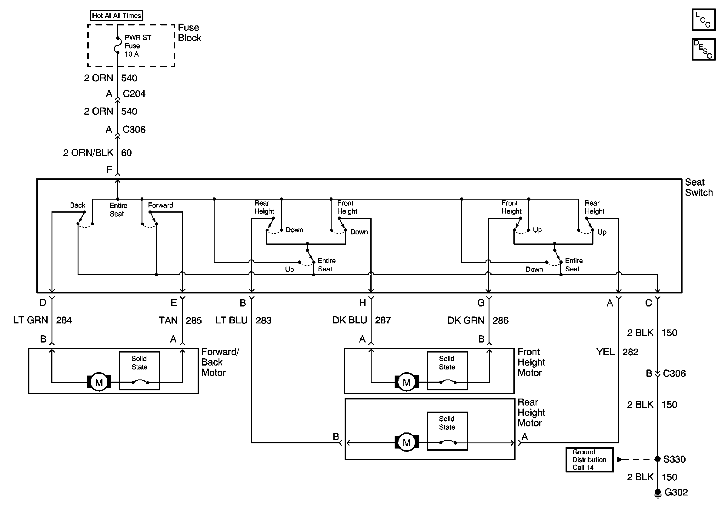
🢒 Power Seats Schematics
Cell 140: AC3 and AG1
Power Seat Systems Components
Power Seats Circuit Description
Ground Distribution Schematics