GM Service Manual Online
For 1990-2009 cars only

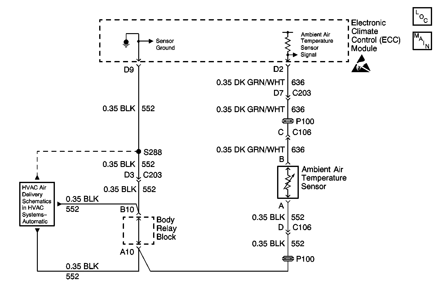
Object Number: 557000  Size: MF
HVAC Components
ECC Module and Temperature Sensors
ECC Module and Temperature Sensors
Handling ESD Sensitive Parts Notice

Circuit Description

The HVAC control module monitors the Ambient air temperature via an Ambient air temperature sensor. When the air is cold, the sensor resistance and the signal voltage are high. When the air is warm, the sensor resistance and the signal voltage are low. The HVAC control module displays the Ambient air temperature.

Conditions for Running the DTC

The ignition is turned ON.

Conditions for Setting the DTC

The HVAC control module detects the fault whenever the temperature is at or below -40° C (-40° F).

Action Taken When the DTC Sets

The HVAC control module uses a default temperature sensor value of -125° C (257° F) until the fault is cleared.

Conditions for Clearing the DTC

    • The DTC becomes history when the HVAC control module no longer detects a failure.
    • The history DTC clears after 50 fault-free ignition cycles.
    • The DTC can be cleared with a scan tool.

Diagnostic Aids

    • Visually inspect the sensor connector and harness for corrosion and damage. The resistance value of the sensor must be 47-101,000 ohms. If the resistance is not within the specified value, replace the sensor.
    • Insure Ambient air temperature sensor shield is in place. If this is not in place it could lead to excessive air flow across sensor and give incorrect reading to HVAC control module.
    • If condition is not present refer to Testing for Intermittent Conditions and Poor Connections in Wiring Systems.

Test Description

The number(s) below refer to the step number(s) on the diagnostic table.

  1. Tests for the proper operation of the circuit in the high voltage range.

  2. Tests for the proper operation of the circuit in the low voltage range. If the fuse in the jumper opens when you perform this test, the signal circuit is shorted to voltage.

Step

Action

Value(s)

Yes

No

1

Did you perform the HVAC Diagnostic System Check?

--

Go to Step 2

Go to Diagnostic System Check

2

  1. Install a scan tool.
  2. Turn ON the ignition, with the engine OFF.
  3. With a scan tool, observe the Ambient Air Temp parameter in the Heating and Air Conditioning Data Display data list.

Does the scan tool indicate that the Ambient Air Temp parameter is within the specified range?

-40° to 80° C (-40° to 176° F)

Go to Diagnostic Aids

Go to Step 3

3

  1. Turn OFF the ignition.
  2. Disconnect the outside air temperature sensor.
  3. Turn ON the ignition, with the engine OFF.
  4. With a scan tool, observe the Ambient Air Temp parameter.

Does the scan tool indicate that the Ambient Air Temp parameter is less than the specified value?

-40° C (-40° F)

Go to Step 4

Go to Step 5

4

  1. Turn OFF the ignition.
  2. Connect a 3 amp fused jumper wire between the signal circuit of the outside air temperature sensor and the low reference circuit of the outside air temperature sensor.
  3. Turn ON the ignition, with the engine OFF.
  4. With a scan tool, observe the Ambient Air Temp parameter.

Does the scan tool indicate that the Ambient Air Temp parameter is less than the specified value?

80° C (176° F

Go to Step 8

Go to Step 6

5

Test the signal circuit of the outside air temperature sensor for a short to ground. Refer to Circuit Testing and Wiring Repairs in Wiring Systems.

Did you find and correct the condition?

--

Go to Step 12

Go to Step 9

6

Test the signal circuit of the outside air temperature sensor for a short to voltage, a high resistance, or an open. Refer to Circuit Testing and Wiring Repairs in Wiring Systems.

Did you find and correct the condition?

--

Go to Step 12

Go to Step 7

7

Test the low reference circuit of the outside air temperature sensor for a high resistance or an open. Refer to Circuit Testing and Wiring Repairs in Wiring Systems.

Did you find and correct the condition?

--

Go to Step 12

Go to Step 9

8

Inspect for poor connections at the harness connector of the outside air temperature sensor. Refer to Testing for Intermittent Conditions and Poor Connections and Special Tools in Wiring Systems.

Did you find and correct the condition?

--

Go to Step 12

Go to Step 10

9

Inspect for poor connections at the harness connector of the HVAC control module. Refer to Testing for Intermittent Conditions and Poor Connections and Special Tools in Wiring Systems.

Did you find and correct the condition?

--

Go to Step 12

Go to Step 11

10

Replace the outside air temperature sensor. Refer to Ambient Temperature Sensor Replacement .

Did you complete the replacement?

--

Go to Step 12

--

11

Replace the HVAC control module. Refer to Control Assembly Replacement .

Did you complete the replacement?

--

Go to Step 12

--

12

  1. Use the scan tool in order to clear the DTCs.
  2. Operate the vehicle within the Conditions for Running the DTC as specified in the supporting text.

Does the DTC reset?

--

Go to Step 2

System OK