GM Service Manual Online
For 1990-2009 cars only
Makes
🢒
Oldsmobile
🢒
1999
🢒
Intrigue
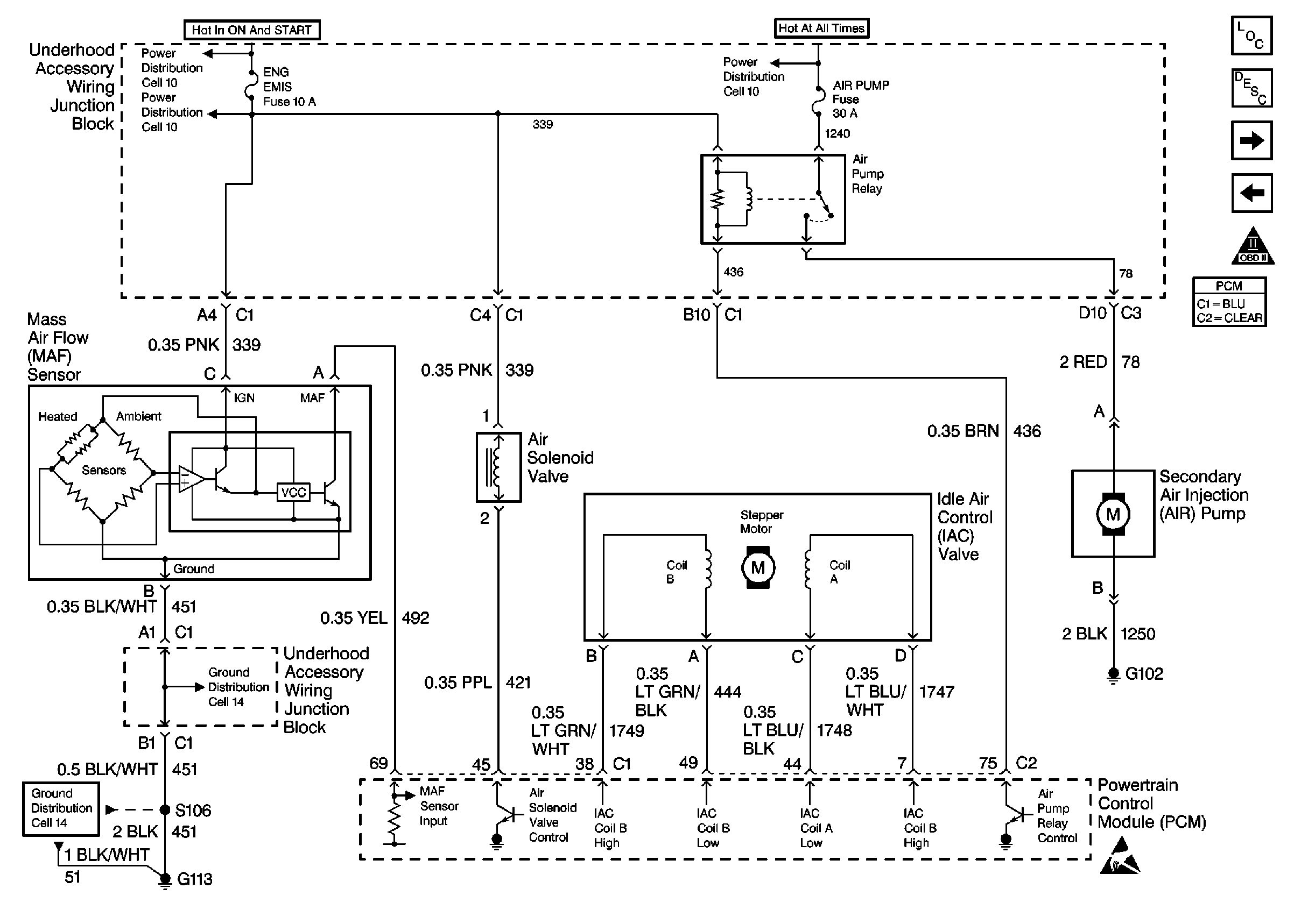
🢒 IAC and MAF
IAC and MAF
IAC and MAF
Engine Controls Components
Powertrain Control Module Description
Cruise Control Module and VSS
Heated Oxygen Sensor (HO2S) #1 and #2
Handling ESD Sensitive Parts Notice
Powertrain Control Module Connector End Views
Handling ESD Sensitive Parts Notice
Cell 14: LX5 Engine Grounds G100, G110, and G113
Cell 14: LX5 Engine Grounds G100, G110, and G113
Cell 10: Underhood Accessory Wiring Junction Block
Cell 10: ENG EMIS Fuse
Cell 10: Underhood Accessory Wiring Junction Block