GM Service Manual Online
For 1990-2009 cars only
Makes
🢒
Oldsmobile
🢒
1998
🢒
LSS
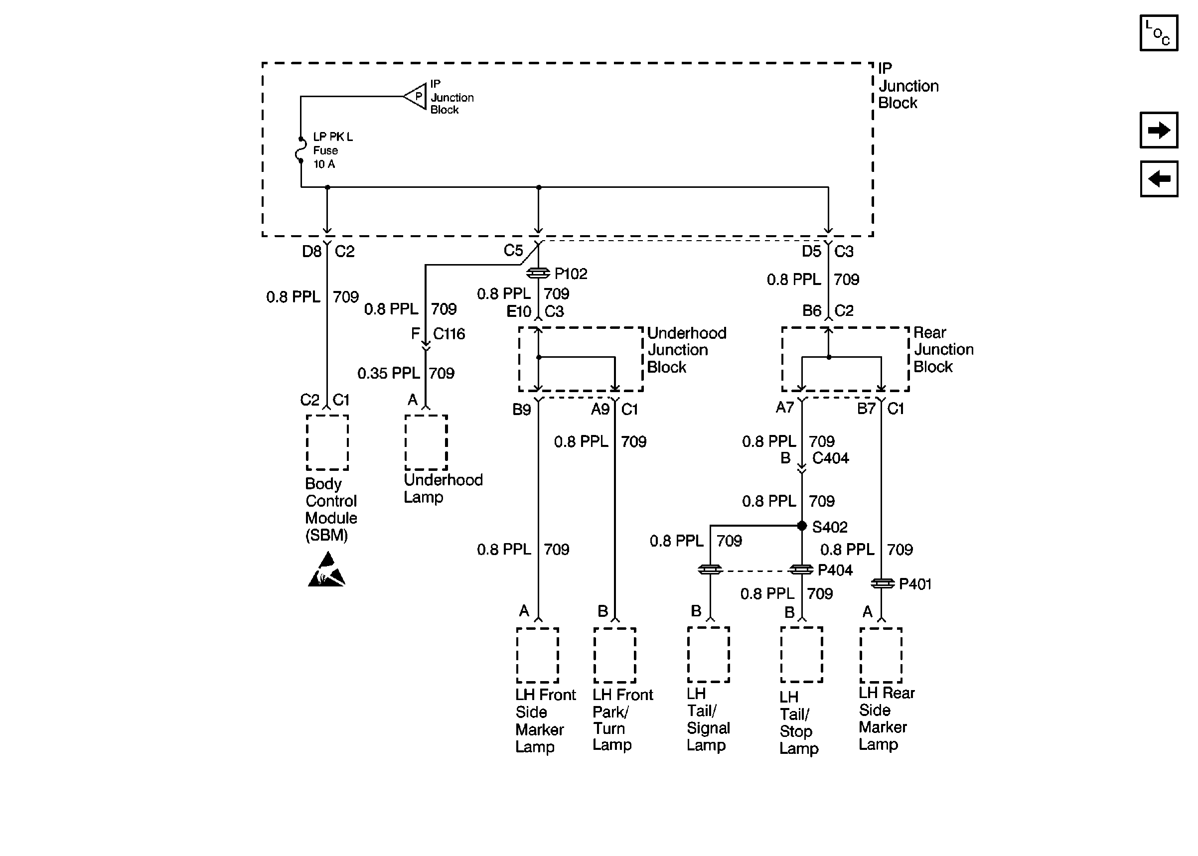
🢒 Cell 10: LP PK L Fuse
Cell 10: LP PK L Fuse
Cell 10: LP PK L Fuse
Power and Grounding Components
Cell 10: LP PK R Fuse
Cell 10: LP PK, HZDT/SG, STOP, and B/U LP Fuses
Cell 10: LP PK, HZDT/SG, STOP, and B/U LP Fuses
Handling ESD Sensitive Parts Notice