GM Service Manual Online
For 1990-2009 cars only
Figure 1:

Underhood Accessory Wiring Junction Block


Object Number: 771866  Size: FS
Master Electrical Component List
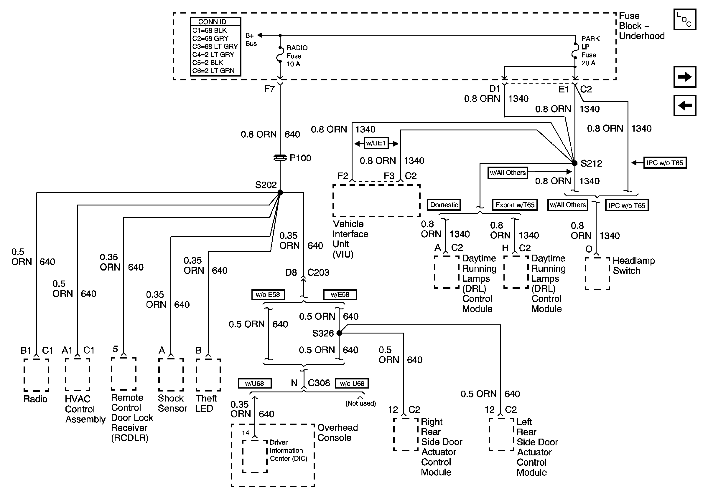
EBCM, BATT Main 1, RADIO and PARK LP Fuses
Figure 2:

EBCM, BATT Main 1, RADIO and PARK LP Fuses


Object Number: 771902  Size: FS
Master Electrical Component List
BATT Main2, ELC/ TRAILER, RR DEFOG, RR FOG LP fuses and PWR/HEATED SEAT PSD circuit breaker
Underhood Accessory Wiring Junction Block
Figure 3:

BATT Main 2, ELC/TRAILER, RR DEFOG, RR FOG LP Fuses and PWR/HEATED SEAT PSD Circuit Breaker


Object Number: 771907  Size: FS
Master Electrical Component List
Underhood Accessory Wiring Junction Block, TCC, ELEK IGN fuses
EBCM, BATT Main 1, RADIO and PARK LP Fuses
SWC BACKLING, MTD MIRROR fuses
Figure 4:

SWC BACKLIGHT and HTD MIRROR Fuses


Object Number: 771926  Size: FS
Master Electrical Component List
IGN Main2, BCM PRGRM, RR WPR/WSHR, MALL/CLUSTER, FRT/WPR/WSHR fuses
BATT Main2, ELC/ TRAILER, RR DEFOG, RR FOG LP fuses and PWR/HEATED SEAT PSD circuit breaker
BATT Main2, ELC/ TRAILER, RR DEFOG, RR FOG LP fuses and PWR/HEATED SEAT PSD circuit breaker
Defogger
SIR Caution
SIR Caution
Figure 5:

IGN Main 2, BCM PRGRM, RR WPR/WSHR, MALL/CLUSTER and FRT/WPR/WSHR Fuses


Object Number: 771913  Size: FS
Master Electrical Component List
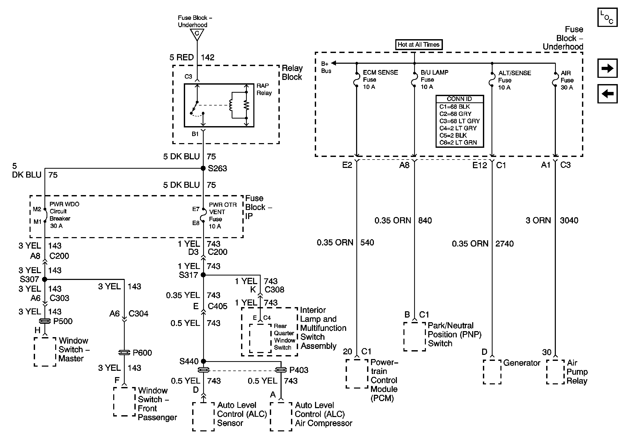
RAP RELAY, Underhood Accessory Wiring Junction Block, ECM SENSE, B/U LAMP, ALT/SENSE, AIR fuses
SWC BACKLING, MTD MIRROR fuses
RAP RELAY, Underhood Accessory Wiring Junction Block, ECM SENSE, B/U LAMP, ALT/SENSE, AIR fuses
DRL/HVAC/TEMP/HTD ST, HVAC BLOWER, RR HVAC/TEMP CONT fuses
Figure 6:

Underhood Accessory Wiring Junction Block, RAP RELAY, ECM SENSE, B/U LAMP, ALT/SENSE and AIR Fuses


Object Number: 771917  Size: FS
Master Electrical Component List
DRL/HVAC/TEMP/HTD ST, HVAC BLOWER, RR HVAC/TEMP CONT fuses
IGN Main2, BCM PRGRM, RR WPR/WSHR, MALL/CLUSTER, FRT/WPR/WSHR fuses
IGN Main2, BCM PRGRM, RR WPR/WSHR, MALL/CLUSTER, FRT/WPR/WSHR fuses
Figure 7:

DRL/HVAC/TEMP/HTD ST, HVAC BLOWER and RR HVAC/TEMP CONT Fuses


Object Number: 771915  Size: FS
Master Electrical Component List
IGN, Main1, PCM/ABS, CAN VENT SOL, DRL, PCM/CRANK fuses
RAP RELAY, Underhood Accessory Wiring Junction Block, ECM SENSE, B/U LAMP, ALT/SENSE, AIR fuses
IGN Main2, BCM PRGRM, RR WPR/WSHR, MALL/CLUSTER, FRT/WPR/WSHR fuses
Figure 8:

IGN Main 1, PCM/ABS, CAN VENT SOL, DRL and PCM/CRANK Fuses


Object Number: 771911  Size: FS
Master Electrical Component List
IGN1, SDM, T/SIG, CRUISE, PCM PASSKEY/CLUSTER fuses
DRL/HVAC/TEMP/HTD ST, HVAC BLOWER, RR HVAC/TEMP CONT fuses
IGN1, SDM, T/SIG, CRUISE, PCM PASSKEY/CLUSTER fuses
IGN1, SDM, T/SIG, CRUISE, PCM PASSKEY/CLUSTER fuses
Figure 9:

IGN Main 1, SDM, T/SIG, CRUISE and PCM PASS KEY/CLUSTER Fuses


Object Number: 771912  Size: FS
Master Electrical Component List
BATT Main 1, CLUSTER BATT, RR PWR SCKT, PWR LOCK, RAP RELAY, CTSY LAMP, ONSTAR, CIGAR DLC/APO FRT and PWR MIRROR fuses
IGN, Main1, PCM/ABS, CAN VENT SOL, DRL, PCM/CRANK fuses
IGN, Main1, PCM/ABS, CAN VENT SOL, DRL, PCM/CRANK fuses
IGN, Main1, PCM/ABS, CAN VENT SOL, DRL, PCM/CRANK fuses
Figure 10:

BATT Main 1, CLUSTER BATT, RR PWR SCKT, PWR LOCK, RAP RELAY, CTSY LAMP, ONSTAR®, CIGAR DLC/APO FRT and PWR MIRROR Fuses


Object Number: 771903  Size: FS
Master Electrical Component List
Underhood Accessory Wiring Junction Block, STOP LAMP, HAZARD, PASSKEY, FRT HVAC HI BLWR and HEADLAMP circuit breaker
IGN1, SDM, T/SIG, CRUISE, PCM PASSKEY/CLUSTER fuses
Figure 11:

Underhood Accessory Wiring Junction Block, STOP LAMP, HAZARD, PASSKEY and FRT HVAC HI BLWR Fuses and HEADLAMP Circuit Breaker


Object Number: 771908  Size: FS
Master Electrical Component List
Underhood Accessory Wiring Junction Block, IGN 1-U/H fuse
BATT Main 1, CLUSTER BATT, RR PWR SCKT, PWR LOCK, RAP RELAY, CTSY LAMP, ONSTAR, CIGAR DLC/APO FRT and PWR MIRROR fuses
Figure 12:

Underhood Accessory Wiring Junction Block and IGN I-U/H Fuses


Object Number: 771919  Size: FS
Master Electrical Component List
Underhood Accessory Wiring Junction Block, TCC, ELEK IGN fuses
Underhood Accessory Wiring Junction Block, STOP LAMP, HAZARD, PASSKEY, FRT HVAC HI BLWR and HEADLAMP circuit breaker
Figure 13:

Underhood Accessory Wiring Junction Block, TCC and ELEK IGN Fuses


Object Number: 771921  Size: FS
Master Electrical Component List
INJ fuse and Fuel Injectors
Underhood Accessory Wiring Junction Block, IGN 1-U/H fuse
Figure 14:

INJ Fuse and Fuel Injector


Object Number: 771922  Size: FS
Master Electrical Component List
(Export Only) LH T/LP, HR T/LP, LH HEAD LP HIGH, RH HEAD LP HIGH, LH HEAD LP LOW, RH HEAD LP LOW fuses
Underhood Accessory Wiring Junction Block, TCC, ELEK IGN fuses
Figure 15:

(Export Only) LH T/LP, RH T/LP, LH HEAD LP HIGH, RH HEAD LP HIGH, LH HEAD LP LOW, RH HEAD LP LOW


Object Number: 771927  Size: FS
Master Electrical Component List
INJ fuse and Fuel Injectors