GM Service Manual Online
For 1990-2009 cars only
Makes
🢒
Oldsmobile
🢒
2002
🢒
Silhouette Ext.
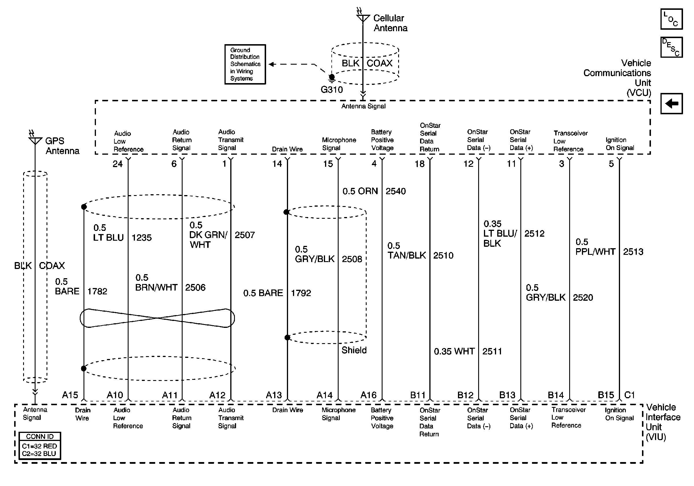
🢒 VIU and VCU Signals
VIU and VCU Signals
VIU and VCU Signals
Master Electrical Component List
G303, G305, G310, and G404
Keypad Controls