GM Service Manual Online
For 1990-2009 cars only
Makes
🢒
Opel
🢒
2007
🢒
Antara
🢒
Transmission/Transaxle
🢒
Transfer Case - Getrag 760
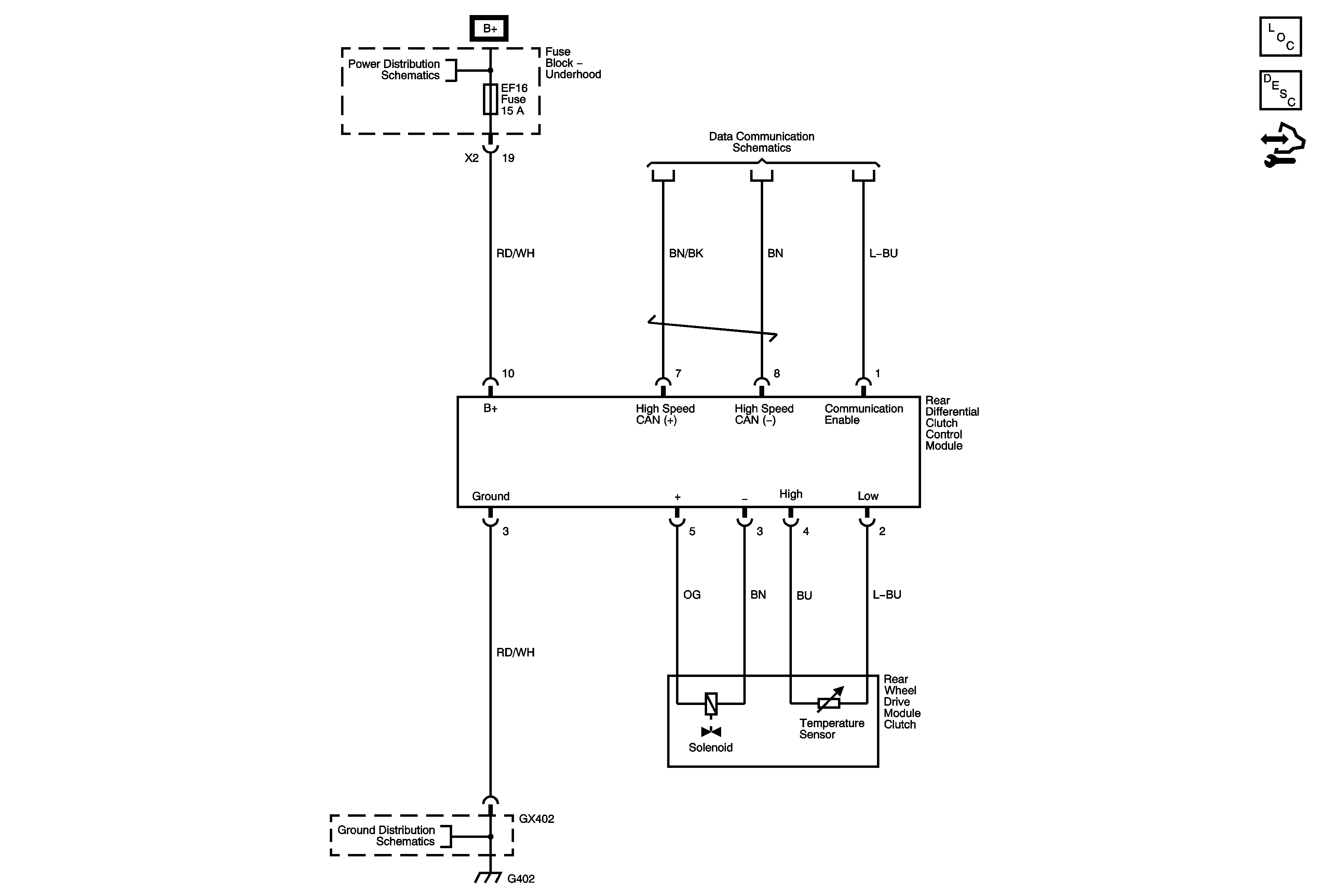
🢒 Transfer Case Control Schematics
Master Electrical Component List
Transfer Case Description and Operation
Control Module References
EF1, 4, 6, 17, 18, 19, 20, 23 Fuses
Data Link Connector (DLC)
Ground Distribution G402