GM Service Manual Online
For 1990-2009 cars only
Makes
🢒
Opel
🢒
2008
🢒
GT
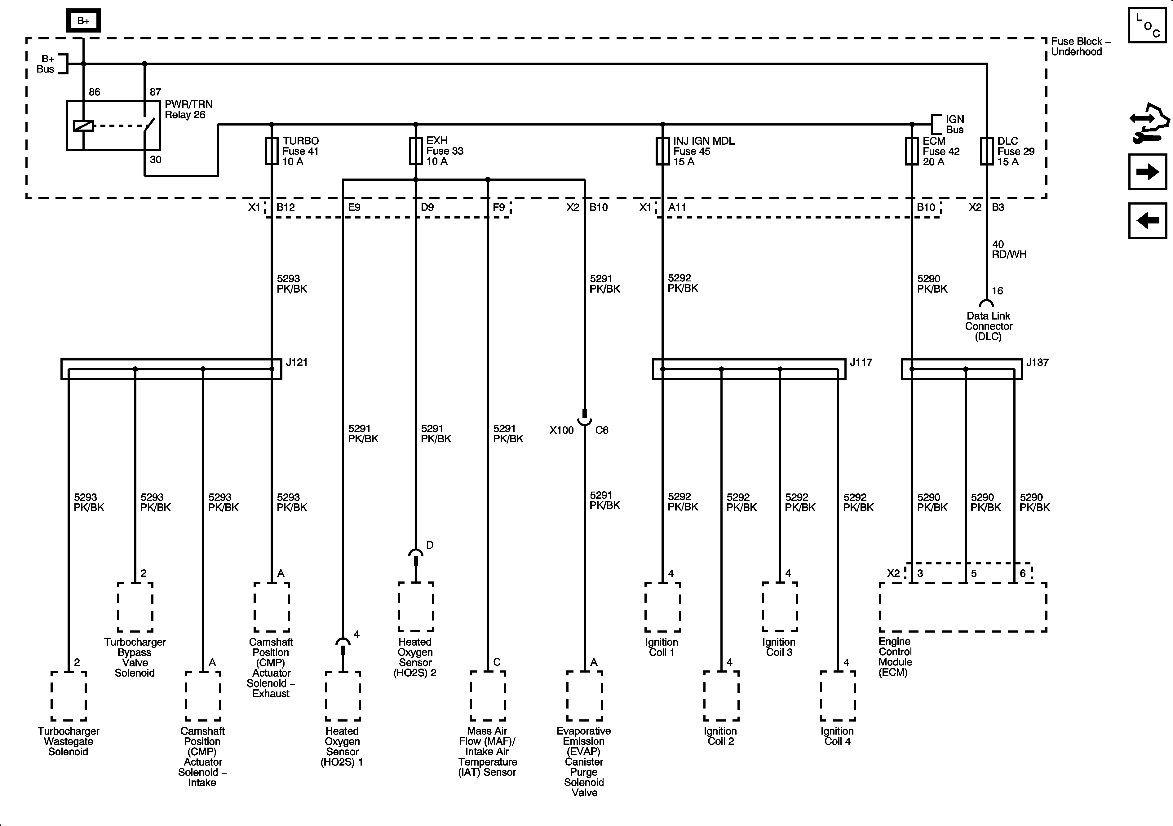
🢒 DLC, ECM, EXH, INJ IGN MDL, and TURBO Fuses
DLC, ECM, EXH, INJ IGN MDL, and TURBO Fuses
DLC, ECM, EXH, INJ IGN MDL, and TURBO Fuses
Master Electrical Component List
Control Module References
ABS, ABS/BCM, MIR, COOL FAN, RKE Fuses and PWR SEATS Circuit Breaker
ECM/TRANS, I/P/ IGN, OUTLET/LTR, AIRBAG, EPS/STR WHL CNTRL, HVAC/IP IGN, WPR, CAN VENT, BCK/UP LAMP, and ABS Fuses
B+ Bar - 2 of 2