GM Service Manual Online
For 1990-2009 cars only
Makes
🢒
Pontiac
🢒
2000
🢒
Bonneville
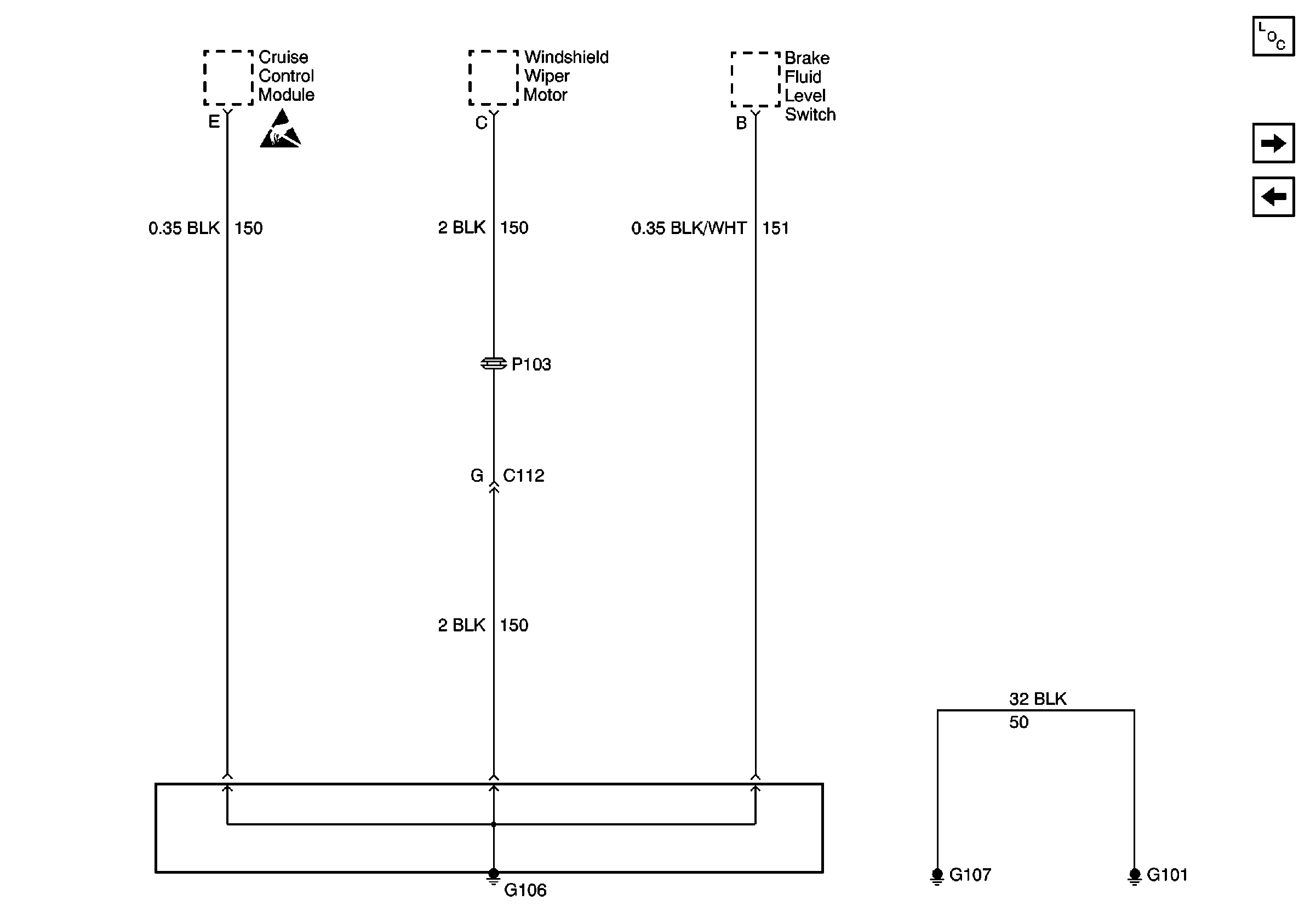
🢒 G101, G106 and G107
G101, G106 and G107
G101, G106 and G107
Power and Grounding Components
G200 (1 of 2)
G104 and G105
Handling ESD Sensitive Parts Notice