GM Service Manual Online
For 1990-2009 cars only
Makes
🢒
Pontiac
🢒
2004
🢒
Bonneville
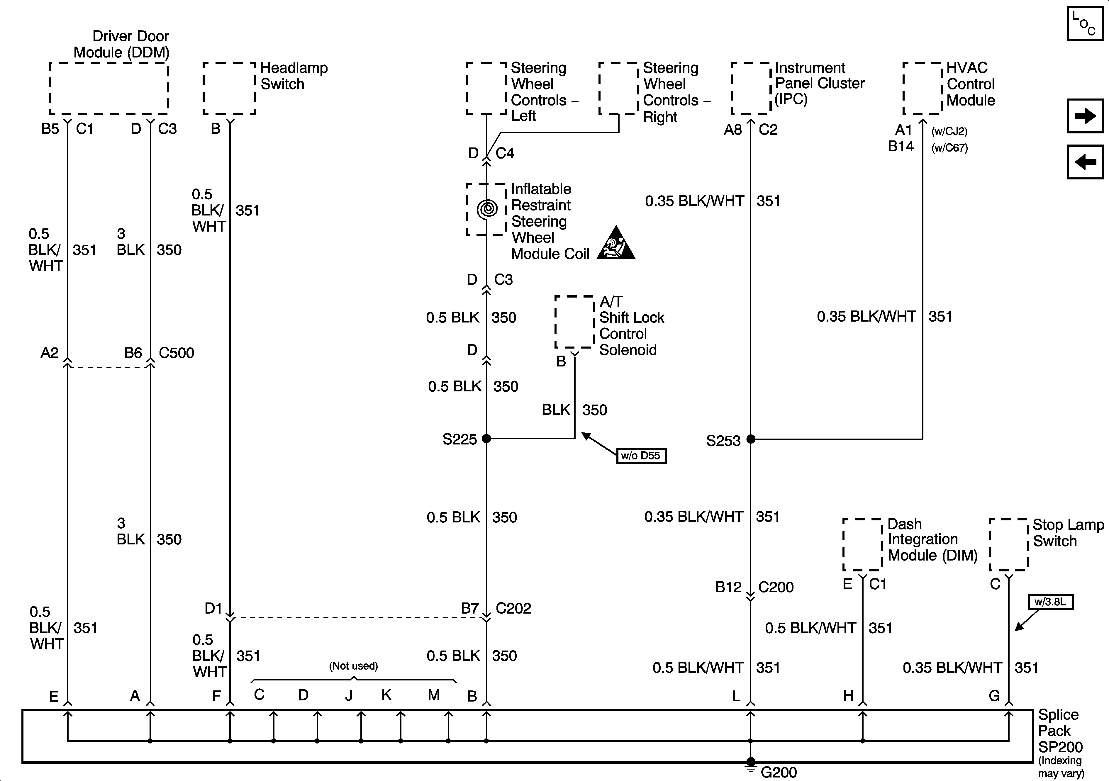
🢒 G200
G200
G200
Master Electrical Component List
SIR Caution for Zoning
G201 (1 of 2)
G104 and G105 - 3.8L