GM Service Manual Online
For 1990-2009 cars only

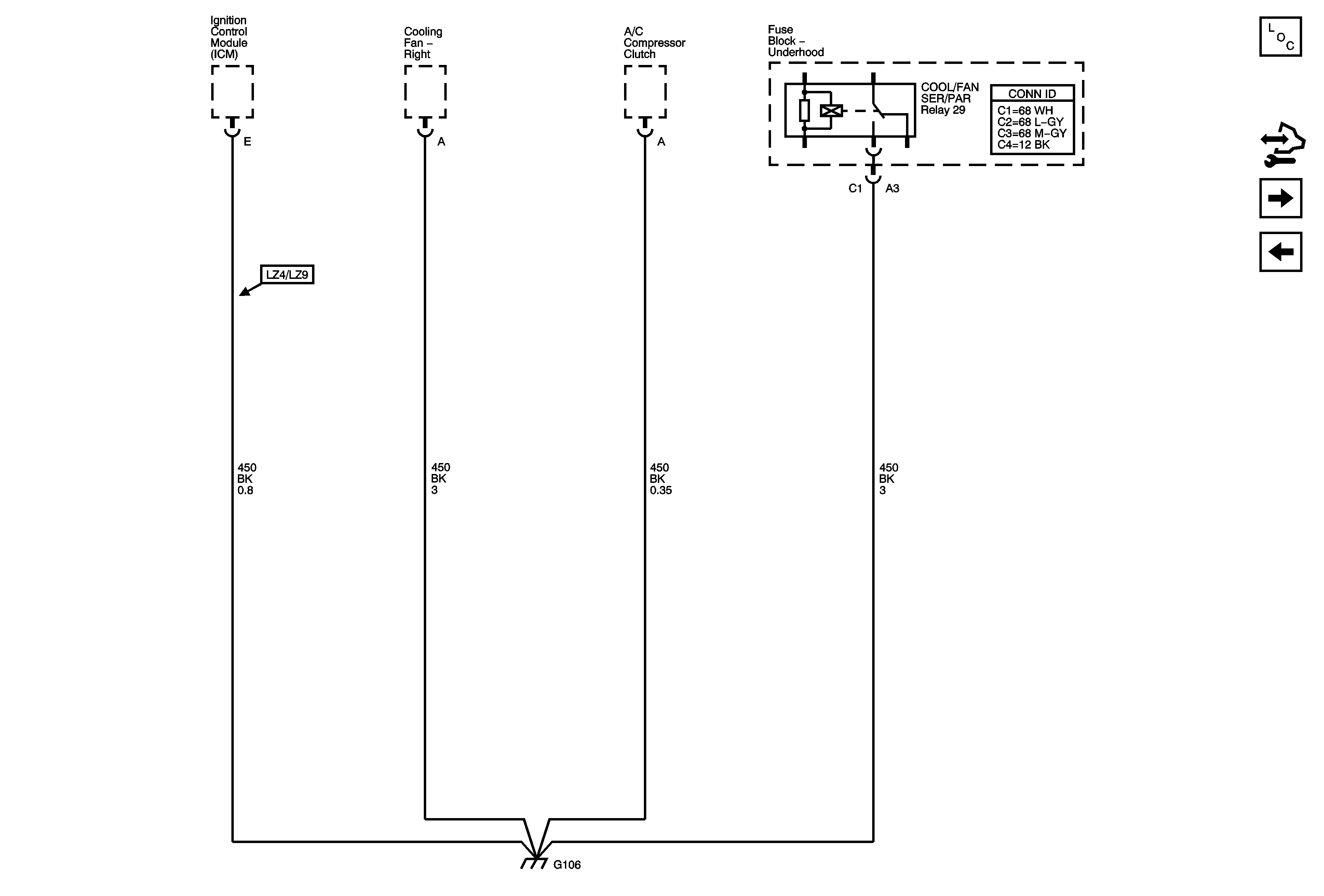
G106

G106


Object Number: 1782618  Size: FS
Master Electrical Component List
Control Module References
G108 (LY7)
G103, G104, and G105