GM Service Manual Online
For 1990-2009 cars only
Makes
🢒
Pontiac
🢒
2008
🢒
G6
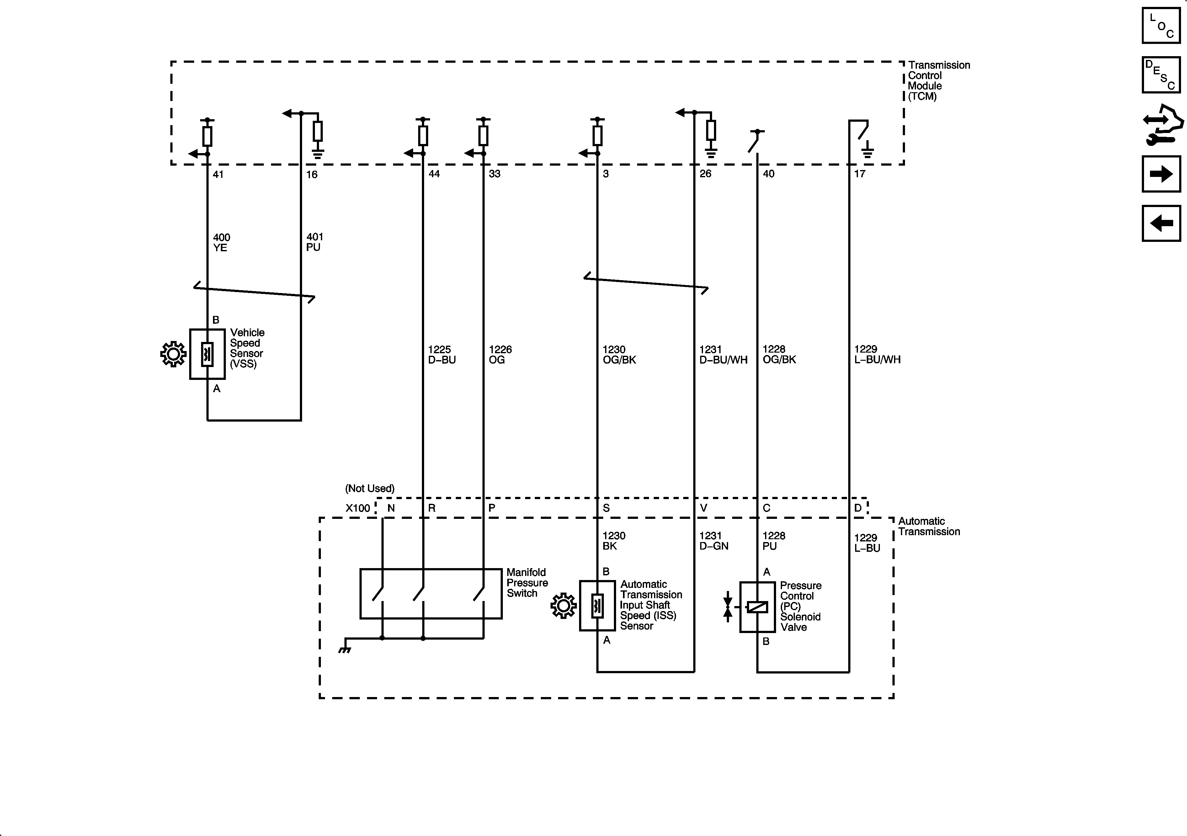
🢒 ISS, Pressure Control and VSS
ISS, Pressure Control and VSS
ISS, Pressure Control and VSS
Master Electrical Component List
Electronic Component Description
Control Module References
PNP Switch
Transmission Solenids