GM Service Manual Online
For 1990-2009 cars only
Makes
🢒
Pontiac
🢒
2000
🢒
Montana
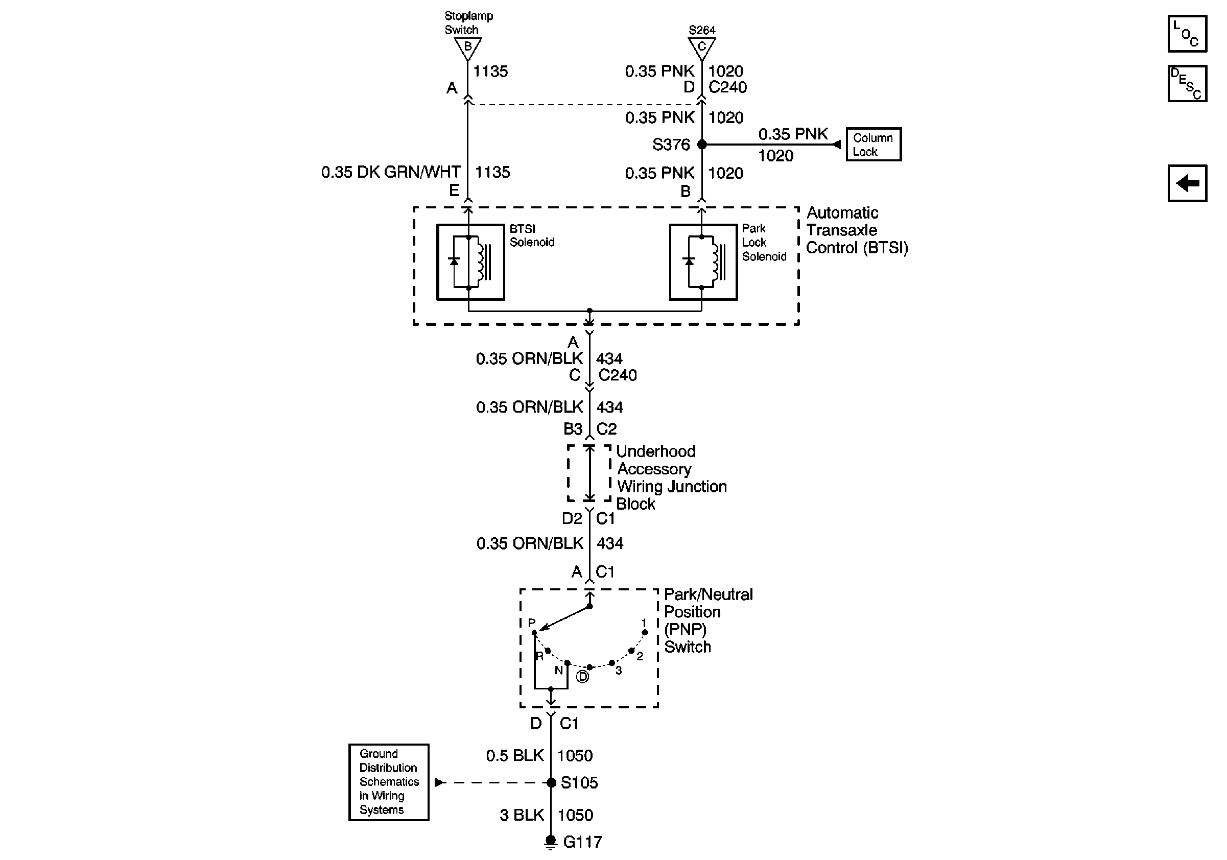
🢒 Actuator and Ground Feed
Actuator and Ground Feed
Actuator and Ground Feed