GM Service Manual Online
For 1990-2009 cars only
Makes
🢒
Pontiac
🢒
2009
🢒
Montana SV6 Ext.
🢒
Brakes
🢒
Antilock Brake System
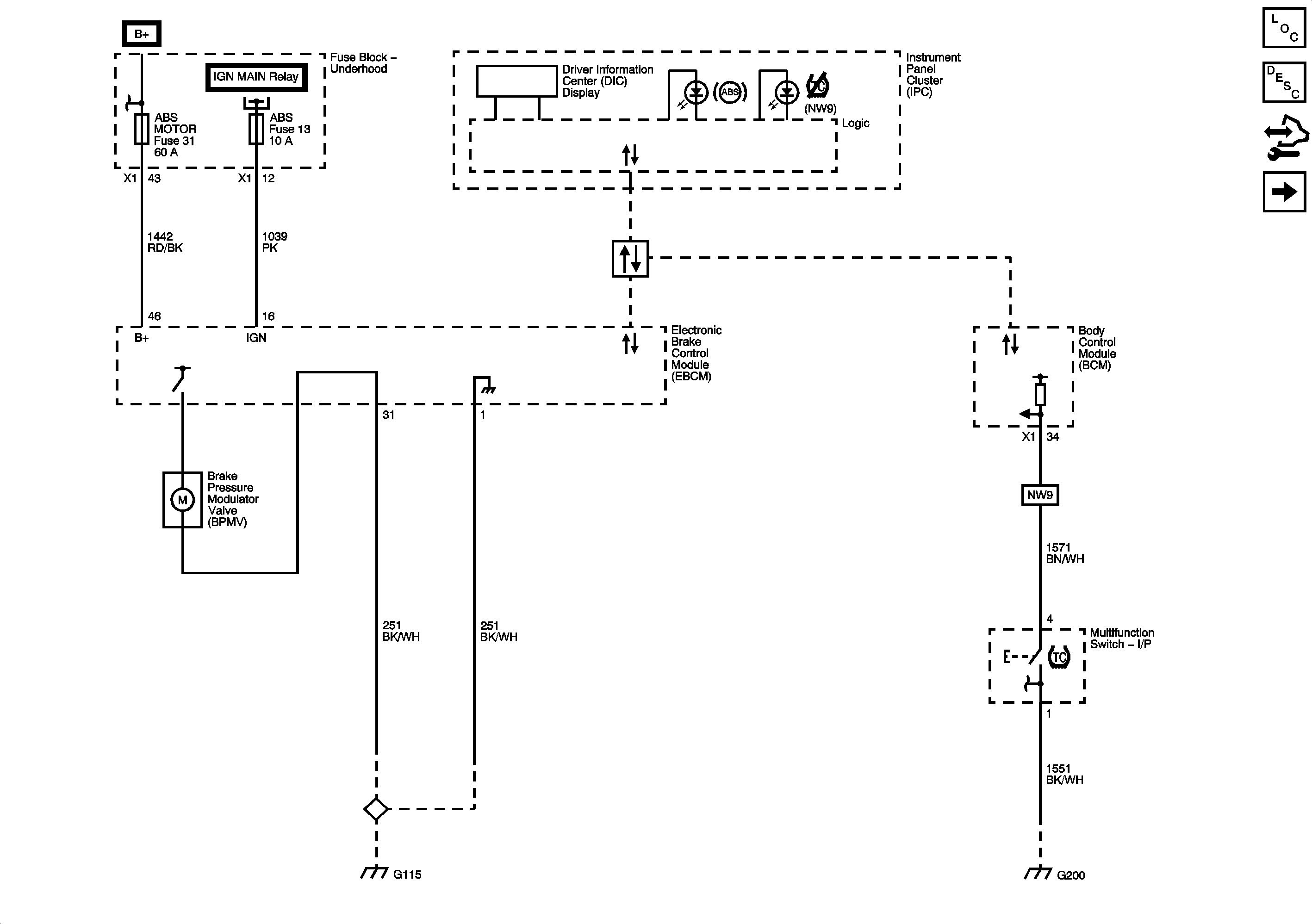
🢒 Antilock Brake System Schematics
Figure
1:
Ground, Power, Pump, Indicators, and Traction Control (NW9)
Figure
2:
Wheel Speed Sensors
Figure
3:
Driver Inputs and Stability Control Sensors (JL4)