GM Service Manual Online
For 1990-2009 cars only
Makes
🢒
Pontiac
🢒
2006
🢒
Pursuit
🢒
Vehicle Control Systems
🢒
Vehicle DTC Information
🢒 Automatic Transmission Controls Schematics
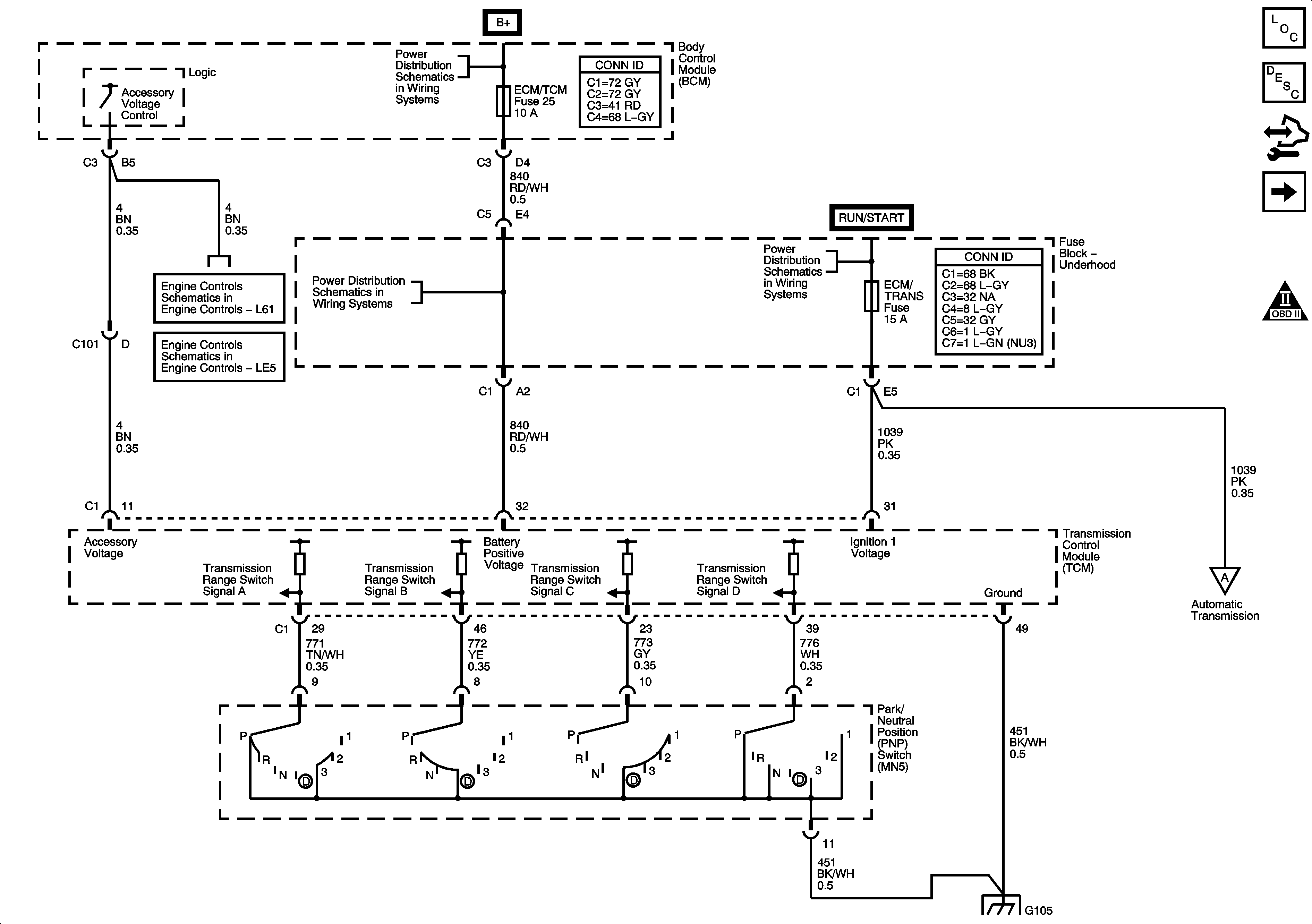
Figure
1:
TCM, Power, Ground, and PNP Switch
Master Electrical Component List
Transmission General Description
Control Module References
Transmission Solenoids and VSS
Automatic Transmission Schematic Icons
RAP, DOOR LOCK, DOOR UNLOCK, INTERIOR LAMPS Relays, DOOR LOCK RADIO, PWR WINDOW, SUNROOF, INT LPS, ECM/TCM, SDM, CURRENT SENSOR Fuses
Power, Ground, MIL, and DLC
Power, Ground, MIL, and DLC
RAP, DOOR LOCK, DOOR UNLOCK, INTERIOR LAMPS Relays, DOOR LOCK RADIO, PWR WINDOW, SUNROOF, INT LPS, ECM/TCM, SDM, CURRENT SENSOR Fuses
RUN/CRANK Relay, I/P IGN, BACKUP, ABS, ECM, TRANS, LIGHTING, S-BAND, MIRROR, ABS, EPS, BCM2, BCM3, HEATED SEATS Fuses
Transmission Solenoids and VSS
G103, G105
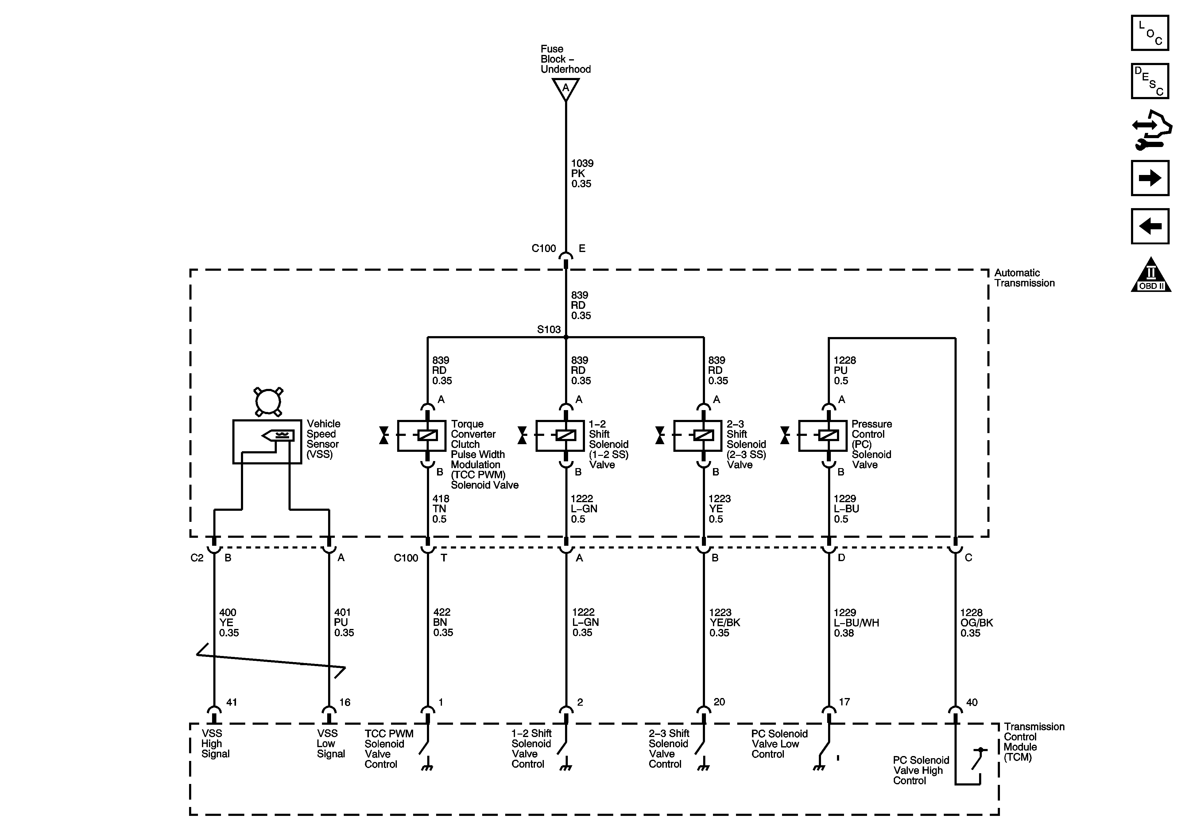
Figure
2:
Transmission Solenoids and VSS
Master Electrical Component List
Transmission General Description
Control Module References
Transmission Switches, TFT, and A/T ISS Sensors
TCM, Power, Ground, and PNP Switch
Automatic Transmission Schematic Icons
TCM, Power, Ground, and PNP Switch
Figure
3:
Transmission Switches, TFT and A/T ISS Sensors
Master Electrical Component List
Transmission General Description
Control Module References
Transmission Solenoids and VSS
Automatic Transmission Schematic Icons
Automatic Transmission Schematic Icons