GM Service Manual Online
For 1990-2009 cars only
Makes
🢒
Pontiac
🢒
2006
🢒
Pursuit
🢒
Transmission/Transaxle
🢒
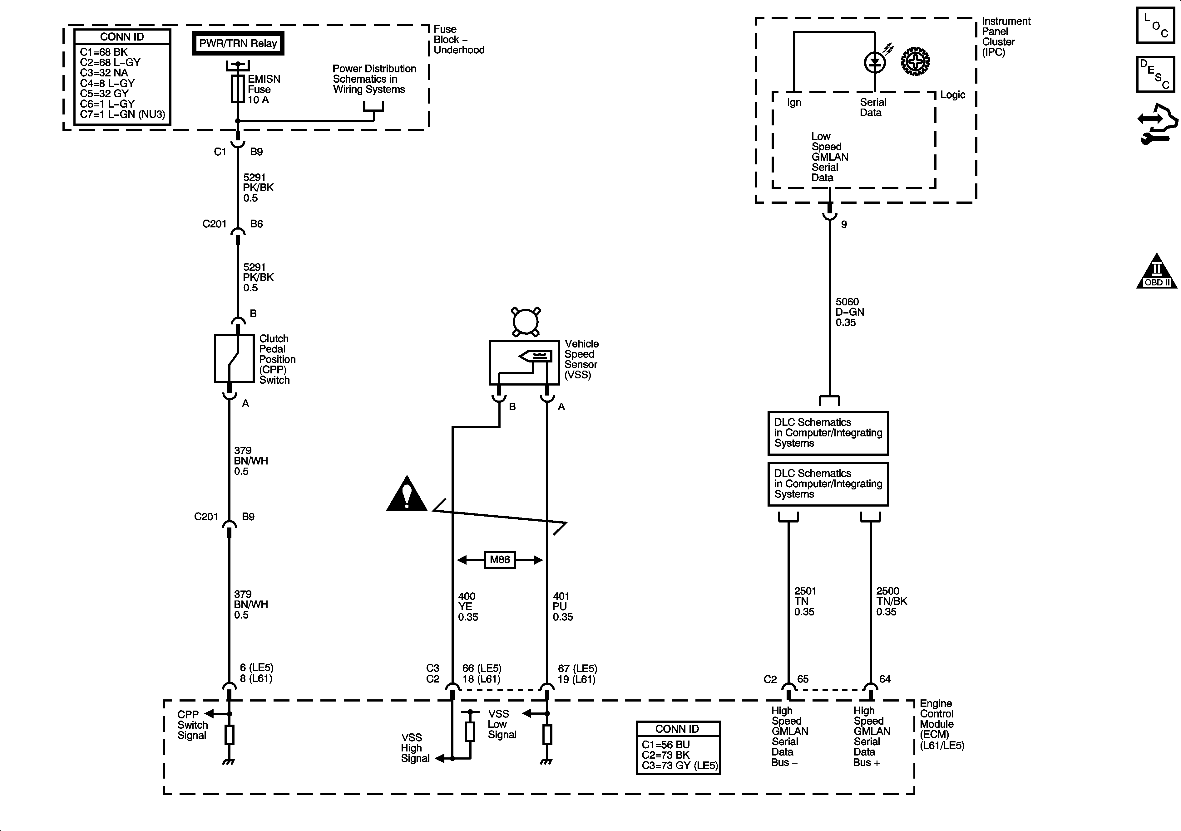
Manual Transmission - Getrag 5 Speed
🢒 Manual Transmission Schematics
Manual Transmission (L61/LE5)
Master Electrical Component List
Transmission System Description and Operation
Control Module References
Manual Transmission Schematic Icons
FUEL PUMP, POWERTRAIN Relay, FUEL PUMP, EMISSION, INJECTOR Fuses
Manual Transmission Schematic Icons
DLC Power, Ground, and Low Speed GMLAN
High Speed GMLAN