GM Service Manual Online
For 1990-2009 cars only
Makes
🢒
Pontiac
🢒
2006
🢒
Pursuit
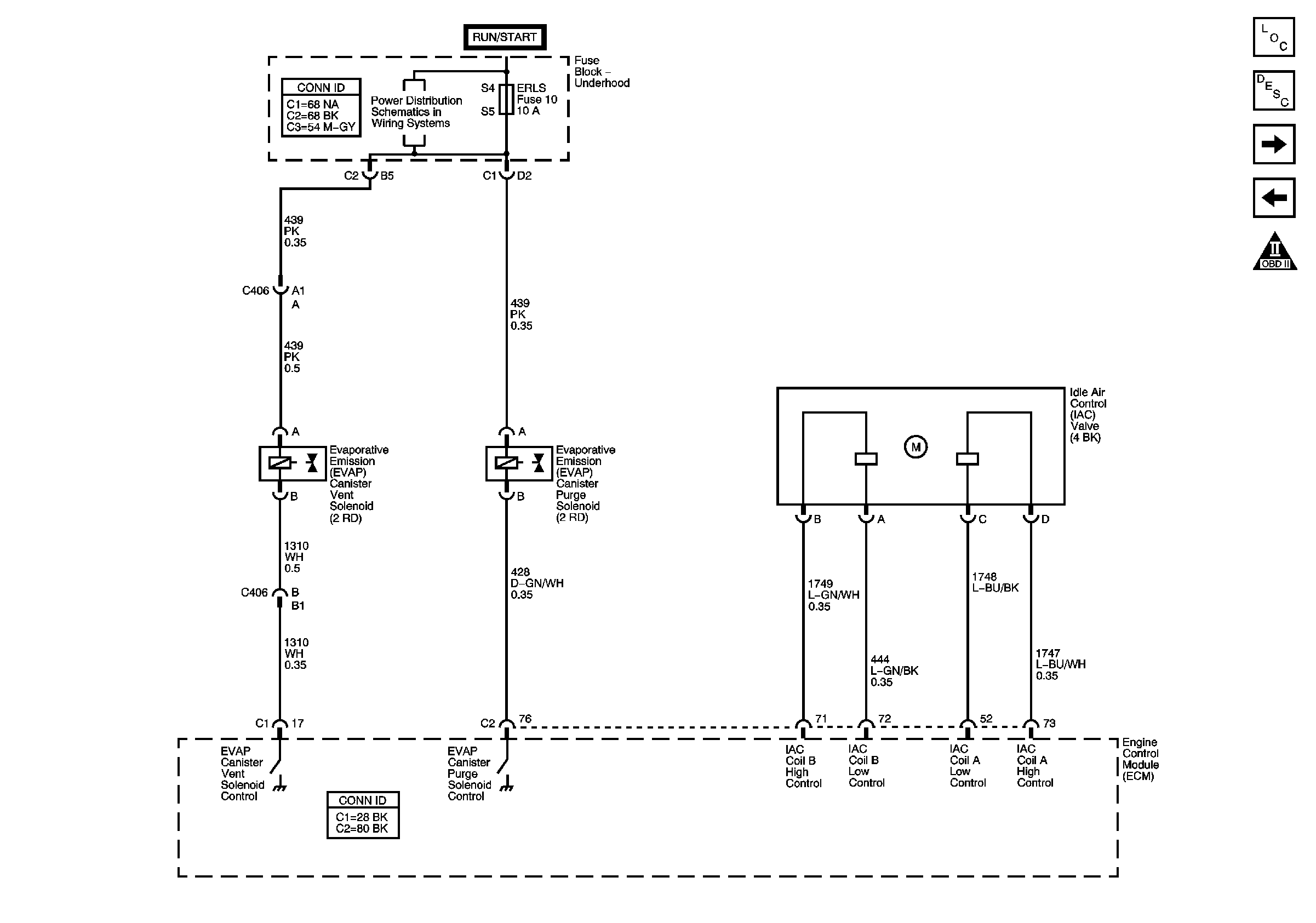
🢒 EVAP Controls and IAC
EVAP Controls and IAC
EVAP Controls and IAC
Master Electrical Component List
Engine Control Module Description
Controlled/Monitored Subsystem References
Fuel Delivery
OBD II Symbol Description Notice
Fuse Block-Underhood Fuses: ERLS, and INJECTORS, BCM Fuses: AIR BAG, CRUISE, and EPS