GM Service Manual Online
For 1990-2009 cars only
Makes
🢒
Pontiac
🢒
2006
🢒
Pursuit
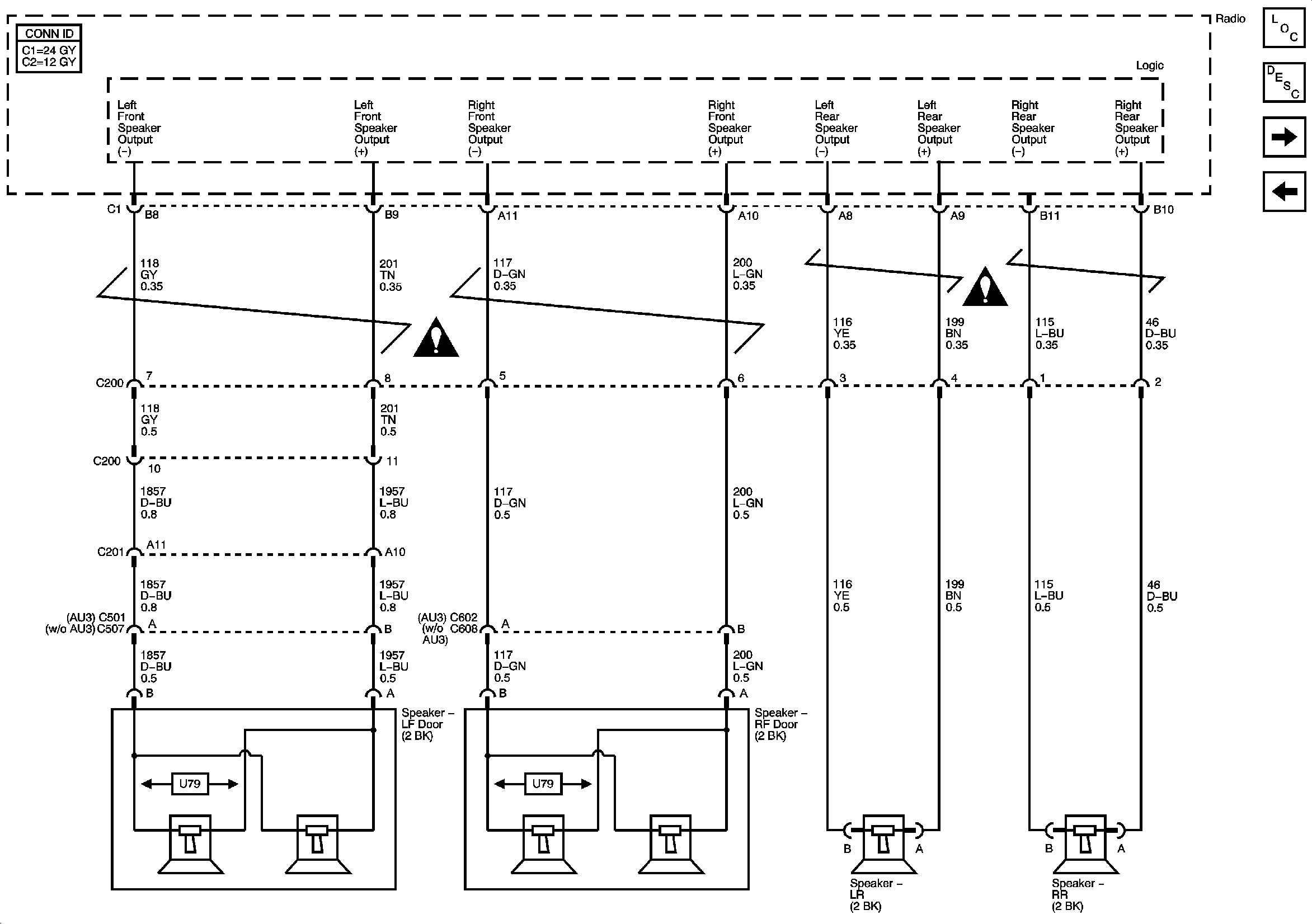
🢒 Radio to Speakers-U79 or UX7
Radio to Speakers-U79 or UX7
Radio to Speakers-U79 or UX7
Master Electrical Component List
Radio/Audio System Description and Operation
Radio to Amplifier to Speakers-UZ6
Ground, Power, Signals, and References to Cellular Communication and Lighting
Entertainment Schematic Icons
Entertainment Schematic Icons