GM Service Manual Online
For 1990-2009 cars only
Makes
🢒
Pontiac
🢒
2008
🢒
Torrent
🢒
Steering
🢒
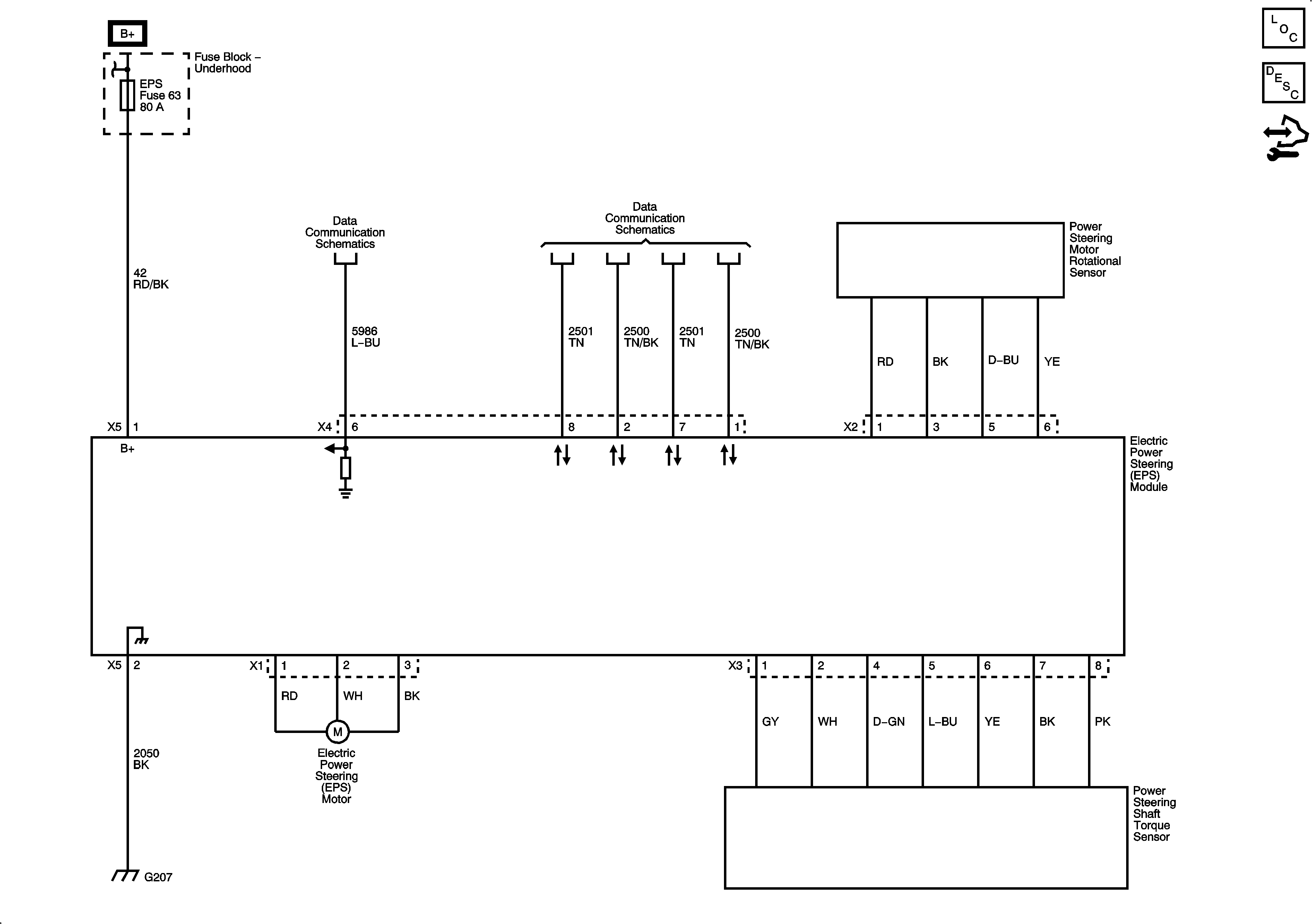
Power Steering
🢒 Power Steering Schematics
Master Electrical Component List
Power Steering System Description and Operation with EPS
Control Module References