GM Service Manual Online
For 1990-2009 cars only
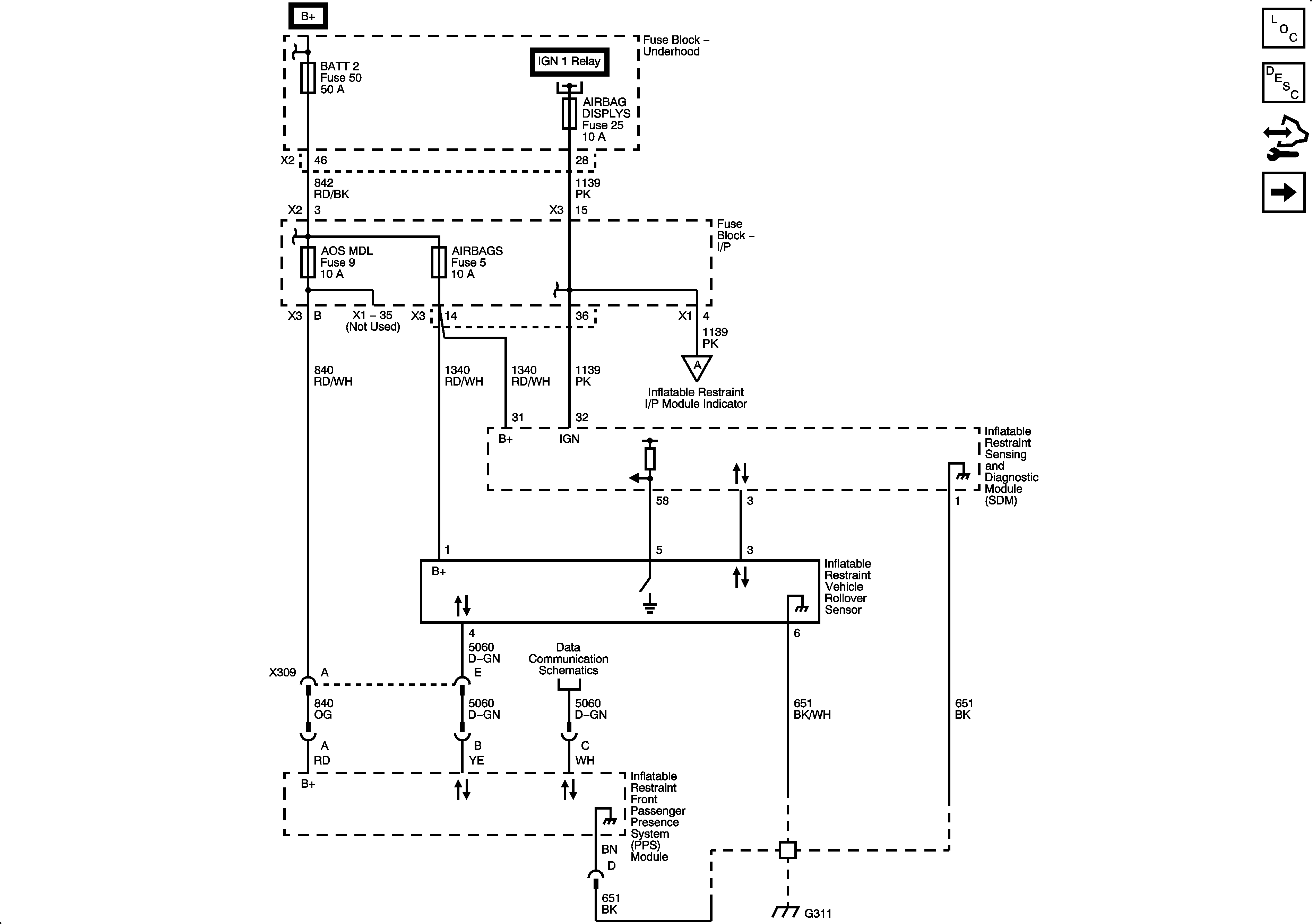
Figure 1:

Power, Ground, Roll Over Sensor, and PPS


Object Number: 2086246  Size: FS
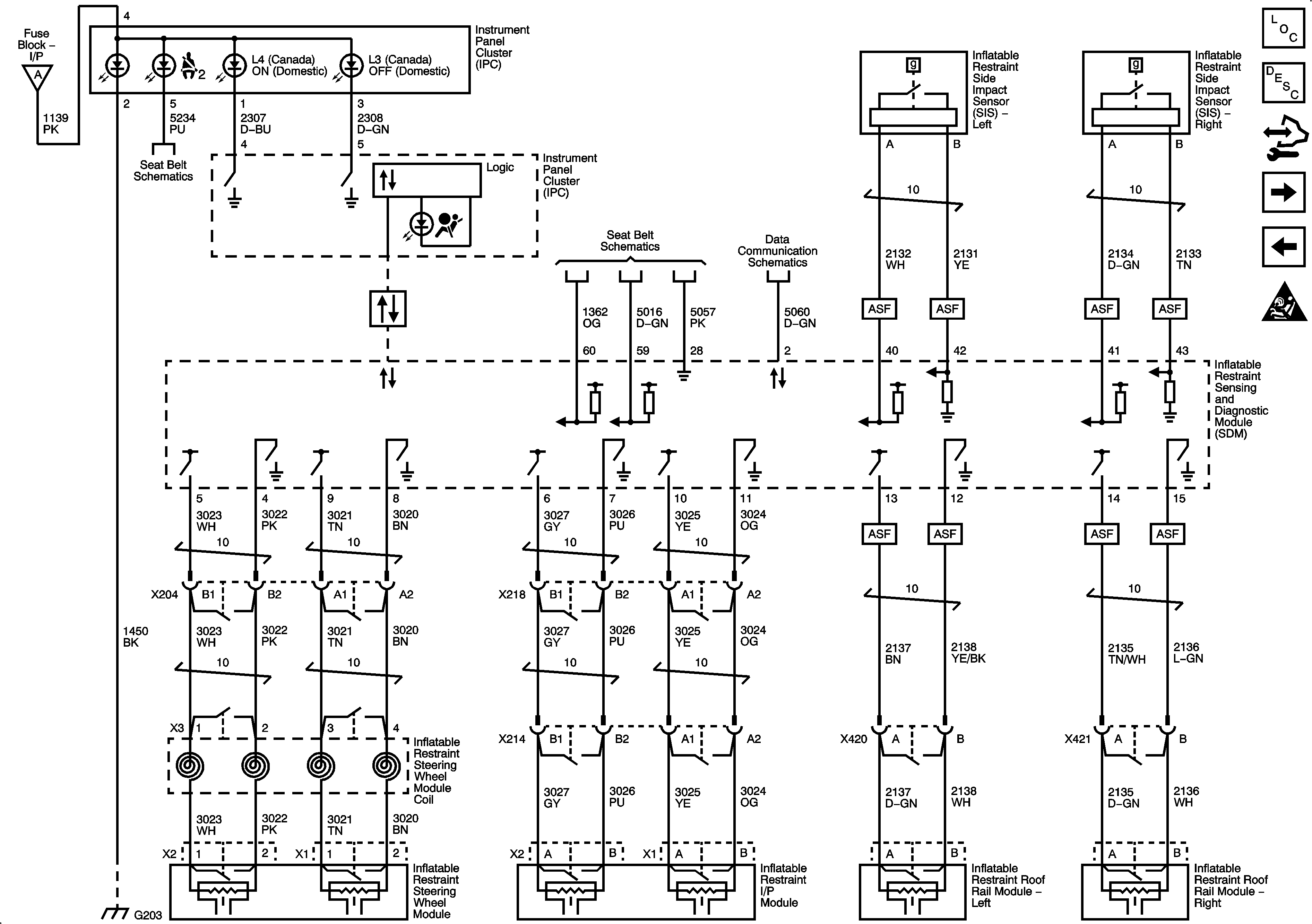
Figure 2:

Modules and Sensors


Object Number: 2086248  Size: FS
Figure 3:

Pretensioners and Front End Sensor


Object Number: 2086250  Size: FS