GM Service Manual Online
For 1990-2009 cars only
Makes
🢒
Pontiac
🢒
2009
🢒
Vibe - FWD
🢒
Transmission
🢒
Automatic Transmission - MVB 4 Speed
🢒 Automatic Transmission Controls Schematics
Figure
1:
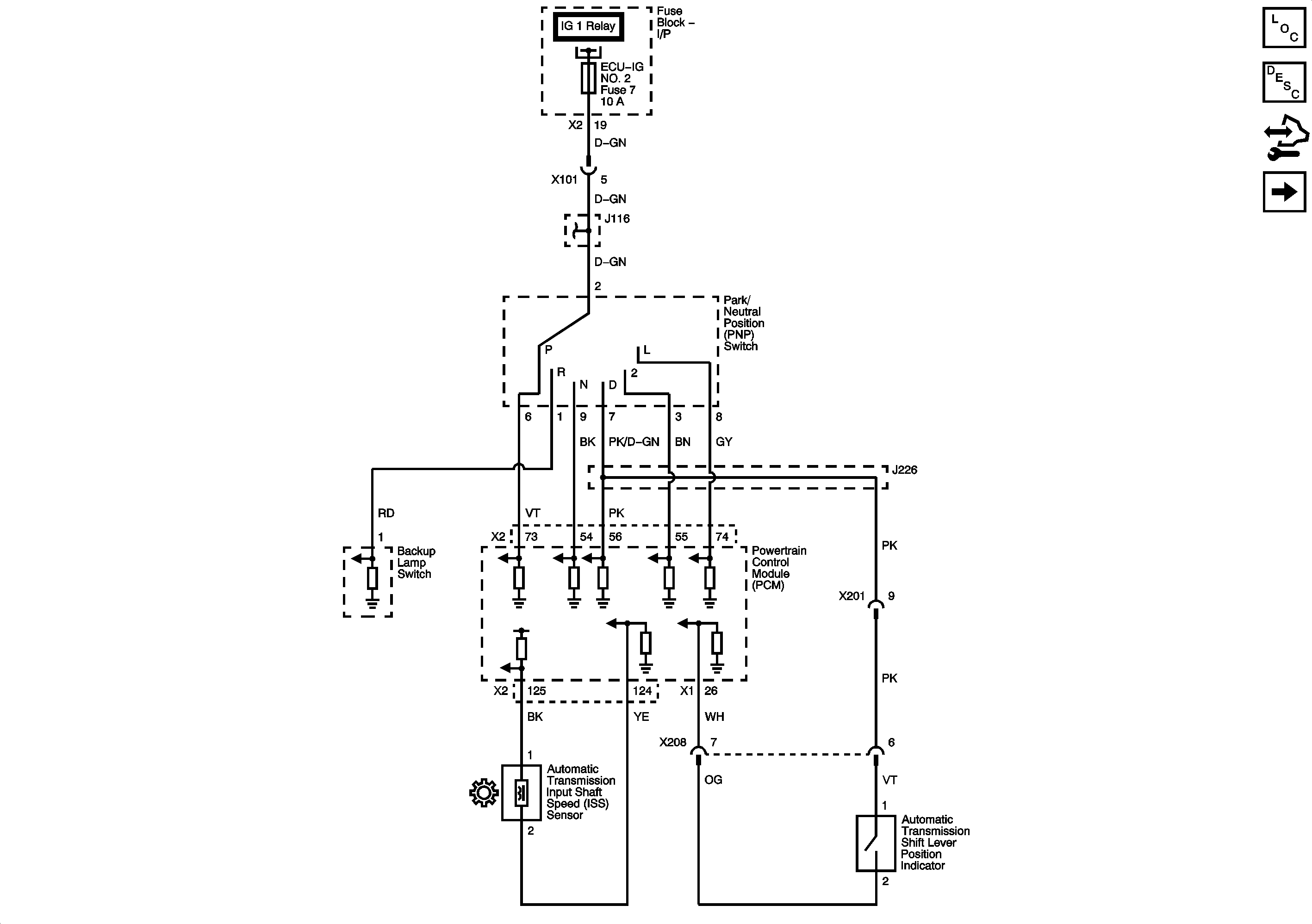
Power, PNP Switch, Shift Lever, Sensors
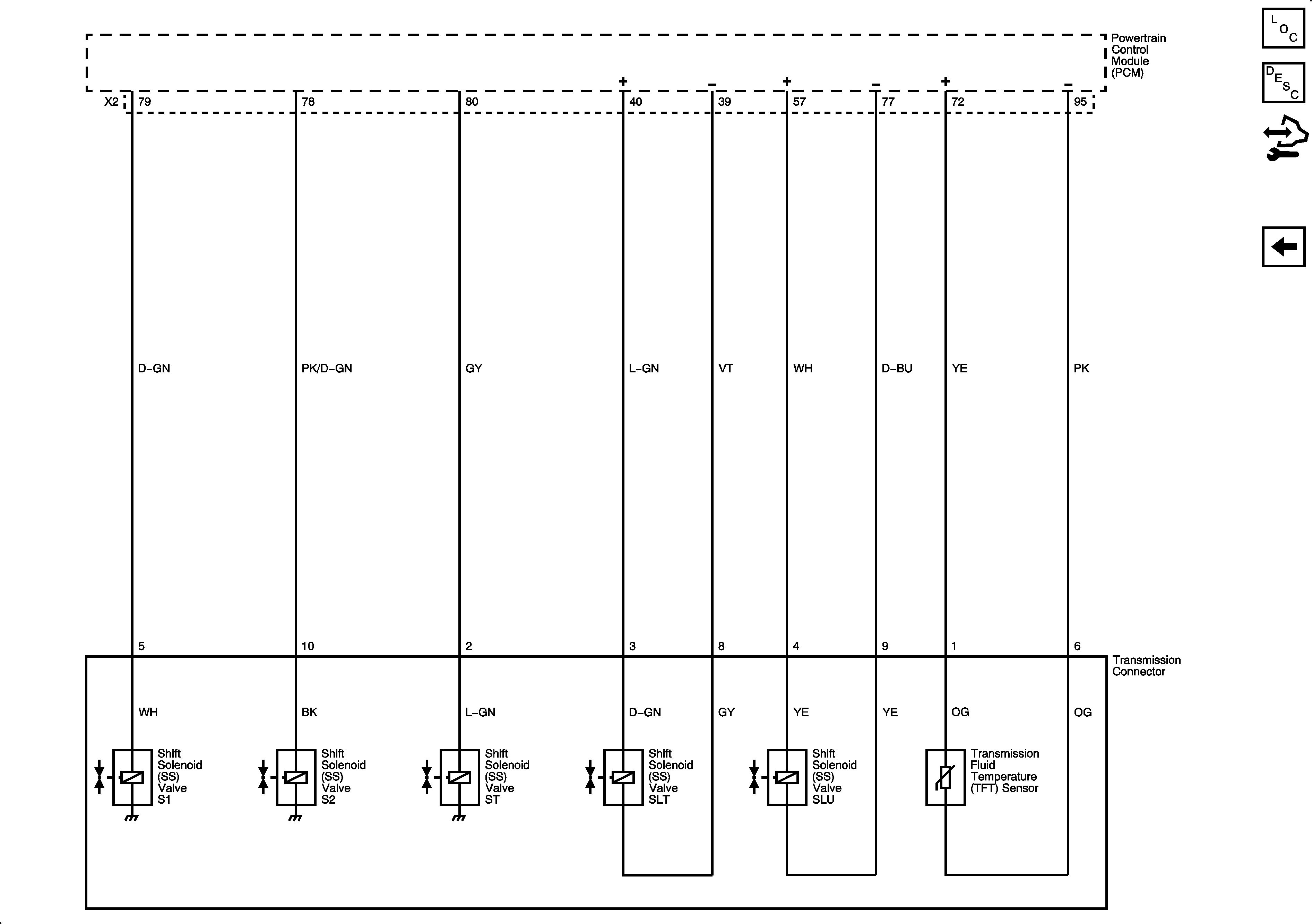
Figure
2:
Transaxle Controls