GM Service Manual Online
For 1990-2009 cars only
Makes
🢒
Saab
🢒
2005
🢒
9-7x
🢒
Body
🢒
Body Rear End
🢒 Body Rear End Schematics
Master Electrical Component List
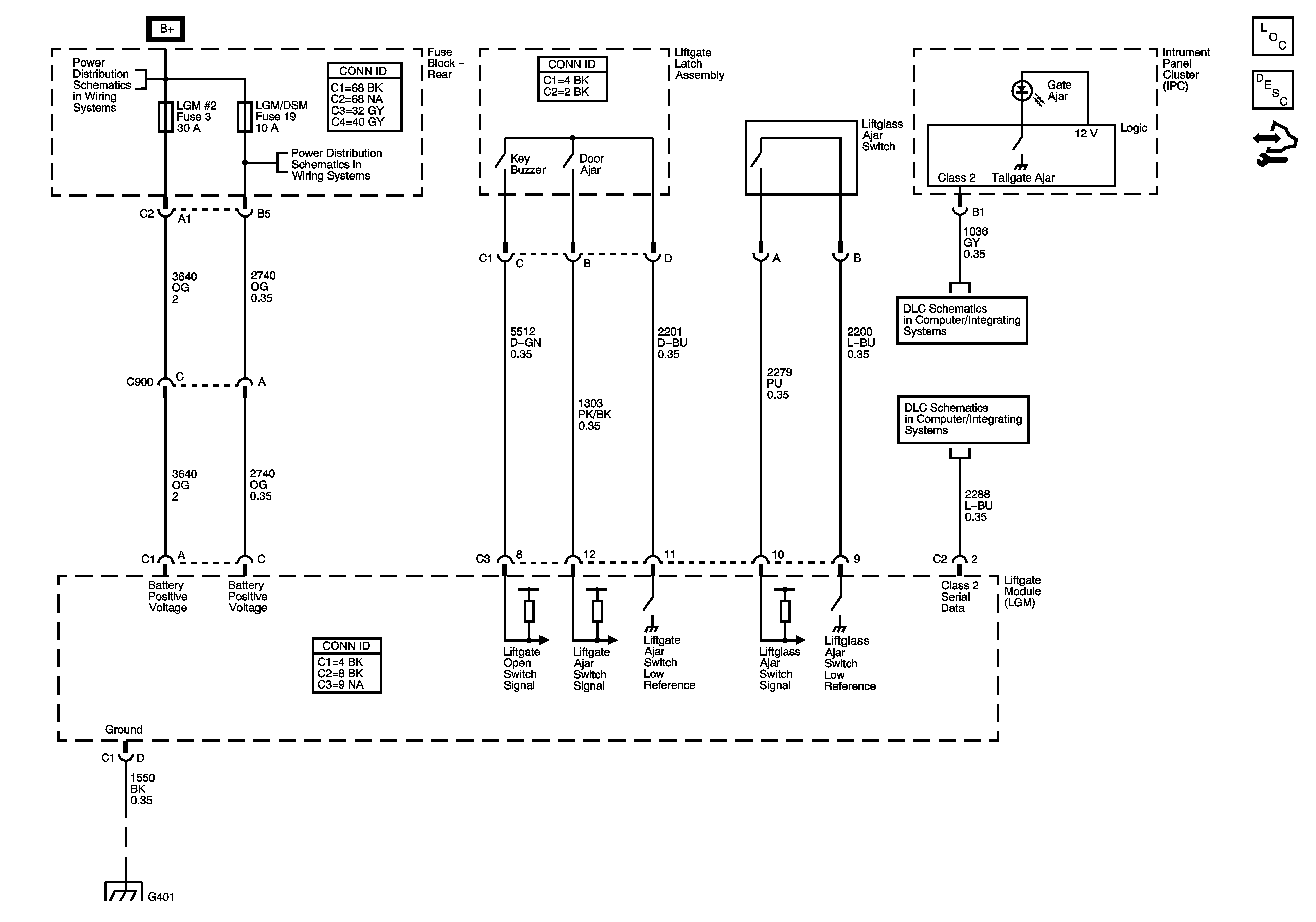
Rear Hatch/Gate Ajar Indicator Description and Operation
Control Module References
B+ Bus - Rear Fuse Block
HVAC B, LGM/DSM, OH BATT/ONSTAR, and RADIO Fuses
G401, G402, and G403
SP 205
SP306