GM Service Manual Online
For 1990-2009 cars only
Makes
🢒
Saab
🢒
2005
🢒
9-7x
🢒 Lumbar Controls
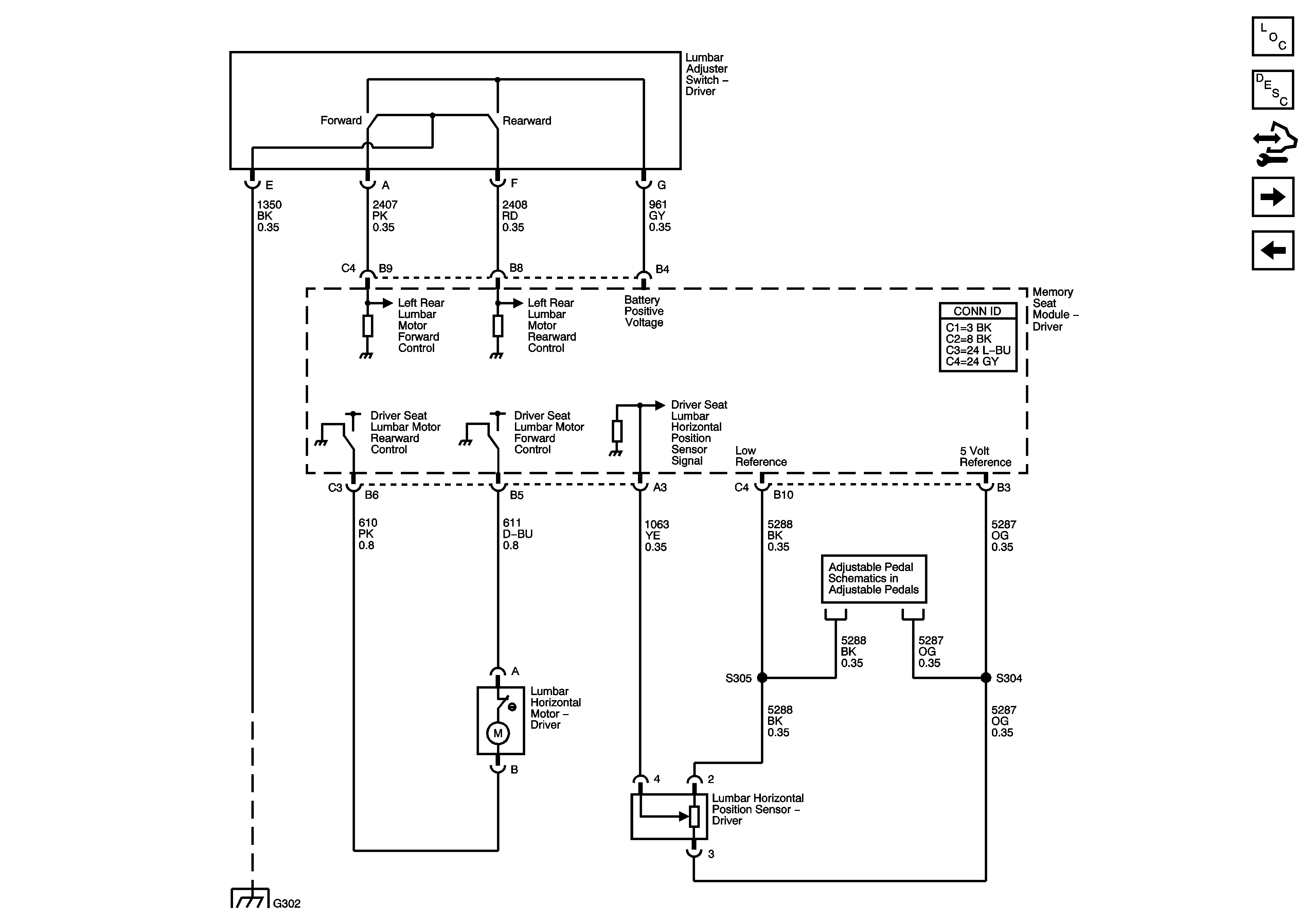
Lumbar Controls
Lumbar Controls
Master Electrical Component List
Lumbar Support Description and Operation
Control Module References
Heat Controls
Power Seat Controls - Motors and Position Sensors
G302 - 1 of 2, G303, and G304
Adjustable Pedals