GM Service Manual Online
For 1990-2009 cars only

Video


Object Number: 1533288  Size: FS
Master Electrical Component List
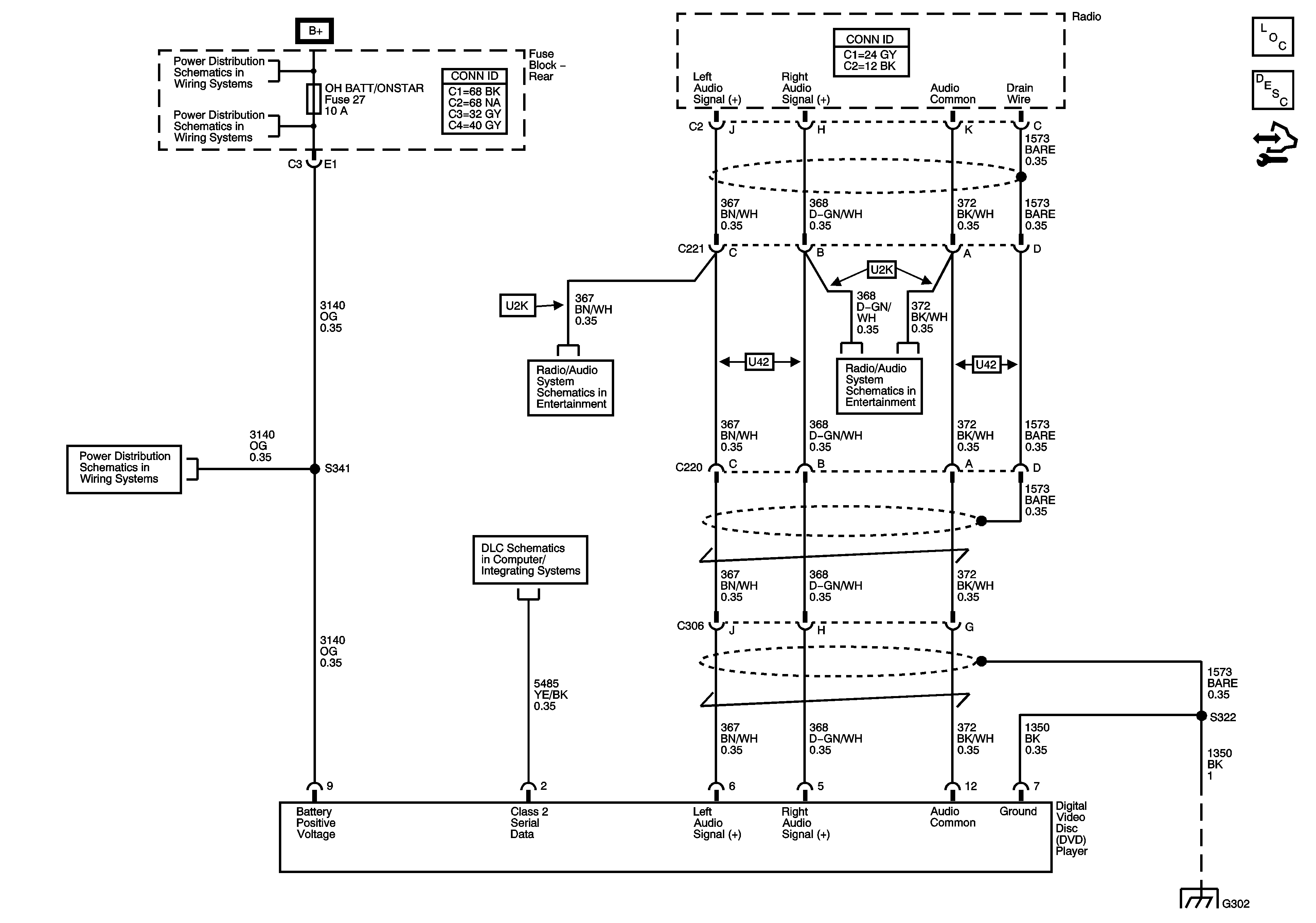
Video Entertainment System Description and Operation
Control Module References
B+ Bus - Rear Fuse Block
HVAC B, LGM/DSM, OH BATT/ONSTAR, and RADIO Fuses
HVAC B, LGM/DSM, OH BATT/ONSTAR, and RADIO Fuses
Power, Ground, Serial Data, and Digital Radio Receiver
SP306
Power, Ground, Serial Data, and Digital Radio Receiver
G302 - 2 of 2 and G306