GM Service Manual Online
For 1990-2009 cars only
Makes
🢒
Saturn
🢒
2007
🢒
AURA
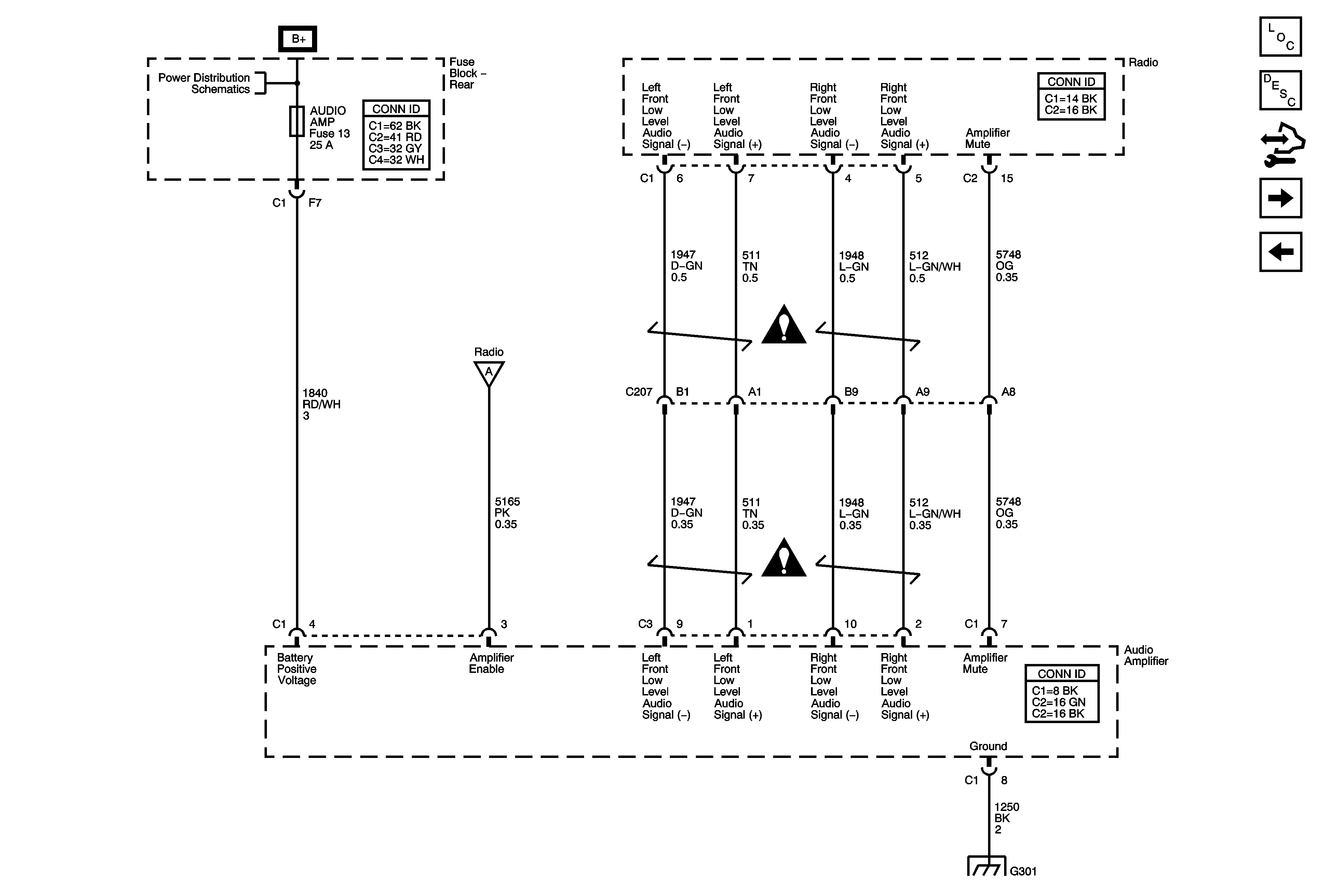
🢒 07 Z Car AURA/BAS Radio/Navigation System Schematics (Amplifier (UQ3))
07 Z Car AURA/BAS Radio/Navigation System Schematics (Amplifier (UQ3))
Amplifier (UQ3)
Master Electrical Component List
Radio/Audio System Description and Operation
Control Module References
07 Z Car AURA/BAS Radio/Navigation System Schematics (Front Speakers (UQ3))
Rear Speakers (UW5)
Underhood Fuse Block RBEC1 and Rear Fuse Block , BCK/UP Lamps, CIG/AUX, HTD MIR, HTD SEAT, RKE/XM RR DEFOG and S/ROOF Fuses
Entertainment/Communication Schematic Icons
Entertainment/Communication Schematic Icons
G301