GM Service Manual Online
For 1990-2009 cars only

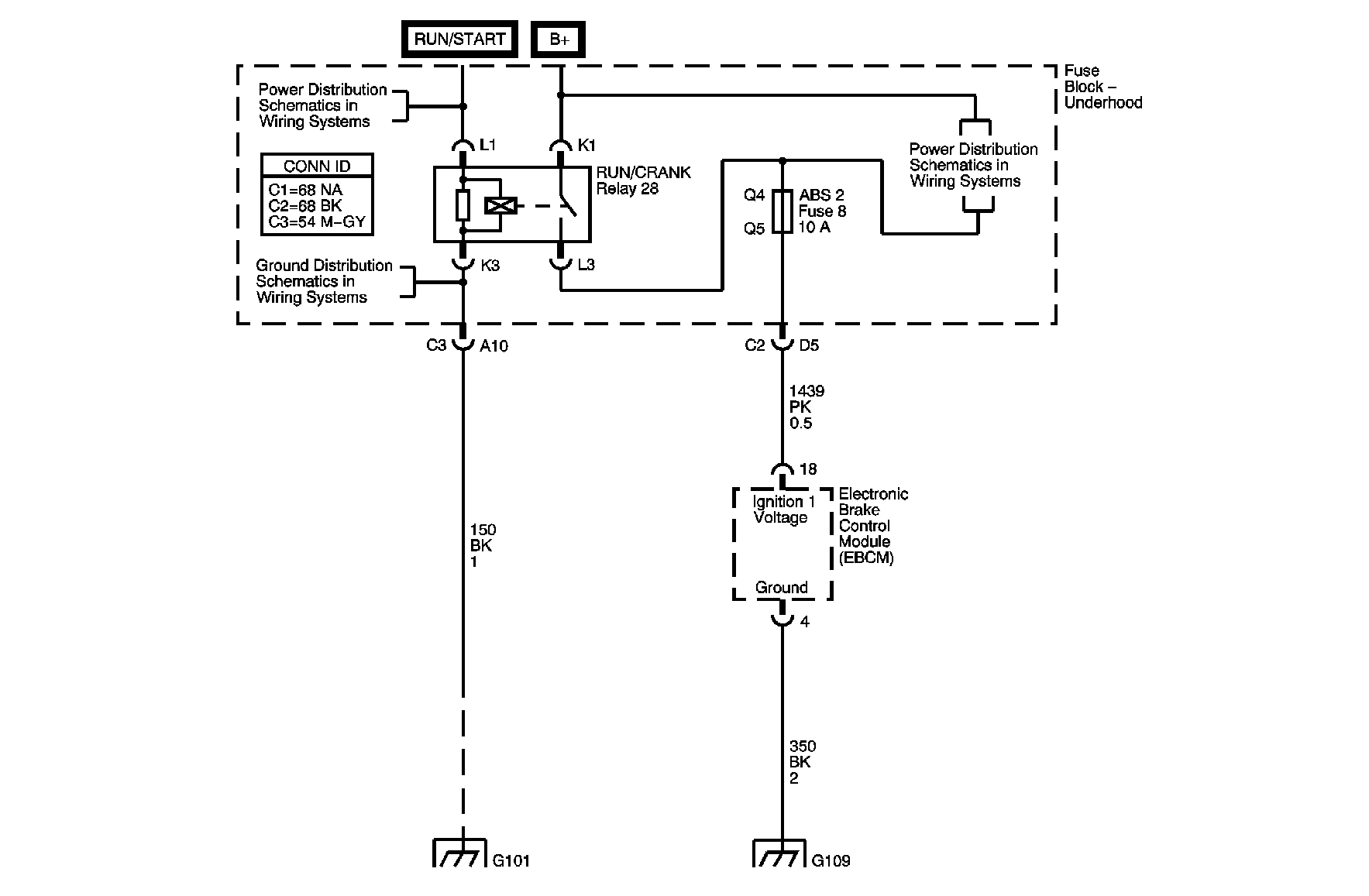
Object Number: 879944  Size: MF

Circuit Description

The electronic brake control module is required to operate within a specified range of voltage to function properly. During ABS and TCS operation, there are current requirements that will cause the voltage to drop. Because of this, voltage is monitored out of ABS/TCS control to indicate a good charging system condition, and also during ABS/TCS control when voltage may drop significantly. The EBCM also monitors for high voltage conditions which could damage the EBCM.

Conditions for Running the DTC

    • The ignition switch is ON.
    • The DTC can be set after system initialization.

Conditions for Setting the DTC

    • The EBCM operating voltage falls below 9.4 volts out of ABS/TCS control, or 9.2 volts during ABS/TCS control.
    • The EBCM operating voltage rises above 16.9 volts.
    • The low voltage or the high voltage is detected for more than 500 milliseconds with the vehicle speed above 6 km/h (3.6 mph).

Action Taken When the DTC Sets

If equipped, the following actions occur:

    • A malfunction DTC is stored.
    • The ABS indicator turns on.
    • The ABS/TCS is disabled.

Conditions for Clearing the DTC

    • The condition for the DTC is no longer present and you used the scan tool Clear DTC function.
    • The EBCM automatically clears the history DTC when a current DTC is not detected in 100 consecutive drive cycles.

Diagnostic Aids

    • It is very important that a thorough inspection of the wiring and connectors be performed. Failure to carefully and fully inspect wiring and connectors may result in misdiagnosis, causing part replacement with reappearance of the malfunction.
    • Thoroughly inspect any circuitry that may be causing the complaint for the following conditions:
       - Backed out terminals
       - Improper mating
       - Broken locks
       - Improperly formed or damaged terminals
       - Poor terminal-to-wiring connections
       - Physical damage to the wiring harness
    • The following conditions may cause an intermittent malfunction:
       - A poor connection
       - Rubbed-through wire insulation
       - A broken wire inside the insulation
    • If an intermittent malfunction exists, refer to Testing for Intermittent Conditions and Poor Connections in Wiring Systems for further diagnosis.

Test Description

The numbers below refer to the step numbers on the diagnostic table.

  1. This step checks if the voltage is above the maximum of the range.

  2. Step 4 checks if the voltage is below the minimum of the range.

  3. This step checks for the integrity of the ground circuit.

Step

Action

Value(s)

Yes

No

Connector End View Reference: Antilock Brake System Connector End Views

1

Did you perform the Diagnostic System Check?

--

Go to Step 2

Go to Diagnostic System Check - ABS

2

  1. Turn all the accessories off.
  2. Install a scan tool.
  3. Start the engine.
  4. Use the scan tool to monitor the ignition battery voltage parameter in the EBCM Data List, while running the engine at approximately 2000 RPM.

Is the monitored battery voltage within the specified range?

9.4-16.9 V

Go to Step 4

Go to Step 3

3

Use a DMM to measure the voltage between the battery positive terminal and ground.

Is the voltage within the specified range?

0-16.9 V

Go to Step 5

Go to Symptoms - Engine Electrical in Engine Electrical

4

Continue to monitor the battery voltage with the scan tool while running the engine at approximately 2000 RPM.

Is the monitored battery voltage within the specified range?

0-9.4 V

Go to Step 6

Go to Step 5

5

  1. Turn the ignition switch to the OFF position.
  2. Disconnect the scan tool if still connected.
  3. Test drive the vehicle above 6 km/h (3.5 mph).

Did DTC C0896 reset?

--

Go to Step 10

Go to Diagnostic System Check - ABS

6

  1. Turn the ignition switch to the OFF position.
  2. Disconnect the EBCM connector.
  3. Use a DMM to measure the resistance between the connector terminal 4 and a good ground.

Is the resistance within the specified range?

0-5 ohms

Go to Step 8

Go to Step 7

7

Repair open or high resistance in the ground circuit. Refer to Circuit Testing and Wiring Repairs in Wiring Systems.

Is the repair complete?

--

Go to Step 11

--

8

  1. Turn the ignition switch to the RUN position.
  2. Use a DMM to measure the voltage between terminal 18 and 4.

Is the voltage within the specified range?

Above 9.4 V

Go to Step 9

Go to Symptoms - Engine Electrical in Engine Electrical

9

  1. Turn the ignition switch to the OFF position.
  2. Reconnect the EBCM connector.
  3. Disconnect the scan tool if the scan tool is still connected.
  4. Test drive the vehicle above 6 km/h (3.5 mph).

Did DTC C0896 reset?

--

Go to Step 10

Go to Step 11

10

Replace the EBCM. Refer to Electronic Brake Control Module Replacement .

Is the repair complete?

--

Go to Step 11

--

11

  1. Use the scan tool in order to clear the DTCs.
  2. Operate the vehicle within the Conditions for Running the DTC as specified in the supporting text.

Does the DTC reset?

--

Go to Step 2

System OK