GM Service Manual Online
For 1990-2009 cars only
Makes
🢒
Saturn
🢒
2004
🢒
ION
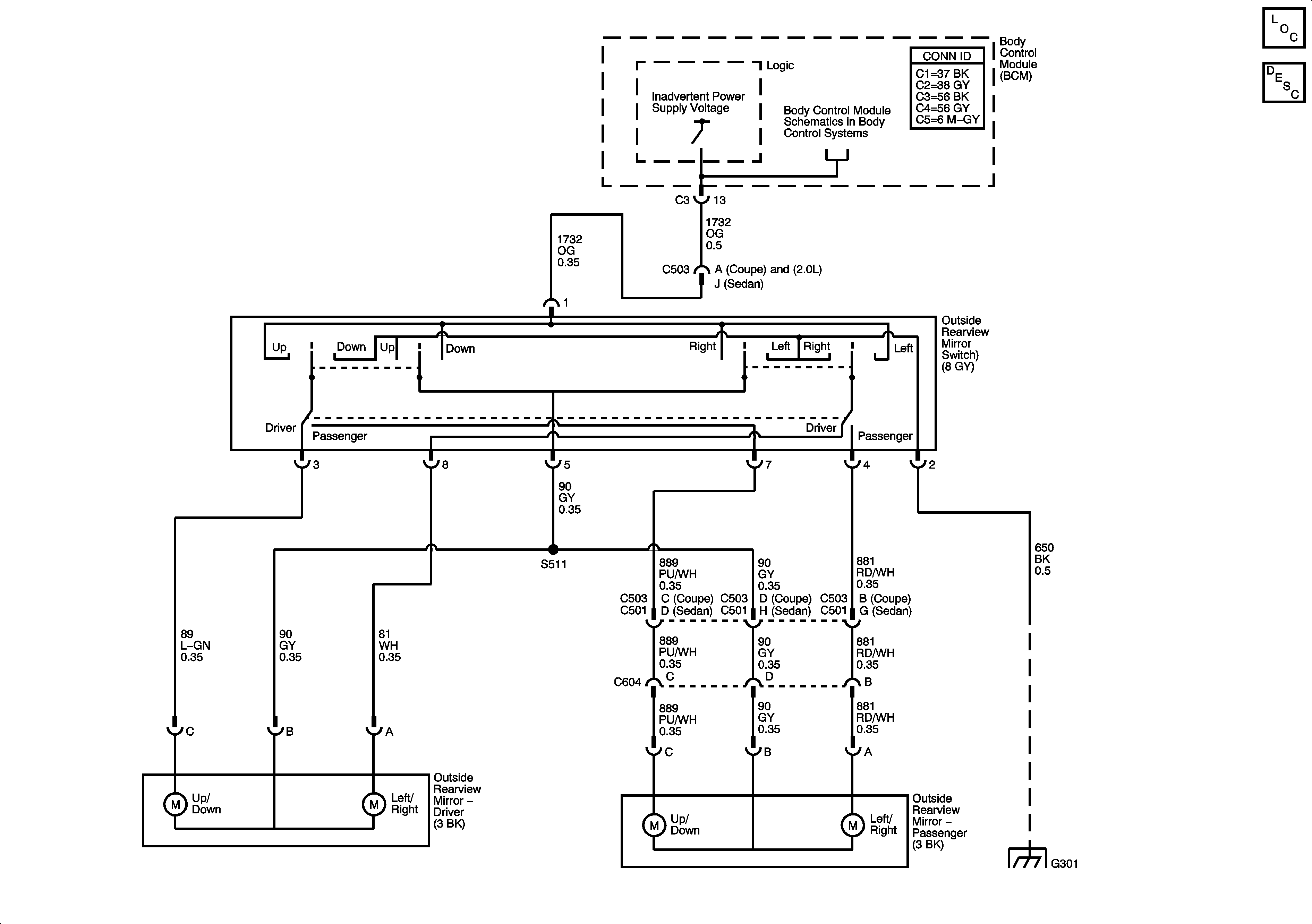
🢒 Outside Mirrors Schematics
Outside Mirrors Schematics
Master Electrical Component List
Outside Mirror Description and Operation
Subsystem References to Body Rear End, Doors, Horns, and Lighting
G301