GM Service Manual Online
For 1990-2009 cars only

DTC P0724 2.0L


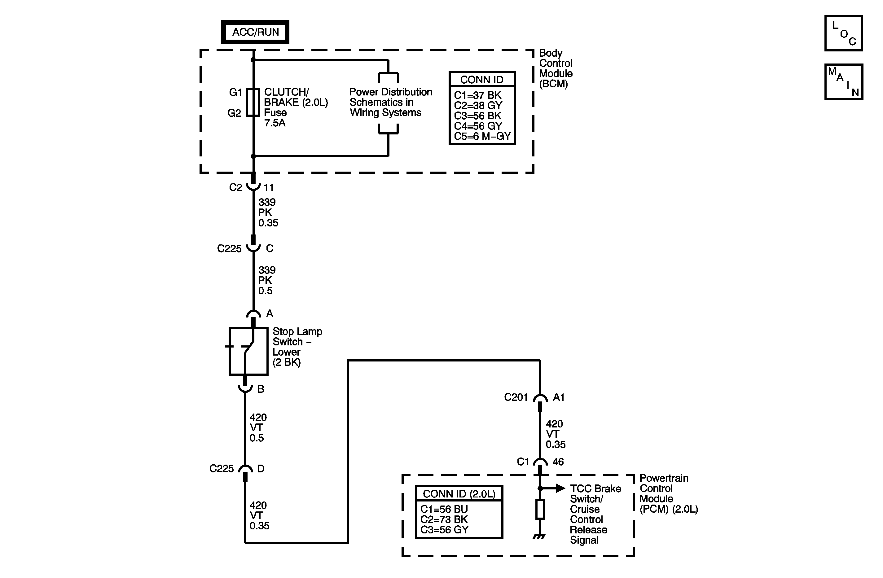
Object Number: 1409665  Size: MF

Circuit Description

The cruise release switch is a normally closed switch. The stop lamp switch signal circuit is a normally open switch. When the brake pedal is released, the powertrain control module (PCM) detects a high voltage signal on the torque converter clutch (TCC) brake switch/cruise control release signal circuit and a low signal voltage signal on the stop lamp switch signal circuit.

Conditions for Running the DTC

    • The engine is ON.
    • The traction control system or the antilock brake system are not active and have not failed.
    • The vehicle has accelerated from 0 km/h (0 mph) to 60 km/h (37 mph) 3 times in 1 ignition cycle.
    • This diagnostic runs continuously once the conditions for running the DTC has been achieved.

Conditions for Setting the DTC

When the brake pedal is pressed, the PCM detects a high voltage signal on the stop lamp switch signal circuit and a high voltage signal on the TCC brake switch/cruise control release signal circuit.

Action Taken When the DTC Sets

    • The PCM stores the DTC information into memory when the diagnostic runs and fails.
    • The malfunction indicator lamp (MIL) will not illuminate.
    • The PCM records the operating conditions at the time the diagnostic fails. The PCM stores this information in the Failure Records.
    • The cruise control system is disabled.

Conditions for Clearing the DTC

    • A last test failed, or current DTC, clears when the diagnostic runs and does not fail.
    • A history DTC will clear after 40 consecutive warm-up cycles, if no failures are reported by this or any other non-emission related diagnostic.
    • Use a scan tool in order to clear the DTC.

Diagnostic Aids

In order to avoid a misdiagnosis, inspect for proper adjustment of the cruise control release switch. Refer to Cruise Release Switch Adjustment .

For an intermittent condition, refer to Testing for Intermittent Conditions and Poor Connections in Wiring Systems.

Step

Action

Yes

No

Schematic Reference: Cruise Control Schematics

Connector End View Reference: Lighting Systems Connector End Views in Lighting Systems

1

Did you perform the Diagnostic System Check - Cruise Control?

Go to Step 2

Go to Diagnostic System Check - Cruise Control

2

  1. Turn the ignition OFF.
  2. Disconnect the cruise release switch.
  3. Turn the ignition ON, with the engine OFF.
  4. Connect a test lamp between the torque converter clutch (TCC) brake switch/cruise control release signal circuit and a good ground.

Does the test lamp illuminate?

Go to Step 3

Go to Step 4

3

Test the TCC brake switch/cruise control release signal circuit for a short to voltage. Refer to Circuit Testing and to Wiring Repairs in Wiring Systems.

Did you find and correct the condition?

Go to Step 8

Go to Step 5

4

Inspect for poor connections at the harness connector of the cruise release switch. Refer to Testing for Intermittent Conditions and Poor Connections and to Connector Repairs in Wiring Systems.

Did you find and correct the condition?

Go to Step 8

Go to Step 6

5

Inspect for poor connections at the harness connector of the powertrain control module (PCM). Refer to Testing for Intermittent Conditions and Poor Connections and to Connector Repairs in Wiring Systems.

Did you find and correct the condition?

Go to Step 8

Go to Step 7

6

Replace the cruise release switch. Refer to Cruise Control Release Switch Replacement .

Did you complete the repair?

Go to Step 8

--

7

Important: Program the replacement PCM.

Replace the PCM. Refer to Powertrain Control Module Replacement in Engine Controls - 2.0L (LSJ).

Did you complete the replacement?

Go to Step 8

--

8

  1. Use a scan tool in order to clear the DTCs.
  2. Operate the vehicle within the Conditions for Running the DTC.

Does the DTC reset?

Go to Step 2

System OK