GM Service Manual Online
For 1990-2009 cars only

Object Number: 891602  Size: MF

Circuit Description

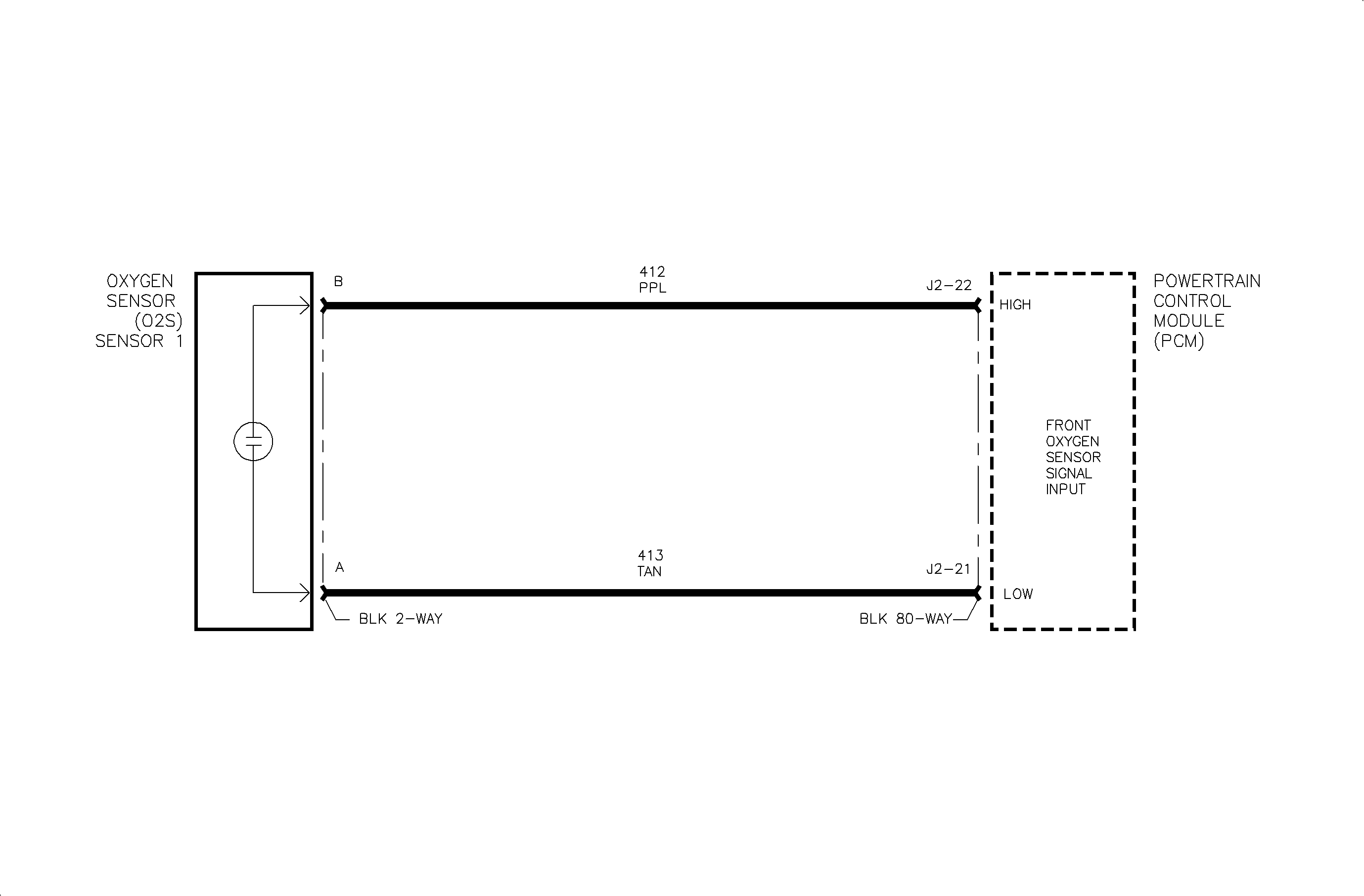
The oxygen sensor 1 (O2S-1) is an electrical source that responds to oxygen content in the exhaust manifold. When the sensor reaches approximately 316°C (600°F), it produces a voltage based on the difference in oxygen between the atmosphere and the exhaust gas. The PCM sends a bias voltage (399-499 mV) on the signal line, which is pulled up through high resistance. When the O2S-1 is cold, it produces no voltage and has extremely high internal resistance. The internal resistance of the sensor is much greater than the resistance of the bias pull-up resistor. However, when the sensor heats up, it produces voltage that overrides the bias voltage. this voltage is read by the PCM to determine a rich/lean O2S-1 signal used to adjust the injector pulse width. Under normal conditions, low sensor voltage means high oxygen content/lean air-fuel mixture and vice versa. Normal sensor readings will fluctuate between 10 mV and 1065 mV. DTC P0133 sets when the O2S-1 signal rich to lean or lean to rich average response time is too slow.

Conditions for Setting the DTC

DTC P0133 will set if the average response time of the LEAN to RICH switches is greater than 730 ms (auto), 625 ms (manual) or the average response time of the RICH to LEAN switches is greater than 1200 ms (auto), or 975 ms (manual):

OR

Sum of the LEAN to RICH to LEAN average response times is greater than 1200 ms (auto), 975 ms (manual) when:

    • Condition exists for longer than 30 seconds
    • Engine run time is greater than 3 minutes and 20 seconds
    • Engine speed is between 2350 and 3000 RPM (manual) / 1800 and 2300 RPM (auto).
    • ECT is greater than 75°C (167°F)
    • TP angle is between 22 and 40% (manual), 8 and 15% (auto)
    • Loop status is closed
    • EVAP purge solenoid commanded duty cycle is greater than 80%
    • Fuel level is greater than 10%
    • No CKP, ECT, EVAP, fuel injector, fuel tank pressure, fuel trim, IAT, idle speed, MAP, misfire, PCM internal fault, or TP sensor DTCs have been set.

DTC P0133 diagnostic runs once per ignition cycle once the above conditions have been met.

P0133 is a (type B) DTC

Diagnostic Aids

Possible causes of DTC P0133:

    • An intermittent connection or corrosion in the O2S-1 harness connector can set this DTC. Use the scan tool to monitor O2S-1 voltage with the engine running at normal operating temperature while wiggling the signal and ground wire. Make sure the sensor is tight.
    • The most probable cause for DTC P0133 is contamination. Check for obvious contamination (oil, fuel or engine coolant) by removing the sensor. Identify and correct the cause of the contamination if contaminated. Replace the O2S-1.