GM Service Manual Online
For 1990-2009 cars only

DTC P1640 PCM Output Circuit

The PCM contains an output driver module (ODM) which controls 7 circuits: A/C relay, air pump relay, EVAP purge solenoid, EVAP vent solenoid, fan control 1, fan control 2, and TCC solenoid. The ODM controls each of these circuits independently by controlling the circuit ground. The ODM monitors the voltage level at each of the 6 circuits into the PCM when the device is being commanded ON or OFF. When the device is commanded OFF, the circuit is not grounded, the voltage level at the PCM should be high (ignition voltage). When the device is commanded ON, the circuit is grounded, the voltage level at the PCM should be low. Each of the 7 drivers in the ODM contains a feedback circuit used to determine if a particular circuit failed, which can be read on the scan tool. DTC P1640 sets when any one of the 7 feedback voltages is low when that device is turned OFF or when any one of the 7 feedback voltages is high when that device is turned ON when the engine is running.

Conditions for Setting the DTC

DTC P1640 will set if A/C relay, air pump relay, EVAP purge solenoid, EVAP vent solenoid, fan control 1, fan control 2, or TCC solenoid feedback voltage is less than 4 volts when that device is commanded OFF when:

    • The condition exists for longer than 6 seconds.
    • The engine is running.

A/C relay, air pump relay, EVAP purge solenoid, EVAP vent solenoid, fan control 1, fan control 2, or TCC solenoid feedback voltage is greater than 3.5 volts when that device is commanded ON when:

    • The condition exists for longer than 6 seconds.
    • The engine is running.

DTC P1640 diagnostic runs continuously with the engine running.

DTC P1640 is a type C DTC.

Diagnostic Aids

Important: If DTC P0480, P0481, or P1860 is also set, diagnose that DTC first. DTC P1640 will also set if a fan control 1, fan control 2, or TCC solenoid fault exists.

To locate an intermittent problem, use the scan tool to command each of the 7 solenoids tied to the ODM circuit ON and OFF independently while monitoring:

A/C RELAY CKT OPEN SHORT TO GND

A/C RELAY CKT SHORT TO VOLTS

OR

AIR PUMP REL. CKT OPEN SHORT TO GND

AIR PUMP REL. CKT SHORT TO VOLTS

OR

EVAP PURGE CKT OPEN SHORT TO GND

EVAP PURGE CKT SHORT TO VOLTS

OR

EVAP VENT CKT OPEN SHORT TO GND

EVAP VENT CKT SHORT TO VOLTS

OR

FC 1 RELAY CKT OPEN SHORT TO GND

FC 1 RELAY CKT SHORT TO VOLTS

OR

FC 2 RELAY CKT OPEN SHORT TO GND

FC 2 RELAY CKT SHORT TO VOLTS

OR

TCC DUTY CYCLE OPEN SHORT TO GND

TCC DUTY CYCLE SHORT TO VOLTS

If IGN 3 fuse is open, A/C RELAY CKT OPEN SHORT TO GND, EVAP VENT CKT OPEN SHORT TO GND, and EVAP PURGE CKT OPEN SHORT TO GND parameters on the scan tool will read YES.


Object Number: 890346  Size: FP

DTC P1640 A/C Relay Low Voltage


Object Number: 889681  Size: MF

The PCM contains an output driver module (ODM) which controls the A/C relay coil circuit ground. The ODM monitors the feedback voltage level on circuit 459 at the PCM when the device is being commanded ON or OFF. When the device is commanded OFF (circuit not grounded), the voltage level at the PCM should be high (ignition voltage). When the device is commanded ON (circuit grounded), the voltage level at the PCM should be low. Chart 1 diagnoses a low circuit voltage fault in which the PCM detected lower than normal feedback voltage when the A/C relay was commanded OFF.

Conditions for Setting the DTC

DTC P1640 will set if A/C relay feedback voltage is less than 4 volts when A/C relay is commanded OFF when:

    • The condition exists for longer than 6 seconds.
    • The engine is running.

DTC P1640 diagnostic runs continuously with the engine running.

DTC P1640 is a type C DTC.

Diagnostic Aids

To locate an intermittent problem, use the scan to monitor A/C RELAY CKT OPEN SHORT TO GND with the ignition ON and the engine OFF. When a fault, open or short to ground, exists, the scan tool will display YES.

A/C relay coil resistance is 70-115 ohms.


Object Number: 888536  Size: FP

DTC P1640 A/C Relay High Voltage


Object Number: 889681  Size: MF

The PCM contains an output driver module (ODM) which controls the A/C relay coil circuit ground. The ODM monitors the feedback voltage level on circuit 459 at the PCM when the device is being commanded ON or OFF. When the device is commanded OFF (circuit not grounded), the voltage level at the PCM should be high (ignition voltage). When the device is commanded ON (circuit grounded), the voltage level at the PCM should be low. Chart 2 diagnoses a high circuit voltage fault in which the PCM detected higher than normal feedback voltage when the A/C relay was commanded ON.

Conditions for Setting the DTC

DTC P1640 will set if A/C relay feedback voltage is greater than 3.5 volts when the A/C relay is commanded ON when:

    • The condition exists for longer than 6 seconds.
    • The engine is running.

DTC P1640 diagnostic runs continuously with the engine running.

DTC P1640 is a type C DTC.

Diagnostic Aids

To locate an intermittent problem, use the scan to command A/C RELAY ON while monitoring A/C RELAY CKT SHORT TO VOLTS. When a fault, short to voltage or shorted solenoid, exists, the scan tool will display YES.

A/C relay coil resistance is 70-115 ohms.


Object Number: 888538  Size: FP

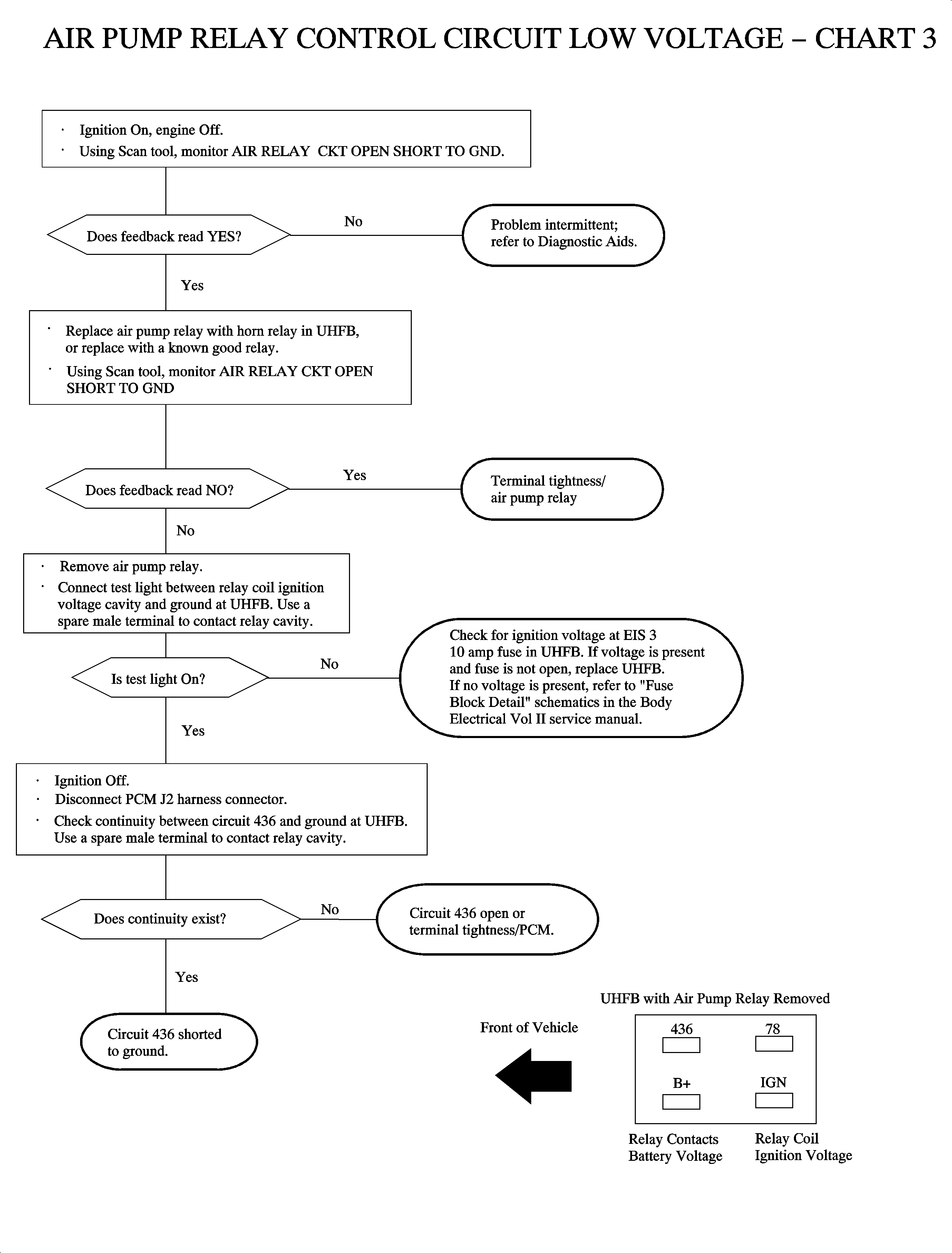
DTC P1640 Air Pump Relay Low Voltage


Object Number: 890267  Size: MF

The PCM contains an output driver module (ODM) which controls the air pump relay coil circuit ground. The ODM monitors the feedback voltage level on circuit 436 at the PCM when the device is being commanded ON or OFF. When the device is commanded OFF (circuit not grounded), the voltage level at the PCM should be high (ignition voltage). When the device is commanded ON (circuit grounded), the voltage level at the PCM should be low. Chart 3 diagnoses a low circuit voltage fault in which the PCM detected lower than normal feedback voltage when the air pump relay was commanded OFF.

Conditions for Setting the DTC

DTC P1640 will set if air pump relay feedback voltage is less than 4 volts when the air pump relay is commanded OFF when:

    • The condition exists for longer than 6 seconds.
    • The engine is running.

DTC P1640 diagnostic runs continuously with the engine running.

DTC P1640 is a type C DTC.

Diagnostic Aids

To locate an intermittent problem, use the scan tool to monitor AIR PUMP REL. CKT OPEN SHORT TO GND with the ignition ON and the engine OFF. When a fault, open or short to ground, exists, the scan tool will display YES.

Air pump relay coil resistance is 70-115 ohms.


Object Number: 890349  Size: FP

DTC P1640 Air Pump Relay High Voltage


Object Number: 890267  Size: MF

The PCM contains an output driver module (ODM) which controls the air pump relay coil circuit ground. The ODM monitors the feedback voltage level on circuit 436 at the PCM when the device is being commanded ON or OFF. When the device is commanded OFF (circuit not grounded), the voltage level at the PCM should be high (ignition voltage). When the device is commanded ON (circuit grounded), the voltage level at the PCM should be low. Chart 4 diagnoses a high circuit voltage fault in which the PCM detected higher than normal feedback voltage when the air pump relay was commanded ON.

Conditions for Setting the DTC

DTC P1640 will set if air pump relay feedback voltage is greater than 3.5 volts when the air pump relay is commanded ON when:

    • The condition exists for longer than 6 seconds.
    • The engine is running.

DTC P1640 diagnostic runs continuously with the engine running.

DTC P1640 is a type C DTC.

Diagnostic Aids

To locate an intermittent problem, use the scan tool to command AIR PUMP RELAY ON while monitoring AIR PUMP REL. CKT SHORT TO VOLTS. When a fault, short to voltage or shorted solenoid, exists, the scan tool will display YES.

Air pump relay coil resistance is 70-115 ohms.


Object Number: 890350  Size: FP

DTC P1640 EVAP Purge Low Voltage


Object Number: 889678  Size: MF

The PCM contains an output driver module (ODM) which controls the EVAP vent solenoid circuit ground. The ODM monitors the feedback voltage level on circuit 428 at the PCM when the device is being commanded ON or OFF. When the device is commanded OFF (circuit not grounded), the voltage level at the PCM should be high (ignition voltage). When the device is commanded ON (circuit grounded), the voltage level at the PCM should be low. Chart 3 diagnoses a low circuit voltage fault in which the PCM detected lower than normal feedback voltage when the EVAP purge solenoid was commanded OFF.

Conditions for Setting the DTC

DTC P1640 will set if EVAP purge solenoid feedback voltage is less than 4 volts when the EVAP purge solenoid is commanded OFF when:

    • The condition exists for longer than 6 seconds.
    • The engine is running.

DTC P1640 diagnostic runs continuously with the engine running.

DTC P1640 is a type C DTC.

Diagnostic Aids

To locate an intermittent problem, use the scan to monitor EVAP VENT CKT OPEN SHORT TO GND with the ignition ON and the engine OFF. When a fault, open or short to ground, exists, the scan tool will display YES.

EVAP vent solenoid resistance is 16-25 ohms.


Object Number: 890353  Size: FP

DTC P1640 EVAP Purge High Voltage


Object Number: 889678  Size: MF

The PCM contains an output driver module (ODM) which controls the EVAP purge solenoid circuit ground. The ODM monitors the feedback voltage level on circuit 428 at the PCM when the device is being commanded ON or OFF. When the device is commanded OFF (circuit not grounded), the voltage level at the PCM should be high (ignition voltage). When the device is commanded ON (circuit grounded), the voltage level at the PCM should be low. Chart 3 diagnoses a high circuit voltage fault in which the PCM detected higher than normal feedback voltage when the EVAP purge solenoid was commanded ON.

Conditions for Setting the DTC

DTC P1640 will set if EVAP purge solenoid feedback voltage is greater than 4 volts when the EVAP purge solenoid is commanded ON when:

    • The condition exists for longer than 6 seconds.
    • The engine is running.

DTC P1640 diagnostic runs continuously with the engine running.

DTC P1640 is a type C DTC.

Diagnostic Aids

To locate an intermittent problem, use the scan tool to command EVAP PURGE SOLENOID ON while monitoring EVAP PURGE SOLENOID CKT SHORT TO VOLTS. When a fault, short to voltage or shorted solenoid, exists, the scan tool will display YES.

The EVAP purge solenoid resistance is 16-25 ohms.


Object Number: 890356  Size: FP

DTC P1640 EVAP Vent Low Voltage


Object Number: 889673  Size: MF

The PCM contains an output driver module (ODM) which controls the EVAP vent solenoid circuit ground. The ODM monitors the feedback voltage level on circuit 1310 at the PCM when the device is being commanded ON or OFF. When the device is commanded OFF (circuit not grounded), the voltage level at the PCM should be high (ignition voltage). When the device is commanded ON (circuit grounded), the voltage level at the PCM should be low. Chart 5 diagnoses a low circuit voltage fault in which the PCM detected lower than normal feedback voltage when the EVAP vent solenoid was commanded OFF.

Conditions for Setting the DTC

DTC P1640 will set if EVAP vent solenoid feedback voltage is less than 4 volts when the EVAP vent solenoid is commanded OFF when:

    • The condition exists for longer than 6 seconds.
    • The engine is running.

DTC P1640 diagnostic runs continuously with the engine running.

DTC P1640 is a type C DTC.

Diagnostic Aids

To locate an intermittent problem, use the scan to monitor EVAP VENT CKT OPEN SHORT TO GND with the ignition ON and the engine OFF. When a fault, open or short to ground, exists, the scan tool will display YES.

The EVAP vent solenoid resistance is 18-27 ohms.


Object Number: 890365  Size: FP

DTC P1640 EVAP Vent High Voltage


Object Number: 889673  Size: MF

The PCM contains an output driver module (ODM) which controls the EVAP vent solenoid circuit ground. The ODM monitors the feedback voltage level on circuit 1310 at the PCM when the device is being commanded ON or OFF. When the device is commanded OFF (circuit not grounded), the voltage level at the PCM should be high (ignition voltage). When the device is commanded ON (circuit grounded), the voltage level at the PCM should be low. Chart 6 diagnoses a high circuit voltage fault in which the PCM detected higher than normal feedback voltage when the EVAP vent solenoid was commanded ON.

Conditions for Setting the DTC

DTC P1640 will set if EVAP vent solenoid feedback voltage is greater than 3.5 volts when the EVAP vent solenoid is commanded ON when:

    • The condition exists for longer than 6 seconds.
    • The engine is running.

DTC P1640 diagnostic runs continuously with the engine running.

DTC P1640 is a type C DTC.

Diagnostic Aids

To locate an intermittent problem, use the scan tool to command EVAP VENT SOLENOID ON while monitoring EVAP VENT CKT SHORT TO VOLTS. When a fault, short to voltage or shorted solenoid, exists, the scan tool will display YES.

The EVAP vent solenoid resistance is 18-27 ohms.


Object Number: 890366  Size: FP