GM Service Manual Online
For 1990-2009 cars only

Object Number: 895644  Size: MF

Circuit Description

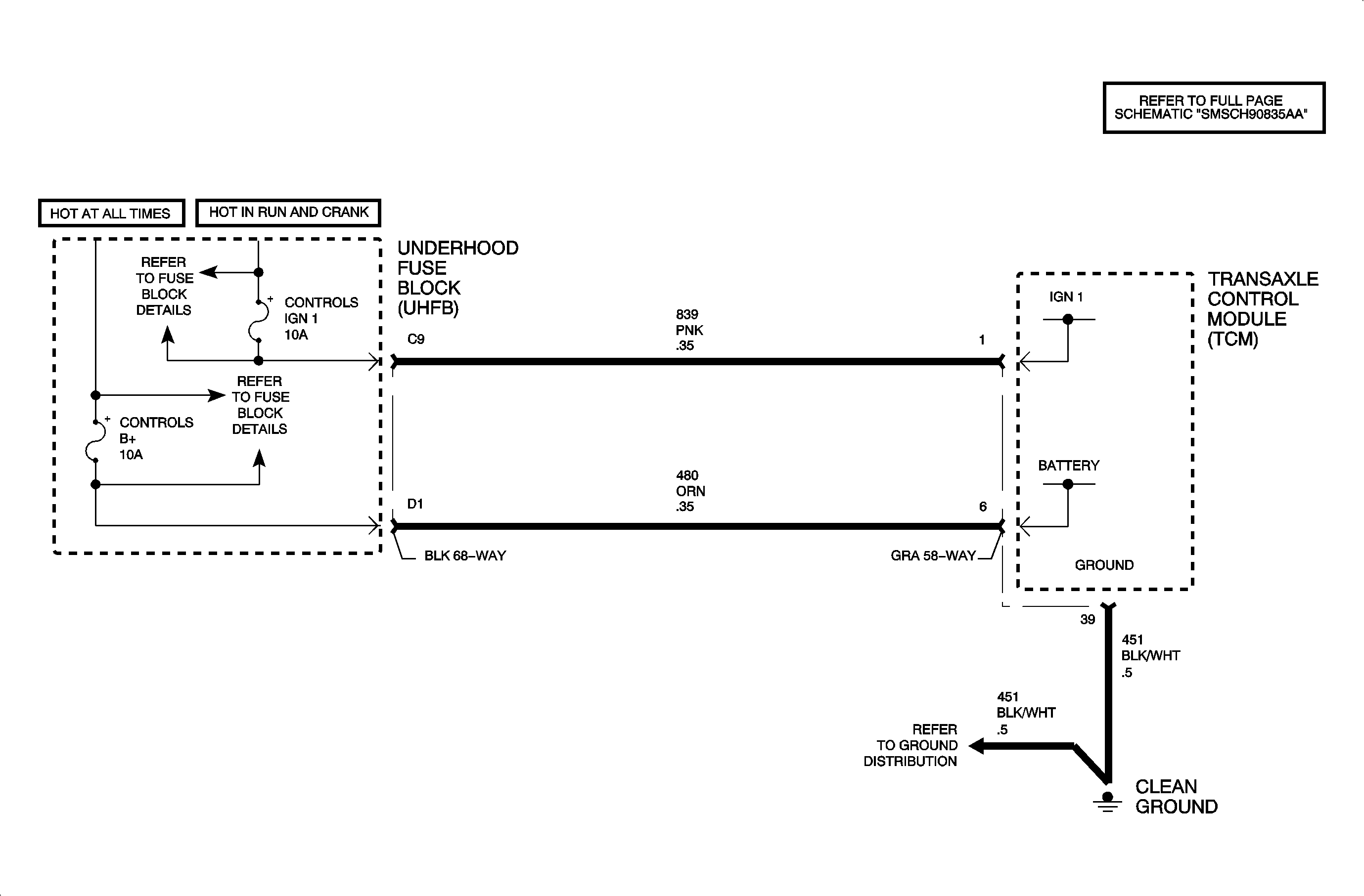
The transaxle control module (TCM) is powered from the fused battery and ignition 1 voltage supplied through the underhood fuse block. The TCM monitors system voltage on the ignition feed and fused battery circuit. If the system voltage is higher than the TCM is capable of operating properly under, DTC P0563 sets.

Conditions for Setting the DTC

DTC P0563 will set if:

    • Ignition 1 is greater than 18 volts for 10 seconds.
    • Engine speed is between 200-7,500 RPM for 5 seconds for MY 2002, or 500-6,500 RPM for 5 seconds for MY 2003.

DTC P0563 is a type A DTC.

Diagnostic Aids

Check for the following conditions:

A poor connection or damaged harness -- Inspect the wiring harness for damage. If the harness appears to be OK, observe the IGNITION 1 voltage display on the scan tool while moving the connectors and wiring related to the TCM, dash harness, and engine harness. A change in display will indicate the location of the fault.

If DTC P0563 can not be duplicated, reviewing the Failure Records vehicle mileage since the diagnostic test last failed may help determine how often the condition that caused the DTC to be set occurs. This may assist in diagnosing the condition.

For complete information and additional diagnostics for the vehicle charging system, refer to "Starting/Charging" section in the Engine service manual.


Object Number: 890865  Size: FP