GM Service Manual Online
For 1990-2009 cars only

Object Number: 899020  Size: MF

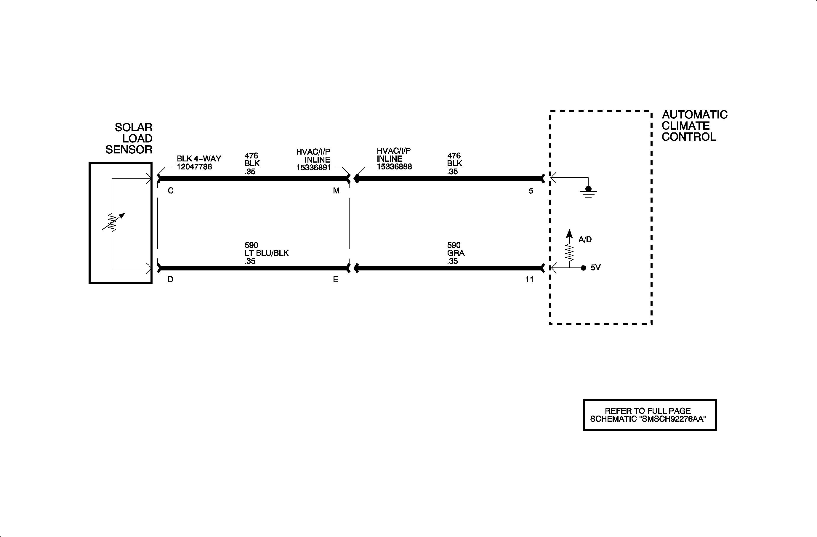
The HVAC control module monitors the ambient light on the vehicle via light sensitive photodiode, which is called a solar load sensor. The solar load sensor has a resistance of 7.32K ohms. The HVAC control module uses this information in order to compensate for the effect of the sun on the inside air temperature of the vehicle. When the sensor is in direct sunlight, the ambient light counts are low. When the sensor is shaded, the ambient light counts are high. The HVAC control module requests engagement of the A/C compressor clutch, and controls the door position of the air temperature actuator in order to maintain the selected air temperature on the HVAC control module.

DTC Parameters

Important: The vehicle must be outside for the photodiode to receive proper lighting. Fluorescent lighting will not work.

    • The ignition is in the RUN position.
    • LT BLU/BLK (Circuit 590) is shorted to voltage or open.
    • The condition is present for 60 seconds.
    • The counts are higher than 251.
    • BLK (Circuit 476) open or short to voltage.

Diagnostic Aids

    • If DTC in history or an intermittent condition, perform the test shown by wiggling wiring and connectors. This will cause malfunction to appear.
    • Visually inspect sensor connector and harness for damage, corrosion or water intrusion.
    • Inspect connector halves for poor mating or terminal not fully seated in the connector body-- backed out.
    • Inspect for adequate terminal tension, mis-routed harness, rubbed-through wire insulation and broken wire inside the insulation.
    • Inspect for improperly formed or damaged terminals. All connector terminals in the related circuit should be carefully reformed or replaced to ensure proper contact tension.

Object Number: 890662  Size: FP