GM Service Manual Online
For 1990-2009 cars only

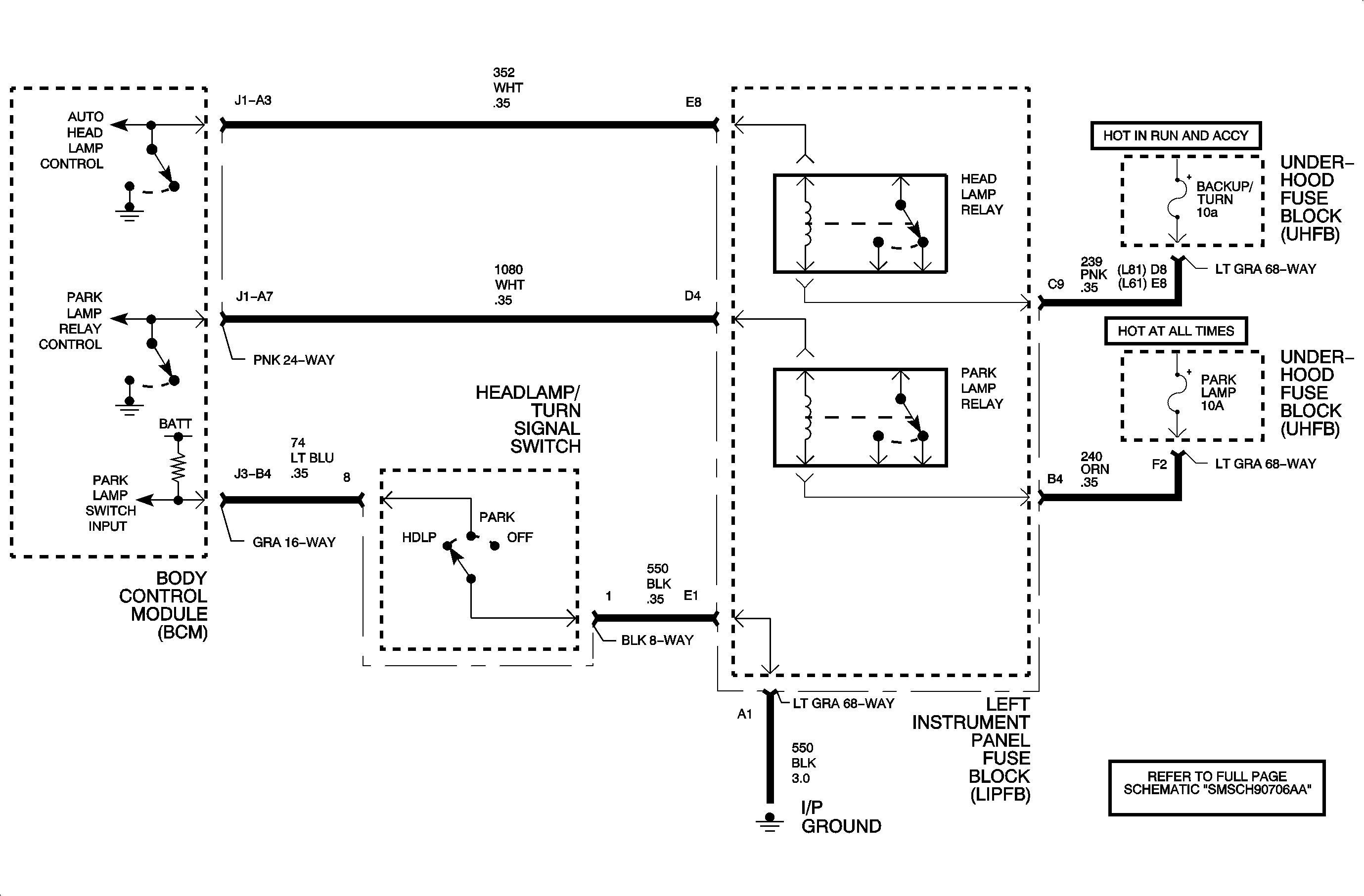
Object Number: 899033  Size: MF

Circuit Description

The BCM monitors circuit 74 for parking switch position. In addition the BCM monitors circuit 1080 for proper parklamp relay function. When the BCM is in automatic lighting control (ALC) mode and the solar light sensor indicates a dark condition the BCM will provide ground on circuit 1080, to activate parklamp relay. Feedback from circuit 1080 to BCM will indicate that the relay is energized. If feedback does not change, then fail DTC B2585 as a current code.

Conditions for setting the DTC

  1. ALC Parklamp relay commanded ON or parklamp switch is ON.
  2. Parklamp feedback is off.
  3. Ignition in RUN
  4. Condition is present for 5 seconds.
  5. No light will illuminate in the instrument panel (I/P).

Diagnostic Aids

  1. Check for poor connection at the BCM. Inspect harness connectors for backed-out terminals, improper terminal mating, broken connector locks, improperly formed or damaged terminals and poor terminal-to-wire connection (terminal crimped over wire insulation and not conductors).
  2. Inspect wiring harness for damage. Check for broken or chaffed insulation.
  3. If fault is suspected to be intermittent, wiggling the harness wiring may help in locating fault.