GM Service Manual Online
For 1990-2009 cars only

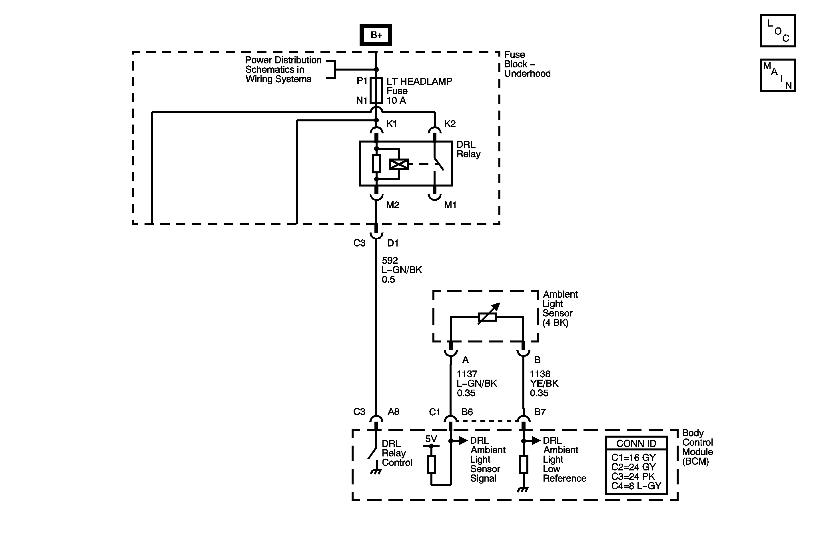
Object Number: 1333470  Size: MF

Circuit Description

The daytime running lamps (DRL) are controlled by the body control module (BCM). The BCM grounds the DRL relay control circuit in order to energize the DRL relay coil. This action provides a path to ground for the RH and LH headlamps through the DRL relay and the DRL resistor. The DRL resistor reduces the intensity of the low beam headlamps for DRL operation. The BCM monitors the low and high beam circuits to ensure that the DRLs are operating properly. If the BCM senses that the DRLs are not operating properly, DTC B2600 is set.

Conditions for Running the DTCs

    • The ignition switch is in the ON position.
    • The headlamp switch is OFF.
    • The park brake is unapplied.

Conditions for Setting the DTC

One or more of the following conditions are present:

    • The headlamp high beam signal circuit is open.
    • The headlamp low beam signal circuit is open.
    • The right headlamp battery positive voltage circuit is open.
    • The left headlamp battery positive voltage circuit is open.

Action Taken When the DTC Sets

    • The BCM turns off the DRL relay control for the remainder of the ignition cycle.
    • The SERVICE indicator lights.

Conditions for Clearing the DTC

    • The conditions for setting the DTC are no longer present.
    • A history DTC clears after 100 malfunction free ignition cycles.
    • The BCM receives the clear code command from the scan tool.

Diagnostic Aids

    • Check both the LH and RH headlamps for proper operation.
    • Check both the LT HEADLAMP and RT HEADLAMP fuses.
    • If the DTC is a history DTC, the problem may be intermittent. Refer to General Electrical Diagnosis in Wiring Systems.

Step

Action

Yes

No

Schematic Reference: Headlights/Daytime Running Lights (DRL) Schematics

1

Did you perform the Lighting System Diagnostic System Check?

Go to Step 2

Go to Diagnostic System Check - Lighting Systems

2

  1. Place the headlamp switch in the HEADLAMP position.
  2. Place the headlamp dimmer switch in the HIGH position.
  3. Place the headlamp dimmer switch in the LOW position.

Do the headlamps operate properly?

Go to Step 4

Go to Step 3

3

Are both the high beam and low beam headlamps on one side inoperative?

Go to Step 15

Go to Step 16

4

  1. Expose the ambient light sensor to a bright incandescent lamp.
  2. Block the wheels of the vehicle.
  3. Turn ON the ignition, with the engine OFF.
  4. Ensure the headlights are off.
  5. Place the gear selector in neutral.
  6. Release the parking brake.

Are the DRL illuminated?

Go to Step 10

Go to Step 5

5

Is DTC B2602 set?

Go to DTC B2602

Go to Step 6

6

  1. Disconnect the DRL Resistor.
  2. Connect a fused jumper wire between the DRL control circuit of the DRL Resistor and a good ground.

Do the DRL illuminate?

Go to Step 7

Go to Step 8

7

  1. Disconnect the fused jumper wire.
  2. Connect a fused jumper wire between the DRL control circuit and the ground circuit of the DRL Resistor.

Do the DRL illuminate?

Go to Step 12

Go to Step 17

8

  1. Leave the fused jumper wire connected.
  2. Disconnect the DRL relay.
  3. Connect a fused jumper wire between the switch side DRL control circuit of the DRL relay and the headlamp low beam signal circuit of the DRL relay.

Do the DRL illuminate?

Go to Step 13

Go to Step 9

9

Test the DRL control circuit for an open or high resistance between the DRL resistor and the fuse block-underhood. Refer to General Electrical Diagnosis and Wiring Repairs in Wiring Systems.

Did you find and correct the condition?

Go to Step 22

Go to Step 14

10

Test the headlamp high beam signal circuit and the headlamp low beam signal circuit for an open or high resistance between the body control module (BCM) and the underhood junction block. Refer to General Electrical Diagnosis and Wiring Repairs in Wiring Systems.

Did you find and correct the condition?

Go to Step 22

Go to Step 11

11

Inspect for poor connections at the harness connector of the BCM. Refer to General Electrical Diagnosis and Connector Repairs in Wiring Systems.

Did you find and correct the condition?

Go to Step 22

Go to Step 21

12

Inspect for poor connections at the harness connector of the DRL resistor. Refer to General Electrical Diagnosis and Connector Repairs in Wiring Systems.

Did you find and correct the condition?

Go to Step 22

Go to Step 18

13

Inspect for poor connections at the DRL relay. Refer to General Electrical Diagnosis and Connector Repairs in Wiring Systems.

Did you find and correct the condition?

Go to Step 22

Go to Step 19

14

Inspect for poor connections at the harness connector of the fuse block-underhood. Refer to General Electrical Diagnosis and Connector Repairs in Wiring Systems.

Did you find and correct the condition?

Go to Step 22

Go to Step 20

15

Repair an open, high resistance, or short to ground in the supply voltage circuit of the inoperative headlamp. Refer to General Electrical Diagnosis and Wiring Repairs in Wiring Systems.

Did you complete the repair?

Go to Step 22

--

16

Repair an open or high resistance in the headlamp high beam signal circuit or the headlamp low beam signal circuit of the inoperative headlamp. Refer to General Electrical Diagnosis and Wiring Repairs in Wiring Systems.

Did you complete the repair?

Go to Step 22

--

17

Repair an open or high resistance in the ground circuit of the DRL resistor. Refer to General Electrical Diagnosis and Wiring Repairs in Wiring Systems.

Did you complete the repair?

Go to Step 22

--

18

Replace the DRL resistor.

Did you complete the replacement?

Go to Step 22

--

19

Replace the DRL relay.

Did you complete the replacement?

Go to Step 22

--

20

Replace the fuse block-underhood. Refer to Underhood Electrical Center or Junction Block Replacement in Wiring Systems.

Did you complete the replacement?

Go to Step 22

--

21

Important: Perform the set up procedure for the BCM.

Replace the BCM. Refer to Body Control Module Replacement in Body Control System.

Did you complete the replacement?

Go to Step 22

--

22

  1. Use the scan tool in order to clear the DTCs .
  2. Operate the vehicle within the Conditions for Running the DTC as specified in the supporting text.

Does the DTC reset?

Go to Step 2

System OK