GM Service Manual Online
For 1990-2009 cars only

Object Number: 899022  Size: MF

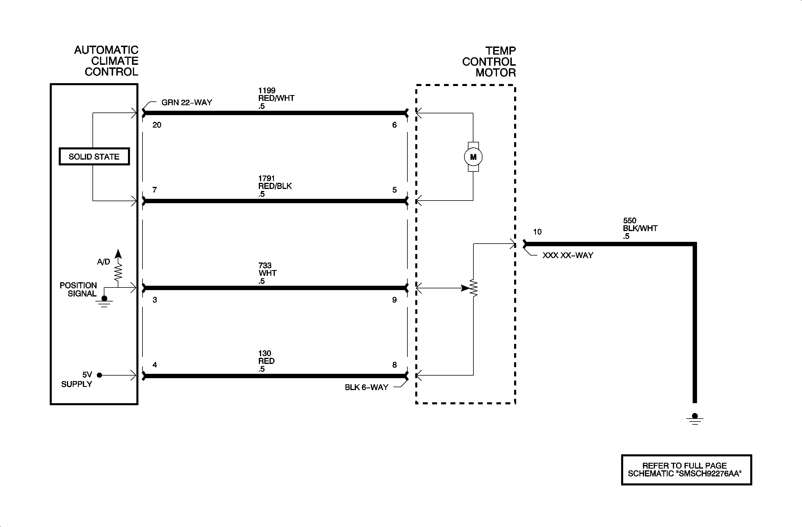
The HVAC control module receives a position signal from the air temperature actuator. The air temperature actuator position sensor is a potentiometer that is tied up to a 5-volt reference source. The variable output from the potentiometer feeds back a position signal to a pull-up resistor which is located in the HVAC control module. This signal determines the necessary drive signal to the actuator motor, which provides the proper air temperature door position. This value is stored in the KEEP ALIVE memory portion of the HVAC control module.

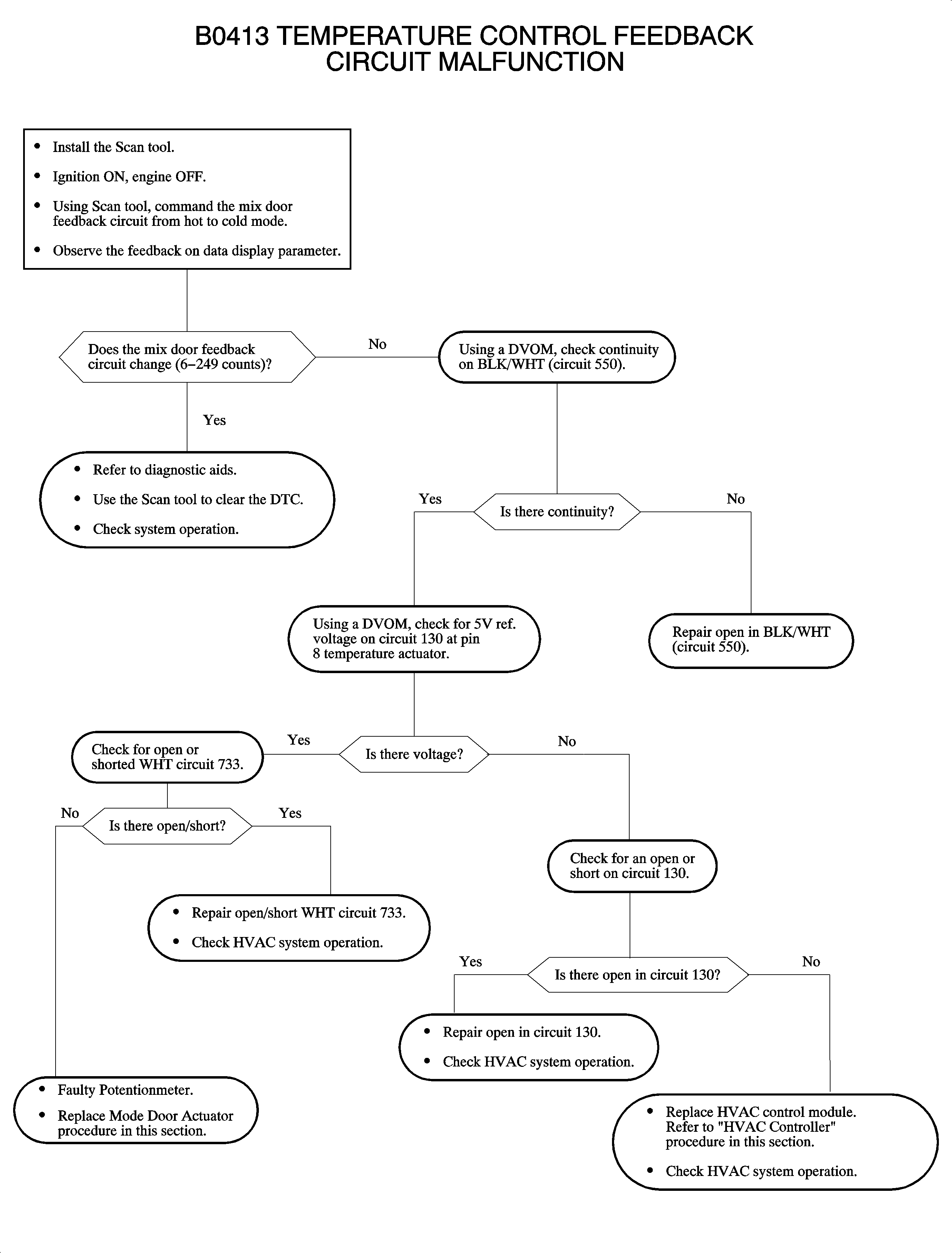
DTC Parameters

    • The ignition is in the RUN position.
    • RED circuit 130 shorted to ground, voltage or open
    • WHT circuit 733 shorted to voltage ground or open
    • Open grounds circuit 550 BLK/WHT

Diagnostic Aids

    • If the DTC is in history or an intermittent condition, perform the test shown by wiggling wiring and connectors. This will cause malfunction to appear.
    • Visually inspect sensor connector and harness for damage, corrosion or water intrusion.
    • Inspect connector halves for poor mating or terminal not fully seated in the connector body (backed out).
    • Inspect for adequate terminal tension, mis-routed harness, rubbed-through wire insulation and broken wire inside the insulation.
    • Inspect for improperly formed or damaged terminals. All connector terminals in the related circuit should be carefully reformed or replaced to ensure proper contact tension.

Object Number: 890669  Size: FP