GM Service Manual Online
For 1990-2009 cars only

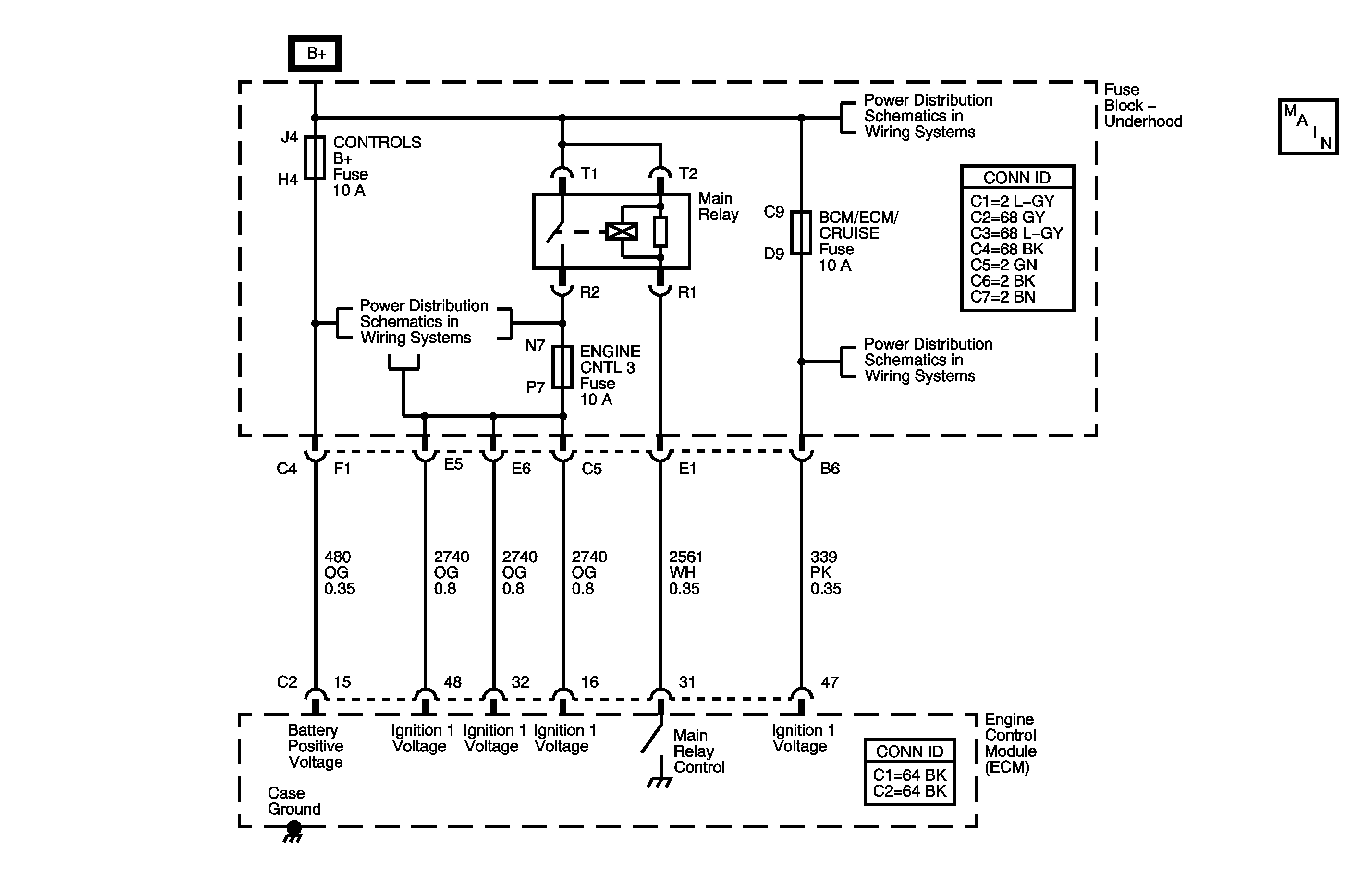
Object Number: 1218830  Size: MF

Circuit Description

The engine control module (ECM) monitors the main relay switched voltage on 3 parallel circuits that travel between the underhood fuse block and the ECM. These circuits are tied together internally in the ECM. When ignition voltage is present at the ignition 1 input to the ECM, the ECM will command the main relay ON by grounding the control circuit of the Main Relay. The ECM monitors the voltage over an extended length of time. If the ECM detects a voltage outside an expected range for the calibrated length of time, DTC P0560 will set.

Conditions for Running the DTC

    • Main relay is commanded ON by the ECM.
    • Engine has been running for more than 3 minutes.

Conditions for Setting the DTC

Circuit voltage below 2.5 volts for longer than 3 seconds.

Action Taken When the DTC Sets

    • The ECM will not illuminate the malfunction indicator lamp (MIL).
    • The ECM will command a message to be displayed.
    • The ECM will store conditions which were present when the DTC set as Fail Records data only.

Conditions for Clearing the DTC

    • The ECM will command the message OFF after one trip in which the diagnostic test has been run and passed.
    • The history DTC will clear after 40 consecutive warm-up cycles have occurred without a malfunction.
    • The DTC can be cleared by using the scan tool Clear DTC Information function.

Step

Action

Value

Yes

No

Connector End View Reference: Engine Control Module Connector End Views in Engine Controls - 3.0L (L81) or Power and Grounding Connector End Views in Wiring Systems

1

Did you perform the Engine Electrical Diagnostic System Check?

--

Go to Step 2

Go to Diagnostic System Check - Engine Electrical

2

  1. Install a scan tool.
  2. Operate the vehicle within the Conditions for Running the DTC as specified in the supporting text.
  3. With the scan tool, observe the Specific DTC Information for DTC P0560 until the test runs.

Does the scan tool indicate that DTC P0560 has passed this ignition cycle?

--

Go to Testing for Intermittent Conditions and Poor Connections in Wiring Systems

Go to Step 3

3

  1. Install a scan tool.
  2. Start the engine.
  3. With a scan tool, observe the main relay parameter in the ECM data list .

Does the scan tool indicate that the main relay parameter is greater than the specified range?

2.5 V

Go to Step 12

Go to Step 4

4

Turn the ignition from the OFF to ON position.

Does the main relay click each time the ignition changes position?

--

Go to Step 6

Go to Step 5

5

  1. Disconnect the main relay.
  2. Connect a test lamp between the battery positive voltage circuit of the main relay coil and the control circuit of the main relay.
  3. Turn ON the ignition, with the engine OFF.

Does the test lamp illuminate?

--

Go to Step 9

Go to Step 7

6

  1. Disconnect the Main Relay.
  2. Connect a 10 amp fused jumper wire between the battery positive voltage circuit of the main relay switch and the main relay voltage signal circuit of the main relay switch.
  3. Start the engine.
  4. With a scan tool, observe the main relay parameter in the ECM data list .

Does the scan tool indicate that the main relay parameter is greater than the specified range?

2.5 V

Go to Step 9

Go to Step 8

7

Test the control circuit of the main relay for a high resistance or open. Refer to Circuit Testing and Wiring Repairs in Wiring Systems.

Did you find and correct the condition?

--

Go to Step 13

Go to Step 10

8

Test the main relay voltage circuit of the ECM for a high resistance or open. Refer to Circuit Testing and Wiring Repairs in Wiring Systems.

Did you find and correct the condition?

--

Go to Step 13

Go to Step 10

9

Inspect for poor connections at the main relay. Refer to Testing for Intermittent Conditions and Poor Connections and Connector Repairs in Wiring Systems.

Did you find and correct the condition?

--

Go to Step 13

Go to Step 11

10

Inspect for poor connections at the harness connector of the ECM. Refer to Testing for Intermittent Conditions and Poor Connections and Connector Repairs in Wiring Systems.

Did you find and correct the condition?

--

Go to Step 13

Go to Step 12

11

Replace the main relay.

Did you complete the replacement?

--

Go to Step 13

--

12

Important: The replacement ECM must be programmed.

Replace the ECM. Refer to Engine Control Module Replacement in Engine Controls - 3.0L (L81).

Did you complete the replacement?

--

Go to Step 13

--

13

  1. Review and record the scan tool Fail Records data.
  2. Use the scan tool in order to clear the DTC.
  3. Operate the vehicle within the Conditions for Running the DTC as specified in the supporting text.
  4. Using the scan tool, observe the Specific DTC Information for DTC P0560 until the test runs.

Does the scan tool indicate that DTC P0560 failed this ignition?

--

Go to Step 3

System OK